Se Connecter/S’inscrire
Votre courriel a été envoyé.
Take 5-Brand New 15 Yr Absolute Net (NNN) 6190 Hollywood Blvd 1 257 pi² Commerce de détail Immeuble Hollywood, FL 33024 3 424 275 $ CAD (2 724,16 $ CAD/pi²) 5% Taux de capitalisation



Certaines informations ont été traduites automatiquement.
Faits saillants de l'investissement
- Corporate Guarantee: Credit Rated Parent Company– NASDAQ: DRVN–BBB Rating
- Excellent Visibility & Access: Frontage on Hollywood Blvd & Stone’s Throw From FL Turnpike–Combined 185,000+ VPD
- No Competition Nearby: Closest Quick Lube Oil Change Facility 1+ Miles Away
- Long Term Absolute NNN Lease (Land and Building): 15 Year Term-8% Rental Increases Every 5 Years-Hedge Against Inflation
- Qualifies For 100% Bonus Depreciation: Contact Listing Agent For Estimate of Savings
- Complete Gut Renovation: Take 5 is in The process of a Renovation and Re-Imaging Prior to This Summer’s Opening
Résumé de l'annonce
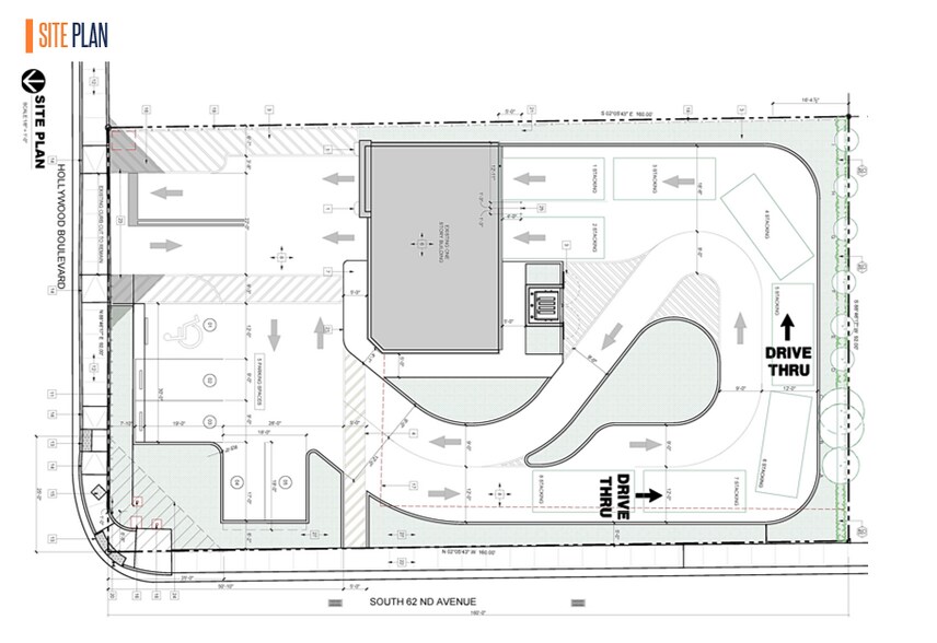
Marcus & Millichap is pleased to present a net leased investment opportunity consisting of a rare, Fee Simple (Land and Building) Corporate-Guaranteed Take 5 Oil Change which qualifies for 100% Bonus Depreciation. It is located on Hollywood Blvd, one of South Florida’s primary east-west thoroughfares with excellent visibility and access. This brand-new Take 5 is subject to a 15-year triple net lease with four (4) five-year options to extend and 8% rent increases every 5 years, offering a passive, long-term income stream with built-in growth protection. Take 5 is in possession of the premises, about to start renovation/construction, and expected to open in early summer 2026. The subject property features Take 5 Oil Change’s modern drive-thru prototype, situated on a 0.34-acre (14,810 SF) parcel with a 1,257 SF facility. Designed for speed and convenience, the Take 5 model allows customers to remain in their vehicles for fast professional oil changes and maintenance services.
This new Take 5 Oil Change is located along Hollywood Blvd with a traffic count of 44,000+ VPD and benefits from immediate proximity to the Florida Turnpike (141,000+ VPD). This densely populated area has 179,000+ residents and solid average household income of $79,000 within 3-mile radius.
The property benefits from its strategic position in one of South Florida’s fastest-growing markets in Broward County. Hollywood continues to experience significant residential and commercial expansion, with over 220 residential units planned and being built out in a 1 MI radius of subject- driving increased traffic and long-term demand for essential quick-service automotive businesses.
Take 5 Oil Change, a leading brand under publicly traded Driven Brands Holdings Inc. (NASDAQ: DRVN), is one of the fastest-growing quick-lube concepts in North America with over 1,100 locations. Backed by a parent company generating approximately $2.3 billion in annual revenue (FY 2024) and a corporate guarantee, the brand offers strong institutional-grade investment security and a proven model focused on speed, convenience, and customer loyalty. This site represents a new development underscoring the company’s continued expansion in high-traffic South Florida markets.
This new Take 5 Oil Change is located along Hollywood Blvd with a traffic count of 44,000+ VPD and benefits from immediate proximity to the Florida Turnpike (141,000+ VPD). This densely populated area has 179,000+ residents and solid average household income of $79,000 within 3-mile radius.
The property benefits from its strategic position in one of South Florida’s fastest-growing markets in Broward County. Hollywood continues to experience significant residential and commercial expansion, with over 220 residential units planned and being built out in a 1 MI radius of subject- driving increased traffic and long-term demand for essential quick-service automotive businesses.
Take 5 Oil Change, a leading brand under publicly traded Driven Brands Holdings Inc. (NASDAQ: DRVN), is one of the fastest-growing quick-lube concepts in North America with over 1,100 locations. Backed by a parent company generating approximately $2.3 billion in annual revenue (FY 2024) and a corporate guarantee, the brand offers strong institutional-grade investment security and a proven model focused on speed, convenience, and customer loyalty. This site represents a new development underscoring the company’s continued expansion in high-traffic South Florida markets.
Salle de données Cliquez ici pour accéder à
- Offering Memorandum
Faits sur la propriété
Type de vente
Investissement pour loyer hypernet
Type de propriété
Commerce de détail
Sous-type de propriété
Taille du bâtiment
1 257 pi²
Classe d’immeuble
C
Année de construction
2026
Prix
3 424 275 $ CAD
Prix par pi²
2 724,16 $ CAD
Taux de capitalisation
5%
Revenu net d’exploitation
171 214 $ CAD
Location
Unique
Hauteur du bâtiment
1 étage
Coefficient d’occupation des sols de l’immeuble
0,08
Taille du lot
0,34 AC
Zonage
S-MU
Façade
Commodités
- Ligne d'autobus
- Intersection avec signalisation
Moyennement praticable à pied
60/100
Très facile d’accès en voiture
80/100
Transports en commun limités
30/100
Plutôt praticable en vélo
40/100
Principaux détaillants à proximité
Impôts fonciers
| Numéro de lot | 51-41-13-18-0010 | Évaluation des bâtiments | 222 400 $ CAD |
| Évaluation du terrain | 242 110 $ CAD | Évaluation totale | 464 510 $ CAD |
Impôts fonciers
Numéro de lot
51-41-13-18-0010
Évaluation du terrain
242 110 $ CAD
Évaluation des bâtiments
222 400 $ CAD
Évaluation totale
464 510 $ CAD
1 de 5
Vidéos
Visite extérieure 3D Matterport
Visite 3D Matterport
Photos
Vue depuis la rue
Rue
Carte
Présenté par
Take 5-Brand New 15 Yr Absolute Net (NNN) | 6190 Hollywood Blvd
Vous êtes déjà membre? Connectez-vous
Hmm, il semble y avoir eu une erreur lors de l’envoi de votre message. Veuillez réessayer.
Merci! Votre message a été envoyé.

