Votre courriel a été envoyé.
DALTON ST OFFICE SUITES 619A Dalton St 1 263–5 682 pi² d'espace disponible • Bureau • Emmaus, PA 18049



Certaines informations ont été traduites automatiquement.
TOUS LES ESPACES DISPONIBLES(3)
Afficher les taux de location en
- ESPACE
- TAILLE
- TERME
- TAUX DE LOCATION
- UTILISATION DE L’ESPACE
- ÉTAT
- DISPONIBLE
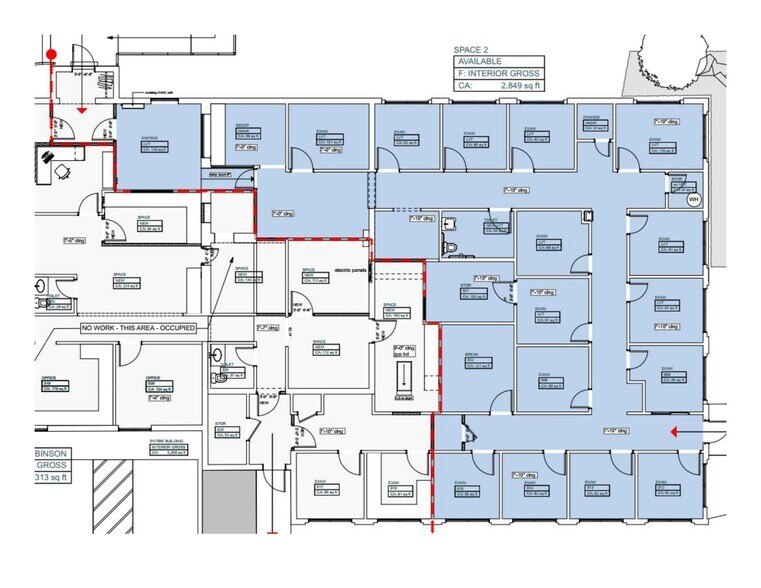
619 Dalton Street located just outside Emmaus, Pennsylvania is a multi-tenant professional office building. This property was the previously a medical office building but has been demised into several office spaces available for lease. Space #2 provides two entrances, reception with waiting room, 15 private offices, break room and two ADA bathrooms. This space is currently in renovation condition and the property owner will be completing construction & fit-out with tenant requirements in mind. The building offers excellent visibility from Emmaus Avenue with over 10,000 vehicles passing daily and tenants have signage on the pylon in front. Abundant parking surrounds the building. This space is ideal for counseling services or many other professional office users.
- Le taux de location ne comprend pas les services publics, les services de bâtiment ou les dépenses immobilières.
- Convient pour 8 à 23 personnes
- Professional Services building
- Disposition intensive du bureau
- Ideal for Counseling
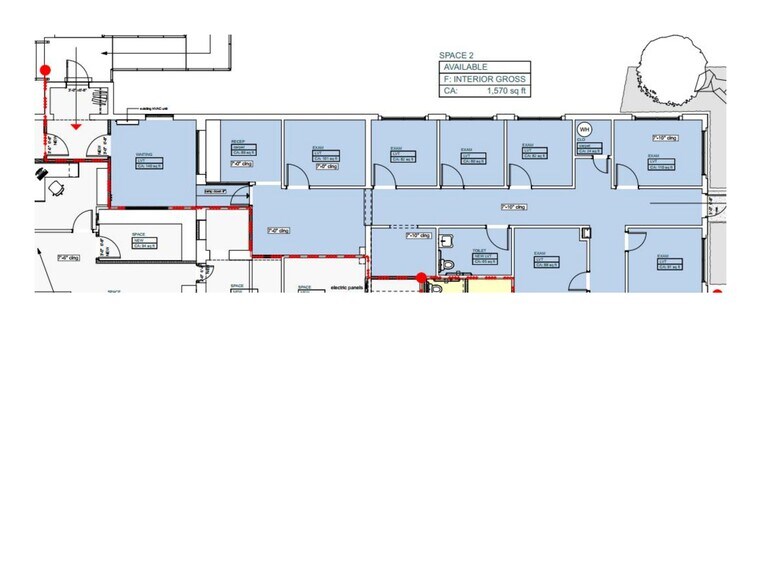
619 Dalton Street located just outside Emmaus, Pennsylvania is a multi-tenant professional office building. This property was the previously a medical office building but has been demised into several office spaces available for lease. Space #2A provides two entrances, reception with waiting room, 7 private offices, break room and an ADA bathroom. This space is currently in renovation condition and the property owner will be completing construction & fit-out with tenant requirements in mind. The building offers excellent visibility from Emmaus Avenue with over 10,000 vehicles passing daily and tenants have signage on the pylon in front. Abundant parking surrounds the building. This space is ideal for counseling services or many other professional office users.
- Le taux de location ne comprend pas les services publics, les services de bâtiment ou les dépenses immobilières.
- 7 bureaux privés
- Convient pour 4 à 13 personnes
619 Dalton Street located just outside Emmaus, Pennsylvania is a multi-tenant professional office building. This property was the previously a medical office building but has been demised into several office spaces available for lease. Space #3 provides 8 private offices, break room and an ADA bathroom. This space is currently in renovation condition and the property owner will be completing construction & fit-out with tenant requirements in mind. The building offers excellent visibility from Emmaus Avenue with over 10,000 vehicles passing daily and tenants have signage on the pylon in front. Abundant parking surrounds the building. This space is ideal for counseling services or many other professional office users.
- Le taux de location ne comprend pas les services publics, les services de bâtiment ou les dépenses immobilières.
- 8 bureaux privés
- Convient pour 4 à 11 personnes
| Espace | Taille | Terme | Taux de location | Utilisation de l’espace | État | Disponible |
| 1er étage, ste 2 | 2 849 pi² | Négociable | Sur demande Sur demande Sur demande Sur demande | Bureau | - | Maintenant |
| 1er étage, ste 2A | 1 570 pi² | Négociable | Sur demande Sur demande Sur demande Sur demande | Bureau | - | Maintenant |
| 1er étage, ste 3 | 1 263 pi² | Négociable | Sur demande Sur demande Sur demande Sur demande | Bureau | - | Maintenant |
1er étage, ste 2
| Taille |
| 2 849 pi² |
| Terme |
| Négociable |
| Taux de location |
| Sur demande Sur demande Sur demande Sur demande |
| Utilisation de l’espace |
| Bureau |
| État |
| - |
| Disponible |
| Maintenant |
1er étage, ste 2A
| Taille |
| 1 570 pi² |
| Terme |
| Négociable |
| Taux de location |
| Sur demande Sur demande Sur demande Sur demande |
| Utilisation de l’espace |
| Bureau |
| État |
| - |
| Disponible |
| Maintenant |
1er étage, ste 3
| Taille |
| 1 263 pi² |
| Terme |
| Négociable |
| Taux de location |
| Sur demande Sur demande Sur demande Sur demande |
| Utilisation de l’espace |
| Bureau |
| État |
| - |
| Disponible |
| Maintenant |
1er étage, ste 2
| Taille | 2 849 pi² |
| Terme | Négociable |
| Taux de location | Sur demande |
| Utilisation de l’espace | Bureau |
| État | - |
| Disponible | Maintenant |
619 Dalton Street located just outside Emmaus, Pennsylvania is a multi-tenant professional office building. This property was the previously a medical office building but has been demised into several office spaces available for lease. Space #2 provides two entrances, reception with waiting room, 15 private offices, break room and two ADA bathrooms. This space is currently in renovation condition and the property owner will be completing construction & fit-out with tenant requirements in mind. The building offers excellent visibility from Emmaus Avenue with over 10,000 vehicles passing daily and tenants have signage on the pylon in front. Abundant parking surrounds the building. This space is ideal for counseling services or many other professional office users.
- Le taux de location ne comprend pas les services publics, les services de bâtiment ou les dépenses immobilières.
- Disposition intensive du bureau
- Convient pour 8 à 23 personnes
- Ideal for Counseling
- Professional Services building
1er étage, ste 2A
| Taille | 1 570 pi² |
| Terme | Négociable |
| Taux de location | Sur demande |
| Utilisation de l’espace | Bureau |
| État | - |
| Disponible | Maintenant |
619 Dalton Street located just outside Emmaus, Pennsylvania is a multi-tenant professional office building. This property was the previously a medical office building but has been demised into several office spaces available for lease. Space #2A provides two entrances, reception with waiting room, 7 private offices, break room and an ADA bathroom. This space is currently in renovation condition and the property owner will be completing construction & fit-out with tenant requirements in mind. The building offers excellent visibility from Emmaus Avenue with over 10,000 vehicles passing daily and tenants have signage on the pylon in front. Abundant parking surrounds the building. This space is ideal for counseling services or many other professional office users.
- Le taux de location ne comprend pas les services publics, les services de bâtiment ou les dépenses immobilières.
- Convient pour 4 à 13 personnes
- 7 bureaux privés
1er étage, ste 3
| Taille | 1 263 pi² |
| Terme | Négociable |
| Taux de location | Sur demande |
| Utilisation de l’espace | Bureau |
| État | - |
| Disponible | Maintenant |
619 Dalton Street located just outside Emmaus, Pennsylvania is a multi-tenant professional office building. This property was the previously a medical office building but has been demised into several office spaces available for lease. Space #3 provides 8 private offices, break room and an ADA bathroom. This space is currently in renovation condition and the property owner will be completing construction & fit-out with tenant requirements in mind. The building offers excellent visibility from Emmaus Avenue with over 10,000 vehicles passing daily and tenants have signage on the pylon in front. Abundant parking surrounds the building. This space is ideal for counseling services or many other professional office users.
- Le taux de location ne comprend pas les services publics, les services de bâtiment ou les dépenses immobilières.
- Convient pour 4 à 11 personnes
- 8 bureaux privés
APERÇU DE LA PROPRIÉTÉ
Le 619 Dalton Street, situé juste à l'extérieur d'Emmaus, en Pennsylvanie, est un immeuble de bureaux professionnels à locataires multiples. L'immeuble bénéficie d'une excellente visibilité depuis l'avenue Emmaus, avec plus de 10 000 véhicules qui passent chaque jour, et les locataires disposent d'une enseigne sur le pylône à l'avant. Un stationnement abondant entoure le bâtiment. Cet espace est idéal pour des services de counseling ou pour de nombreux autres utilisateurs de bureaux professionnels.
FAITS SUR LA PROPRIÉTÉ
SÉLECTIONNER DES LOCATAIRES
- ÉTAGE
- NOM DU LOCATAIRE
- SECTEUR
- 1ᵉʳ
- Dr. Bub & Associates
- Soins de santé et assistance sociale
Présenté par
DALTON ST OFFICE SUITES | 619A Dalton St
Hmm, il semble y avoir eu une erreur lors de l’envoi de votre message. Veuillez réessayer.
Merci! Votre message a été envoyé.










