Se Connecter/S’inscrire
Votre courriel a été envoyé.
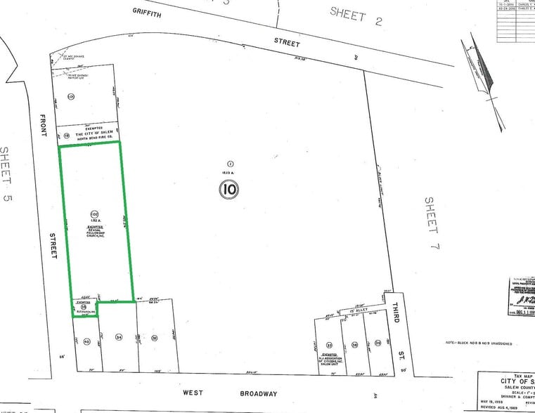
62 Front St - Revival Fellowship Church Immeuble de 1 800 pi² • Spécialité • À vendre 226 002 $ CAD • Salem, NJ 08079



Certaines informations ont été traduites automatiquement.
Résumé de l'annonce
À l'attention des investisseurs ! Jetez un coup d'œil à ce stand de 3100 +/- pieds carrés le long de l'immeuble avec une disposition ouverte, 2 toilettes et des bureaux s'étendant sur 1,62 +/- acres. La propriété est située dans le district de zonage M-1 (Light Manufacturing) avec chauffage au gaz, eau publique et égout. Certaines utilisations permises comprennent les magasins de détail, les restaurants, les cafés, les bureaux professionnels, les écoles privées, les magasins de services personnels, la fabrication de vêtements, de boissons, de produits médicaux et dentaires et plus encore... Investissez dans votre avenir dès aujourd'hui.
Faits sur la propriété
| Prix | 226 002 $ CAD | Taille du lot | 1,62 AC |
| Prix par pi² | 125,56 $ CAD | Taille du bâtiment | 1 800 pi² |
| Type de vente | Investissement ou propriétaire utilisateur | Nombre d’étages | 1 |
| Condition de vente | Entretien différé | Année de construction | 1960 |
| Type de propriété | Spécialité | Location | Unique |
| Sous-type de propriété | École | Ratio de stationnement | 5,56/1 000 pi² |
| Classe d’immeuble | C | ||
| Zonage | M-1 - Fabrication légère | ||
| Prix | 226 002 $ CAD |
| Prix par pi² | 125,56 $ CAD |
| Type de vente | Investissement ou propriétaire utilisateur |
| Condition de vente | Entretien différé |
| Type de propriété | Spécialité |
| Sous-type de propriété | École |
| Classe d’immeuble | C |
| Taille du lot | 1,62 AC |
| Taille du bâtiment | 1 800 pi² |
| Nombre d’étages | 1 |
| Année de construction | 1960 |
| Location | Unique |
| Ratio de stationnement | 5,56/1 000 pi² |
| Zonage | M-1 - Fabrication légère |
1 1
Plutôt praticable à pied
20/100
Exceptionnellement facile d’accès en voiture
100/100
Transports en commun limités
30/100
Assez praticable en vélo
20/100
Impôts fonciers
| Numéro de lot | 13-00010-0000-00035 | Évaluation des bâtiments | 75 433 $ CAD |
| Évaluation du terrain | 6 920 $ CAD | Évaluation totale | 82 354 $ CAD |
Impôts fonciers
Numéro de lot
13-00010-0000-00035
Évaluation du terrain
6 920 $ CAD
Évaluation des bâtiments
75 433 $ CAD
Évaluation totale
82 354 $ CAD
1 de 6
Vidéos
Visite extérieure 3D Matterport
Visite 3D Matterport
Photos
Vue depuis la rue
Rue
Carte
1 de 1
Présenté par
62 Front St - Revival Fellowship Church
Vous êtes déjà membre? Connectez-vous
Hmm, il semble y avoir eu une erreur lors de l’envoi de votre message. Veuillez réessayer.
Merci! Votre message a été envoyé.
