Se Connecter/S’inscrire
Votre courriel a été envoyé.
6202 402nd St 14 475 pi² Industriel Immeuble North Branch, MN 55056 2 039 250 $ CAD (140,88 $ CAD/pi²)



Certaines informations ont été traduites automatiquement.
Faits saillants de l'investissement
- Building was Constructed in 2022
- Potential Short Term Lease Back
- Property is will be Available January 1, 2027
- Large Warehouse with Multiple Drive in and Doc doors
- Great Access to the City of North Branch and Interstate 35
Résumé de l'annonce
Modern Industrial Opportunity in North Branch, MN
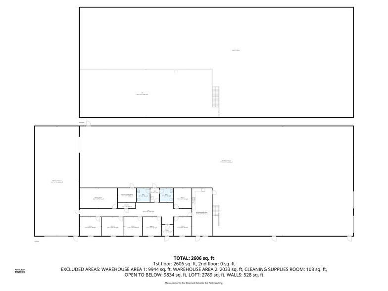
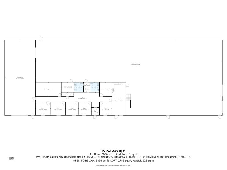
Premium Office/Warehouse Facility | 14,475 SF on 2.45 Acres
Step into a rare, near-new industrial facility that blends high-end office space with a highly functional warehouse—all strategically positioned in one of North Branch’s established industrial corridors. Built in 2022, this 14,475 SF metal building delivers the modern efficiencies today’s users demand, along with the room to grow, scale, and thrive.
A Space Built for Performance
This property is designed to support seamless business operations. With 9 private offices, your team will enjoy a comfortable, professional environment with room for collaboration and focus. Beyond the office, the expansive warehouse features a drain system, ideal for operations requiring washdown areas, equipment cleaning, or enhanced facility maintenance.
Storage & Flexibility, Elevated
Take advantage of the large mezzanine level, offering substantial onsite storage that keeps your floor space open and productive. Whether you’re storing inventory, staging materials, or creating flex work areas, this added vertical capacity is a major asset rarely found in newer builds.
A Site That Works as Hard as You Do
Situated on 2.45 acres, the property provides plenty of exterior space—accommodating parking, vehicle/equipment staging, or future expansion. The grounds are professionally landscaped and supported by a full sprinkler irrigation system for long-term ease and low maintenance.
Why This Property Stands Out
Built in 2022 — modern, efficient, and move-in ready
Beautiful office build-out with 9 offices
Warehouse drain system for enhanced operational flexibility
Expansive mezzanine for additional storage
2.45-acre lot in a strong industrial area
Durable metal construction designed for longevity
Ideal for industrial, logistics, service, or hybrid office/warehouse users
Premium Office/Warehouse Facility | 14,475 SF on 2.45 Acres
Step into a rare, near-new industrial facility that blends high-end office space with a highly functional warehouse—all strategically positioned in one of North Branch’s established industrial corridors. Built in 2022, this 14,475 SF metal building delivers the modern efficiencies today’s users demand, along with the room to grow, scale, and thrive.
A Space Built for Performance
This property is designed to support seamless business operations. With 9 private offices, your team will enjoy a comfortable, professional environment with room for collaboration and focus. Beyond the office, the expansive warehouse features a drain system, ideal for operations requiring washdown areas, equipment cleaning, or enhanced facility maintenance.
Storage & Flexibility, Elevated
Take advantage of the large mezzanine level, offering substantial onsite storage that keeps your floor space open and productive. Whether you’re storing inventory, staging materials, or creating flex work areas, this added vertical capacity is a major asset rarely found in newer builds.
A Site That Works as Hard as You Do
Situated on 2.45 acres, the property provides plenty of exterior space—accommodating parking, vehicle/equipment staging, or future expansion. The grounds are professionally landscaped and supported by a full sprinkler irrigation system for long-term ease and low maintenance.
Why This Property Stands Out
Built in 2022 — modern, efficient, and move-in ready
Beautiful office build-out with 9 offices
Warehouse drain system for enhanced operational flexibility
Expansive mezzanine for additional storage
2.45-acre lot in a strong industrial area
Durable metal construction designed for longevity
Ideal for industrial, logistics, service, or hybrid office/warehouse users
Taxes et dépenses d’exploitation (Réel - 2024) |
Annuel (CAD) | Annuel par pi² (CAD) |
|---|---|---|
| Taxes |
51 030 $
|
3,53 $
|
| Dépenses d’exploitation |
-
|
-
|
| Total des dépenses |
51 030 $
|
3,53 $
|
Taxes et dépenses d’exploitation (Réel - 2024)
| Taxes (CAD) | |
|---|---|
| Annuel | 51 030 $ |
| Annuel par pi² | 3,53 $ |
| Dépenses d’exploitation (CAD) | |
|---|---|
| Annuel | - |
| Annuel par pi² | - |
| Total des dépenses (CAD) | |
|---|---|
| Annuel | 51 030 $ |
| Annuel par pi² | 3,53 $ |
Faits sur la propriété
Commodités
- Accès contrôlé
- Drains de sol
- Mezzanine
- Système de sécurité
- Espace d'entreposage
- Climatisation
- Internet par fibre optique
- Détecteur de fumée
- Salle de repos
Services publics
- Éclairage
- Gaz - Naturel
- Eau - Ville
- Égout - Ville
- Chauffage
1 1
Plutôt praticable à pied
20/100
Exceptionnellement facile d’accès en voiture
100/100
Moyennement praticable en vélo
60/100
Impôts fonciers
| Numéro de lot | 11-01072-27 | Évaluation totale | 1 744 053 $ CAD |
| Évaluation du terrain | 0 $ CAD | Impôts annuels | 51 030 $ CAD (3,53 $ CAD/pi²) |
| Évaluation des bâtiments | 0 $ CAD | Année d’imposition | 2024 Payable 2025 |
Impôts fonciers
Numéro de lot
11-01072-27
Évaluation du terrain
0 $ CAD
Évaluation des bâtiments
0 $ CAD
Évaluation totale
1 744 053 $ CAD
Impôts annuels
51 030 $ CAD (3,53 $ CAD/pi²)
Année d’imposition
2024 Payable 2025
1 de 31
Vidéos
Visite extérieure 3D Matterport
Visite 3D Matterport
Photos
Vue depuis la rue
Rue
Carte
1 de 1
Présenté par
6202 402nd St
Vous êtes déjà membre? Connectez-vous
Hmm, il semble y avoir eu une erreur lors de l’envoi de votre message. Veuillez réessayer.
Merci! Votre message a été envoyé.
