Votre courriel a été envoyé.
6205 Chapel Hill Blvd 11 813 pi² 83% Loué Bureau Immeuble Plano, TX 75093 5 070 517 $ CAD (429,23 $ CAD/pi²) 6% Taux de capitalisation



Certaines informations ont été traduites automatiquement.
Faits saillants de l'investissement
- Regional Shopping Center Traffic
- Restaurants
- Market Stability
- Easy Access to Highways
- Nearby Hospital
- Road Frontage
Résumé de l'annonce
Faits sur la propriété
Commodités
- Affichage sur monument
Principaux locataires Cliquez ici pour accéder à
- Locataire
- Secteur
- pi² Occupé
- Loyer/pi²
- Type de bail
- Fin du bail
4 Better Sleep Centers serve the entire Dallas and Ft. Worth areas. We provide Consultations, Screenings, Therapy, Support and Interface Devices. Each evaluation is performed by P. Terrence Moore, MD FAASM, who is Board Certified in Neurology and Sleep Medicine. Here at 4 Better Sleep Centers, the sleep studies take place in our sleep lab which resembles a high end hotel. The goal is to record brain and body activity that occurs during sleep so that sleep disorders can be diagnosed and treated. Their highly skilled doctor, Dr. P Terrence Moore is trained in sleep medicine. He evaluates test results to determine a course of action and resolve sleep related issues. Additionally, all of their sleep technicians are licensed and one or more will monitor you via camera and monitor various body activities and indicators may be measured during a sleep study.
Offices of Real Estate Agents and Brokers and provider of other financial services.
| Locataire | Secteur | pi² Occupé | Loyer/pi² | Type de bail | Fin du bail | |
|
Soins de santé et assistance sociale | 99,999 SF | $9.99 | Lorem Ipsum | Jan 0000 | |
|
Immobilier | 99,999 SF | $9.99 | Lorem Ipsum | - |
Disponibilité des espaces
- Espace
- Taille
- Utilisation de l’espace
- Aménagement
- Disponible
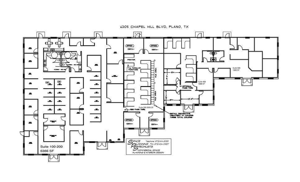
2,059 SF office space with easy access to the North Dallas Tollway, and George Bush Tollway. Property is located across the street on the North side of the Shops of Willow Bend Mall and is very close to an abundance of restaurants, shopping and professional services.
| Espace | Taille | Utilisation de l’espace | Aménagement | Disponible |
| 1er Ét.-ste 300 | 2 059 pi² | Bureau | construction complète | Maintenant |
1er Ét.-ste 300
| Taille |
| 2 059 pi² |
| Utilisation de l’espace |
| Bureau |
| Aménagement |
| construction complète |
| Disponible |
| Maintenant |
1er Ét.-ste 300
| Taille | 2 059 pi² |
| Utilisation de l’espace | Bureau |
| Aménagement | construction complète |
| Disponible | Maintenant |
2,059 SF office space with easy access to the North Dallas Tollway, and George Bush Tollway. Property is located across the street on the North side of the Shops of Willow Bend Mall and is very close to an abundance of restaurants, shopping and professional services.
Impôts fonciers
| Numéro de lot | R-4393-002-0020-1 | Évaluation des bâtiments | 1 992 945 $ CAD |
| Évaluation du terrain | 1 476 883 $ CAD | Évaluation totale | 3 469 828 $ CAD |
Impôts fonciers
Présenté par
6205 Chapel Hill Blvd
Hmm, il semble y avoir eu une erreur lors de l’envoi de votre message. Veuillez réessayer.
Merci! Votre message a été envoyé.

