Se Connecter/S’inscrire
Votre courriel a été envoyé.
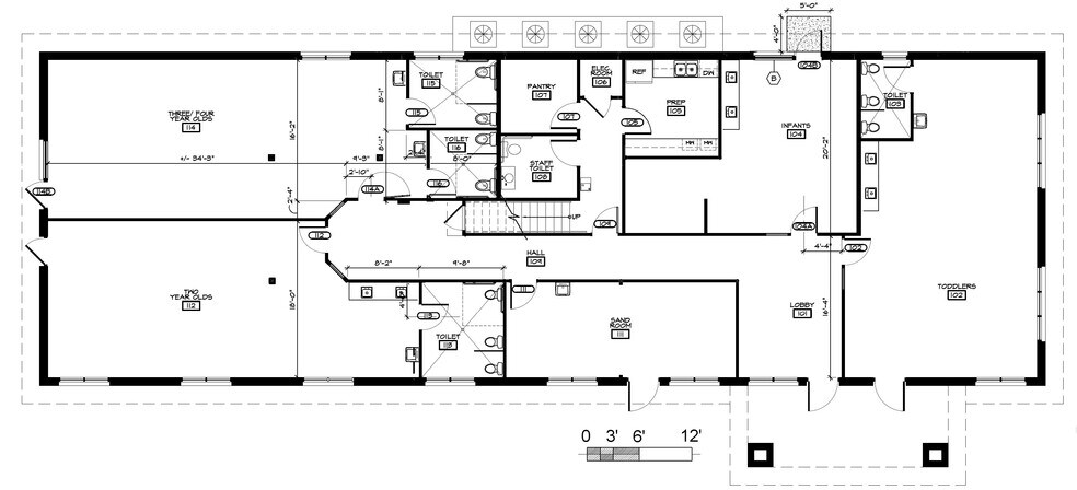
Treetop Therapy | Savannah, GA 621 Stephenson Ave 5 794 pi² Commerce de détail Immeuble Savannah, GA 31405 3 007 268 $ CAD (519,03 $ CAD/pi²) 5,91% Taux de capitalisation



Certaines informations ont été traduites automatiquement.
Résumé de l'annonce
» New Lease Signed | 10 Locations serving 5 States with Significant Expansion Plans
» Newly remodeled commercial building (2026)
» Zoned PUDISB, supporting a range of commercial and institutional uses (subject to approvals)
» Located within Savannah’s Westside submarket with proximity to I-16 and I-516, and 1 mile from Hunter Army Airfield with 5,500 active duty servicemen
» Newly remodeled commercial building (2026)
» Zoned PUDISB, supporting a range of commercial and institutional uses (subject to approvals)
» Located within Savannah’s Westside submarket with proximity to I-16 and I-516, and 1 mile from Hunter Army Airfield with 5,500 active duty servicemen
Faits sur la propriété
Type de vente
Investissement ou propriétaire utilisateur
Type de propriété
Commerce de détail
Sous-type de propriété
Garderie
Taille du bâtiment
5 794 pi²
Classe d’immeuble
B
Année de construction/rénovation
2021/2026
Prix
3 007 268 $ CAD
Prix par pi²
519,03 $ CAD
Taux de capitalisation
5,91%
Revenu net d’exploitation
177 702 $ CAD
Location
Unique
Hauteur du bâtiment
1 étage
Coefficient d’occupation des sols de l’immeuble
0,12
Taille du lot
1,15 AC
Zonage
PUDISB
Stationnement
17 places (4,31 places par 1 000 pi² loué)
Façade
Commodités
- Ligne d'autobus
- Affichage
Principaux locataires
- Locataire
- Secteur
- pi² Occupé
- Loyer/pi²
- Type de bail
- Fin du bail
- Treetop Therapy
- Soins de santé et assistance sociale
- -
- -
- Loyer hypernet
- -
| Locataire | Secteur | pi² Occupé | Loyer/pi² | Type de bail | Fin du bail | |
| Treetop Therapy | Soins de santé et assistance sociale | - | - | Loyer hypernet | - |
Moyennement praticable à pied
60/100
Moyennement facile d’accès en voiture
70/100
Transports en commun limités
30/100
Plutôt praticable en vélo
50/100
Principaux détaillants à proximité
Impôts fonciers
| Numéro de lot | 2049005034 | Évaluation des bâtiments | 273 958 $ CAD |
| Évaluation du terrain | 390 667 $ CAD | Évaluation totale | 664 625 $ CAD |
Impôts fonciers
Numéro de lot
2049005034
Évaluation du terrain
390 667 $ CAD
Évaluation des bâtiments
273 958 $ CAD
Évaluation totale
664 625 $ CAD
1 de 18
Vidéos
Visite extérieure 3D Matterport
Visite 3D Matterport
Photos
Vue depuis la rue
Rue
Carte
Présenté par
Treetop Therapy | Savannah, GA | 621 Stephenson Ave
Vous êtes déjà membre? Connectez-vous
Hmm, il semble y avoir eu une erreur lors de l’envoi de votre message. Veuillez réessayer.
Merci! Votre message a été envoyé.

