Votre courriel a été envoyé.
Coventry Square Fresno, CA 93710 1 701–5 958 pi² d'espace disponible



Certaines informations ont été traduites automatiquement.
Faits saillants du parc
- Ample parking and easy-access from Highway 41
Faits sur le parc
| Superficie totale disponible | 5 958 pi² | Type de parc | Parc de bureaux |
| Superficie totale disponible | 5 958 pi² |
| Type de parc | Parc de bureaux |
Tous les espaces disponibles(3)
Afficher les taux de location en
- Espace
- Taille
- Terme
- Taux de location
- Utilisation de l’espace
- Aménagement
- Disponible
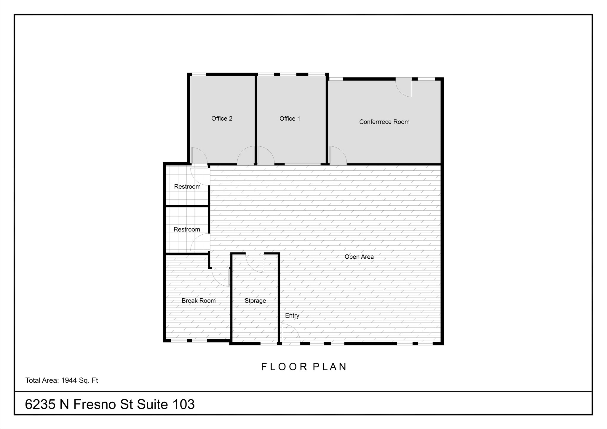
Suite 103 at 6235 N Fresno Street offers a thoughtfully designed layout ideal for professional office use. The space features two private offices, a dedicated conference room, and an open work area that supports collaborative operations. Additional amenities include two restrooms, a break room for staff convenience, and a storage area for organizational needs. Located at the corner of N Fresno Street and E Escalon Avenue within Coventry Square, this property provides excellent visibility and accessibility. Tenants benefit from ample on-site parking and close proximity to Highway 41, ensuring ease of commute and connectivity to the broader Fresno market. The suite’s functional design and strategic location make it a compelling choice for businesses seeking a secure, professional environment in a well-established office complex.
- Le taux inscrit peut ne pas comprendre certains services publics, les services de bâtiment et les dépenses immobilières.
- Disposition du plan d’étage ouverte en général
- 2 bureaux privés
- Complètement tapissé
- Corner location in well-established office complex
- Includes a break room and storage
- Partiellement construit comme Bureau standard
- Convient pour 5 à 16 personnes
- 1 salle de conférence
- Ample parking with easy access to Highway 41
- Built-out with private offices and conference room
| Espace | Taille | Terme | Taux de location | Utilisation de l’espace | Aménagement | Disponible |
| 1er étage, ste 103 | 1 944 pi² | Négociable | 31,96 $ CAD/pi²/an 2,66 $ CAD/pi²/mois 62 123 $ CAD/an 5 177 $ CAD/mois | Bureau | construction partielle | Maintenant |
6235 N Fresno St - 1er étage - ste 103
- Espace
- Taille
- Terme
- Taux de location
- Utilisation de l’espace
- Aménagement
- Disponible
6255 N Fresno St Suite 104 is located on the corner of N Fresno St and E Escalon Ave in Coventry Square. Coventry Square is comprised of five buildings with medical and general office use. The suite is built out with three offices, two restrooms, one conference room, a kitchen/break room, and an open area. Features include ample parking, two entrances, and a customizable layout. The property ensures a secure environment and is located in close proximity to Highway 41.
- Le taux inscrit peut ne pas comprendre certains services publics, les services de bâtiment et les dépenses immobilières.
- Disposition du plan d’étage ouverte en général
- 3 bureaux privés
- Complètement tapissé
- Corner location with prime visibility
- Includes two restrooms, a kitchen, and break room
- Entièrement construit comme Bureau standard
- Convient pour 5 à 14 personnes
- 1 salle de conférence
- Planchers de bois franc
- Built-out with three offices and a conference room
| Espace | Taille | Terme | Taux de location | Utilisation de l’espace | Aménagement | Disponible |
| 1er étage, ste 104 | 1 701 pi² | Négociable | 30,32 $ CAD/pi²/an 2,53 $ CAD/pi²/mois 51 570 $ CAD/an 4 298 $ CAD/mois | Bureau | construction complète | Maintenant |
6255 N Fresno St - 1er étage - ste 104
- Espace
- Taille
- Terme
- Taux de location
- Utilisation de l’espace
- Aménagement
- Disponible
Located in Coventry Square between Sierra and Escalon, this property offers an ideal setting for a wide range of medical office uses. Enjoy ample on-site parking, convenient access to major transportation routes, and a location that supports both new practices and expanding operations. A versatile space in a highly desirable area.
- Le taux inscrit peut ne pas comprendre certains services publics, les services de bâtiment et les dépenses immobilières.
- Great Location
- Access to Hwy 41
- Convient pour 6 à 19 personnes
- Ample Parking
| Espace | Taille | Terme | Taux de location | Utilisation de l’espace | Aménagement | Disponible |
| 1er étage, ste 104-105 | 2 313 pi² | Négociable | 31,96 $ CAD/pi²/an 2,66 $ CAD/pi²/mois 73 915 $ CAD/an 6 160 $ CAD/mois | Bureau/Médical | - | Maintenant |
6225 N Fresno St - 1er étage - ste 104-105
6235 N Fresno St - 1er étage - ste 103
| Taille | 1 944 pi² |
| Terme | Négociable |
| Taux de location | 31,96 $ CAD/pi²/an |
| Utilisation de l’espace | Bureau |
| Aménagement | construction partielle |
| Disponible | Maintenant |
Suite 103 at 6235 N Fresno Street offers a thoughtfully designed layout ideal for professional office use. The space features two private offices, a dedicated conference room, and an open work area that supports collaborative operations. Additional amenities include two restrooms, a break room for staff convenience, and a storage area for organizational needs. Located at the corner of N Fresno Street and E Escalon Avenue within Coventry Square, this property provides excellent visibility and accessibility. Tenants benefit from ample on-site parking and close proximity to Highway 41, ensuring ease of commute and connectivity to the broader Fresno market. The suite’s functional design and strategic location make it a compelling choice for businesses seeking a secure, professional environment in a well-established office complex.
- Le taux inscrit peut ne pas comprendre certains services publics, les services de bâtiment et les dépenses immobilières.
- Partiellement construit comme Bureau standard
- Disposition du plan d’étage ouverte en général
- Convient pour 5 à 16 personnes
- 2 bureaux privés
- 1 salle de conférence
- Complètement tapissé
- Ample parking with easy access to Highway 41
- Corner location in well-established office complex
- Built-out with private offices and conference room
- Includes a break room and storage
6255 N Fresno St - 1er étage - ste 104
| Taille | 1 701 pi² |
| Terme | Négociable |
| Taux de location | 30,32 $ CAD/pi²/an |
| Utilisation de l’espace | Bureau |
| Aménagement | construction complète |
| Disponible | Maintenant |
6255 N Fresno St Suite 104 is located on the corner of N Fresno St and E Escalon Ave in Coventry Square. Coventry Square is comprised of five buildings with medical and general office use. The suite is built out with three offices, two restrooms, one conference room, a kitchen/break room, and an open area. Features include ample parking, two entrances, and a customizable layout. The property ensures a secure environment and is located in close proximity to Highway 41.
- Le taux inscrit peut ne pas comprendre certains services publics, les services de bâtiment et les dépenses immobilières.
- Entièrement construit comme Bureau standard
- Disposition du plan d’étage ouverte en général
- Convient pour 5 à 14 personnes
- 3 bureaux privés
- 1 salle de conférence
- Complètement tapissé
- Planchers de bois franc
- Corner location with prime visibility
- Built-out with three offices and a conference room
- Includes two restrooms, a kitchen, and break room
6225 N Fresno St - 1er étage - ste 104-105
| Taille | 2 313 pi² |
| Terme | Négociable |
| Taux de location | 31,96 $ CAD/pi²/an |
| Utilisation de l’espace | Bureau/Médical |
| Aménagement | - |
| Disponible | Maintenant |
Located in Coventry Square between Sierra and Escalon, this property offers an ideal setting for a wide range of medical office uses. Enjoy ample on-site parking, convenient access to major transportation routes, and a location that supports both new practices and expanding operations. A versatile space in a highly desirable area.
- Le taux inscrit peut ne pas comprendre certains services publics, les services de bâtiment et les dépenses immobilières.
- Convient pour 6 à 19 personnes
- Great Location
- Ample Parking
- Access to Hwy 41
Aperçu du parc
6235 N Fresno St Suite 103 is located on the corner of N Fresno St and E Escalon Ave in Coventry Square. Coventry Square is comprised of five buildings with medical and general office use. Property includes ample parking, and is located in close proximity to Highway 41.
Présenté par
SVN | Clovis Commercial
Coventry Square | Fresno, CA 93710
Hmm, il semble y avoir eu une erreur lors de l’envoi de votre message. Veuillez réessayer.
Merci! Votre message a été envoyé.









