Votre courriel a été envoyé.
Grand Central Plaza 622 Third Ave 2 435–291 294 pi² d'espace disponible • 4 étoiles • New York, NY 10017



Certaines informations ont été traduites automatiquement.
Afficher les taux de location en
- Espace
- Taille
- Terme
- Taux de location
- Utilisation de l’espace
- Aménagement
- Disponible
15'6" slab to slab ceiling heights Above standard buildout consisting of open plan and conference rooms
- Entièrement construit comme Bureau de services professionnels
- Plafonds finis: 9’3”
- Peut être associé à un ou plusieurs espaces supplémentaires pour obtenir jusqu’à 39 655 pi² d’espace adjacent.
- Ouvrez Buildout !
- Disposition du plan d’étage ouverte en général
- Espace en excellent état
- Climatisation centrale
11'6" ceiling heights
- Disposition du plan d’étage ouverte en général
- Espace en excellent état
- Plafonds finis: 11’6”
- Peut être associé à un ou plusieurs espaces supplémentaires pour obtenir jusqu’à 39 655 pi² d’espace adjacent.
Built with 6 windowed offices, 4 windowed conference rooms, 1 interior conference room, wet pantry, and open area.
- Le taux inscrit peut ne pas comprendre certains services publics, les services de bâtiment et les dépenses immobilières.
- 6 bureaux privés
- Espace en excellent état
- Entièrement construit comme Bureau standard
- 5 salles de conférence
- Espace entièrement construit
Space is currently built and furnished with 3 offices, 1 conference room, wet pantry and open area for 30+.
Existing installation features 3 offices, 1 conference room, wet pantry, and small open area.
- Entièrement construit comme Bureau standard
- 3 bureaux privés
- Espace en excellent état
- Opportunité Shell Space !
- Disposition du plan d’étage ouverte
- 1 salle de conférence
- Climatisation centrale
Features Exposed ceilings and executive restroom with shower.
- Entièrement construit comme Bureau standard
- Climatisation centrale
- Disposition du plan d’étage ouverte en général
- Office intensive installation.
Raw space, landlord will deliver NBI.
- Disposition du plan d’étage ouverte
- Peut être associé à un ou plusieurs espaces supplémentaires pour obtenir jusqu’à 14 333 pi² d’espace adjacent.
- Opportunité Shell Space !
- Espace en excellent état
- Climatisation centrale
Raw space, Landlord will deliver NBI.
- Disposition du plan d’étage ouverte
- Peut être associé à un ou plusieurs espaces supplémentaires pour obtenir jusqu’à 14 333 pi² d’espace adjacent.
- Opportunité Shell Space !
- Espace en excellent état
- Climatisation centrale
Built, furnished creative installation in place. Features interconnecting staircase between floors 14-16.
- Entièrement construit comme Bureau standard
- Espace en excellent état
- Accès aux ascenseurs
- Possibilité à l'étage complet !
- Disposition du plan d’étage ouverte en général
- Peut être associé à un ou plusieurs espaces supplémentaires pour obtenir jusqu’à 66 500 pi² d’espace adjacent.
- Salle de bains privée
Built, furnished creative installation in place. Features interconnecting staircase between floors 14-16.
- Entièrement construit comme Bureau standard
- Espace en excellent état
- Accès aux ascenseurs
- Possibilité à l'étage complet !
- Disposition du plan d’étage ouverte
- Peut être associé à un ou plusieurs espaces supplémentaires pour obtenir jusqu’à 66 500 pi² d’espace adjacent.
- Salle de bains privée
Built, furnished creative installation in place with 7 offices, 1 conference room, wet pantry, and open area. Features interconnecting staircase between floors 14-16.
- Entièrement construit comme Bureau standard
- 7 bureaux privés
- Espace en excellent état
- Climatisation centrale
- Disposition du plan d’étage ouverte
- 1 salle de conférence
- Peut être associé à un ou plusieurs espaces supplémentaires pour obtenir jusqu’à 66 500 pi² d’espace adjacent.
- Possibilité à l'étage complet !
Raw full floor with 24' ceilings. Great natural light and views.
- Le taux inscrit peut ne pas comprendre certains services publics, les services de bâtiment et les dépenses immobilières.
- Plafonds finis: 25’
- Peut être associé à un ou plusieurs espaces supplémentaires pour obtenir jusqu’à 62 500 pi² d’espace adjacent.
- Lumière naturelle
- Disposition du plan d’étage ouverte
- Espace en excellent état
- Hauts plafonds
- Opportunité Shell Space !
Built creative installation with great natural light and views.
- Le taux inscrit peut ne pas comprendre certains services publics, les services de bâtiment et les dépenses immobilières.
- Disposition intensive du bureau
- Peut être associé à un ou plusieurs espaces supplémentaires pour obtenir jusqu’à 62 500 pi² d’espace adjacent.
- Possibilité d'étage complet !
- Entièrement construit comme Bureau standard
- Espace en excellent état
- Lumière naturelle
Built office intensive installation with great natural light and views.
- Le taux inscrit peut ne pas comprendre certains services publics, les services de bâtiment et les dépenses immobilières.
- Disposition intensive du bureau
- Peut être associé à un ou plusieurs espaces supplémentaires pour obtenir jusqu’à 62 500 pi² d’espace adjacent.
- Possibilité à l'étage complet !
- Entièrement construit comme Bureau standard
- Espace en excellent état
- Climatisation centrale
Existing creative installation Features great natural light and views Landlord will consider reasonable modifications
- Partiellement construit comme Bureau standard
- Espace en excellent état
- Disposition du plan d’étage ouverte en général
Built with 3 offies, 1 conference room, wet pantry, and open area.
- Entièrement construit comme Bureau standard
- 4 bureaux privés
- Espace en excellent état
- Disposition du plan d’étage ouverte en général
- 1 salle de conférence
- Espace entièrement construit
Delivered in white box condition. Features great natural light and views.
- Entièrement construit comme Bureau standard
- 2 salles de conférence
- Espace en excellent état
- Aire de réception
- 18 bureaux privés
- 32 postes de travail
- Peut être associé à un ou plusieurs espaces supplémentaires pour obtenir jusqu’à 31 080 pi² d’espace adjacent.
- Salle de bains privée
Existing installation features 5 offices, wet pantry, and small open area. Features great light and views. Landlord will consider reasonable modifications.
- Partiellement construit comme Bureau standard
- 6 bureaux privés
- Disposition du plan d’étage ouverte en général
- Espace en excellent état
Above-standard, creative installation with great natural light and views. Features interconnecting staircase between floors 36-37.
- Le taux inscrit peut ne pas comprendre certains services publics, les services de bâtiment et les dépenses immobilières.
- Disposition du plan d’étage ouverte en général
- 2 salles de conférence
- Peut être associé à un ou plusieurs espaces supplémentaires pour obtenir jusqu’à 31 080 pi² d’espace adjacent.
- Accès aux ascenseurs
- Possibilité à l'étage complet !
- Entièrement construit comme Bureau standard
- 4 bureaux privés
- Espace en excellent état
- Aire de réception
- Salle de bains privée
- Espace entièrement construit
Above-standard, creative installation with great natural light and views. Features exposed ceilings and polished concrete floors. Some furniture available. Interconnecting staircase between floors 36-37.
- Entièrement construit comme Bureau standard
- 30 bureaux privés
- Plafonds finis: 10’
- Espace entièrement construit
- Disposition du plan d’étage ouverte en général
- 2 salles de conférence
- Espace en excellent état
Existing installation features 7 offices, 1 conference room, wet pantry and open area. Landlord will consider demolishing and delivering NBI. Corner unit with GREAT natural light and unobstructed views of East River.
- Entièrement construit comme Bureau standard
- 2 salles de conférence
- Espace en excellent état
- 18 bureaux privés
- 8 postes de travail
- Espace entièrement construit
Space is recently built with 11 offices, wet pantry, and open area for 30+ Features exceptional natural light and views Some furniture can be made available
| Espace | Taille | Terme | Taux de location | Utilisation de l’espace | Aménagement | Disponible |
| 2e étage | 28 500 pi² | Négociable | Sur demande Sur demande Sur demande Sur demande | Bureau | construction complète | Maintenant |
| Mezzanine | 3 800 pi² | Négociable | Sur demande Sur demande Sur demande Sur demande | Bureau/Commerce de détail | construction partielle | Maintenant |
| 6e étage | 8 850 pi² | Négociable | 86,82 $ CAD/pi²/an 7,24 $ CAD/pi²/mois 768 382 $ CAD/an 64 032 $ CAD/mois | Bureau | construction complète | Maintenant |
| 7e étage | 6 500 pi² | Négociable | Sur demande Sur demande Sur demande Sur demande | Bureau | - | Maintenant |
| 7e étage, ste 701 | 2 435 pi² | Négociable | Sur demande Sur demande Sur demande Sur demande | Bureau | construction complète | Maintenant |
| 7e étage, ste 703 | 20 000 pi² | Négociable | Sur demande Sur demande Sur demande Sur demande | Bureau | construction complète | Maintenant |
| 9e étage, ste 901 | 6 966 pi² | Négociable | Sur demande Sur demande Sur demande Sur demande | Bureau | espace cloisonné | Maintenant |
| 9e étage, ste 902 | 7 367 pi² | Négociable | Sur demande Sur demande Sur demande Sur demande | Bureau | espace cloisonné | Maintenant |
| 14e étage | 26 500 pi² | Négociable | Sur demande Sur demande Sur demande Sur demande | Bureau | construction complète | 30 jours |
| 15e étage | 26 500 pi² | Négociable | Sur demande Sur demande Sur demande Sur demande | Bureau | construction complète | 30 jours |
| 16e étage | 13 500 pi² | Négociable | Sur demande Sur demande Sur demande Sur demande | Bureau | construction complète | 30 jours |
| 30e étage | 9 500 pi² | Négociable | 103,36 $ CAD/pi²/an 8,61 $ CAD/pi²/mois 981 925 $ CAD/an 81 827 $ CAD/mois | Bureau | espace cloisonné | Maintenant |
| 31e étage | 26 500 pi² | 3-15 ans | 103,36 $ CAD/pi²/an 8,61 $ CAD/pi²/mois 2 739 053 $ CAD/an 228 254 $ CAD/mois | Bureau | construction complète | Maintenant |
| 32e étage | 26 500 pi² | Négociable | 103,36 $ CAD/pi²/an 8,61 $ CAD/pi²/mois 2 739 053 $ CAD/an 228 254 $ CAD/mois | Bureau | construction complète | Maintenant |
| 33e étage, ste 3302 | 4 979 pi² | Négociable | 103,36 $ CAD/pi²/an 8,61 $ CAD/pi²/mois 514 632 $ CAD/an 42 886 $ CAD/mois | Bureau | construction partielle | Maintenant |
| 34e étage | 4 500 pi² | Négociable | Sur demande Sur demande Sur demande Sur demande | Bureau | construction complète | Maintenant |
| 35e étage | 4 580 pi² | Négociable | Sur demande Sur demande Sur demande Sur demande | Bureau | construction complète | Maintenant |
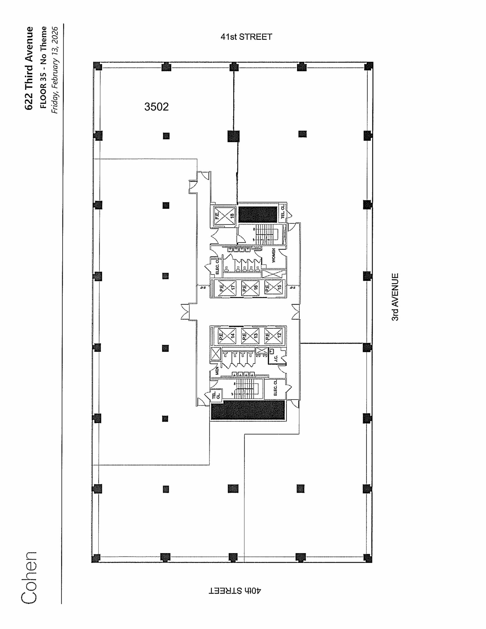
| 35e étage, ste 3502 | 3 500 pi² | Négociable | Sur demande Sur demande Sur demande Sur demande | Bureau | construction partielle | Maintenant |
| 36e étage | 26 500 pi² | Négociable | 103,36 $ CAD/pi²/an 8,61 $ CAD/pi²/mois 2 739 053 $ CAD/an 228 254 $ CAD/mois | Bureau | construction complète | Maintenant |
| 37e étage | 14 750 pi² | 5-10 ans | Sur demande Sur demande Sur demande Sur demande | Bureau | construction complète | Maintenant |
| 38e étage, ste 3802 | 5 712 pi² | Négociable | 103,36 $ CAD/pi²/an 8,61 $ CAD/pi²/mois 590 395 $ CAD/an 49 200 $ CAD/mois | Bureau | construction complète | Maintenant |
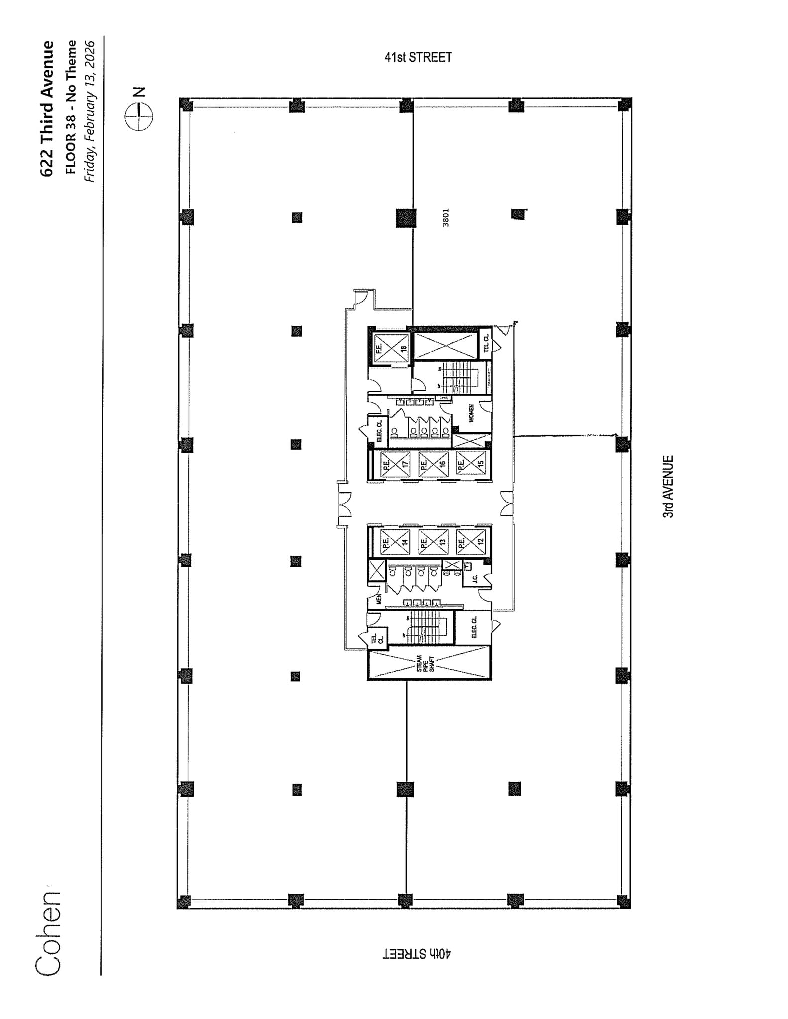
| 39e étage | 6 000 pi² | Négociable | Sur demande Sur demande Sur demande Sur demande | Bureau | - | Maintenant |
2e étage
| Taille |
| 28 500 pi² |
| Terme |
| Négociable |
| Taux de location |
| Sur demande Sur demande Sur demande Sur demande |
| Utilisation de l’espace |
| Bureau |
| Aménagement |
| construction complète |
| Disponible |
| Maintenant |
Mezzanine
| Taille |
| 3 800 pi² |
| Terme |
| Négociable |
| Taux de location |
| Sur demande Sur demande Sur demande Sur demande |
| Utilisation de l’espace |
| Bureau/Commerce de détail |
| Aménagement |
| construction partielle |
| Disponible |
| Maintenant |
6e étage
| Taille |
| 8 850 pi² |
| Terme |
| Négociable |
| Taux de location |
| 86,82 $ CAD/pi²/an 7,24 $ CAD/pi²/mois 768 382 $ CAD/an 64 032 $ CAD/mois |
| Utilisation de l’espace |
| Bureau |
| Aménagement |
| construction complète |
| Disponible |
| Maintenant |
7e étage
| Taille |
| 6 500 pi² |
| Terme |
| Négociable |
| Taux de location |
| Sur demande Sur demande Sur demande Sur demande |
| Utilisation de l’espace |
| Bureau |
| Aménagement |
| - |
| Disponible |
| Maintenant |
7e étage, ste 701
| Taille |
| 2 435 pi² |
| Terme |
| Négociable |
| Taux de location |
| Sur demande Sur demande Sur demande Sur demande |
| Utilisation de l’espace |
| Bureau |
| Aménagement |
| construction complète |
| Disponible |
| Maintenant |
7e étage, ste 703
| Taille |
| 20 000 pi² |
| Terme |
| Négociable |
| Taux de location |
| Sur demande Sur demande Sur demande Sur demande |
| Utilisation de l’espace |
| Bureau |
| Aménagement |
| construction complète |
| Disponible |
| Maintenant |
9e étage, ste 901
| Taille |
| 6 966 pi² |
| Terme |
| Négociable |
| Taux de location |
| Sur demande Sur demande Sur demande Sur demande |
| Utilisation de l’espace |
| Bureau |
| Aménagement |
| espace cloisonné |
| Disponible |
| Maintenant |
9e étage, ste 902
| Taille |
| 7 367 pi² |
| Terme |
| Négociable |
| Taux de location |
| Sur demande Sur demande Sur demande Sur demande |
| Utilisation de l’espace |
| Bureau |
| Aménagement |
| espace cloisonné |
| Disponible |
| Maintenant |
14e étage
| Taille |
| 26 500 pi² |
| Terme |
| Négociable |
| Taux de location |
| Sur demande Sur demande Sur demande Sur demande |
| Utilisation de l’espace |
| Bureau |
| Aménagement |
| construction complète |
| Disponible |
| 30 jours |
15e étage
| Taille |
| 26 500 pi² |
| Terme |
| Négociable |
| Taux de location |
| Sur demande Sur demande Sur demande Sur demande |
| Utilisation de l’espace |
| Bureau |
| Aménagement |
| construction complète |
| Disponible |
| 30 jours |
16e étage
| Taille |
| 13 500 pi² |
| Terme |
| Négociable |
| Taux de location |
| Sur demande Sur demande Sur demande Sur demande |
| Utilisation de l’espace |
| Bureau |
| Aménagement |
| construction complète |
| Disponible |
| 30 jours |
30e étage
| Taille |
| 9 500 pi² |
| Terme |
| Négociable |
| Taux de location |
| 103,36 $ CAD/pi²/an 8,61 $ CAD/pi²/mois 981 925 $ CAD/an 81 827 $ CAD/mois |
| Utilisation de l’espace |
| Bureau |
| Aménagement |
| espace cloisonné |
| Disponible |
| Maintenant |
31e étage
| Taille |
| 26 500 pi² |
| Terme |
| 3-15 ans |
| Taux de location |
| 103,36 $ CAD/pi²/an 8,61 $ CAD/pi²/mois 2 739 053 $ CAD/an 228 254 $ CAD/mois |
| Utilisation de l’espace |
| Bureau |
| Aménagement |
| construction complète |
| Disponible |
| Maintenant |
32e étage
| Taille |
| 26 500 pi² |
| Terme |
| Négociable |
| Taux de location |
| 103,36 $ CAD/pi²/an 8,61 $ CAD/pi²/mois 2 739 053 $ CAD/an 228 254 $ CAD/mois |
| Utilisation de l’espace |
| Bureau |
| Aménagement |
| construction complète |
| Disponible |
| Maintenant |
33e étage, ste 3302
| Taille |
| 4 979 pi² |
| Terme |
| Négociable |
| Taux de location |
| 103,36 $ CAD/pi²/an 8,61 $ CAD/pi²/mois 514 632 $ CAD/an 42 886 $ CAD/mois |
| Utilisation de l’espace |
| Bureau |
| Aménagement |
| construction partielle |
| Disponible |
| Maintenant |
34e étage
| Taille |
| 4 500 pi² |
| Terme |
| Négociable |
| Taux de location |
| Sur demande Sur demande Sur demande Sur demande |
| Utilisation de l’espace |
| Bureau |
| Aménagement |
| construction complète |
| Disponible |
| Maintenant |
35e étage
| Taille |
| 4 580 pi² |
| Terme |
| Négociable |
| Taux de location |
| Sur demande Sur demande Sur demande Sur demande |
| Utilisation de l’espace |
| Bureau |
| Aménagement |
| construction complète |
| Disponible |
| Maintenant |
35e étage, ste 3502
| Taille |
| 3 500 pi² |
| Terme |
| Négociable |
| Taux de location |
| Sur demande Sur demande Sur demande Sur demande |
| Utilisation de l’espace |
| Bureau |
| Aménagement |
| construction partielle |
| Disponible |
| Maintenant |
36e étage
| Taille |
| 26 500 pi² |
| Terme |
| Négociable |
| Taux de location |
| 103,36 $ CAD/pi²/an 8,61 $ CAD/pi²/mois 2 739 053 $ CAD/an 228 254 $ CAD/mois |
| Utilisation de l’espace |
| Bureau |
| Aménagement |
| construction complète |
| Disponible |
| Maintenant |
37e étage
| Taille |
| 14 750 pi² |
| Terme |
| 5-10 ans |
| Taux de location |
| Sur demande Sur demande Sur demande Sur demande |
| Utilisation de l’espace |
| Bureau |
| Aménagement |
| construction complète |
| Disponible |
| Maintenant |
38e étage, ste 3802
| Taille |
| 5 712 pi² |
| Terme |
| Négociable |
| Taux de location |
| 103,36 $ CAD/pi²/an 8,61 $ CAD/pi²/mois 590 395 $ CAD/an 49 200 $ CAD/mois |
| Utilisation de l’espace |
| Bureau |
| Aménagement |
| construction complète |
| Disponible |
| Maintenant |
39e étage
| Taille |
| 6 000 pi² |
| Terme |
| Négociable |
| Taux de location |
| Sur demande Sur demande Sur demande Sur demande |
| Utilisation de l’espace |
| Bureau |
| Aménagement |
| - |
| Disponible |
| Maintenant |
- Espace
- Taille
- Terme
- Taux de location
- Utilisation de l’espace
- Aménagement
- Disponible
BUILDING WITHIN A BUILDING OPPORTUNITY Private entrance from street with private elevator from ground to mezzanine Can be leased with entire second floor Emery Roth & Sons designed building with Moed de Armas & Shannon lobby Outdoor tenant amenities include block-through plaza with landscaping and seating and park with food service on adjacent 3 story restaurant rooftop 26’ – 28’ column spacing Ceiling heights: Ground - 10'6" - 22' Mezzanine - 11'6" Second Floor - 15'6"
- Partiellement construit comme Espace de commerce de détail standard
- Peut être associé à un ou plusieurs espaces supplémentaires pour obtenir jusqu’à 39 655 pi² d’espace adjacent.
- Plafonds finis: 11’6”
- Situé en ligne avec d’autres commerces de détail
- Climatisation centrale
- Several pre-built opportunities
15'6" slab to slab ceiling heights Above standard buildout consisting of open plan and conference rooms
- Entièrement construit comme Bureau de services professionnels
- Plafonds finis: 9’3”
- Peut être associé à un ou plusieurs espaces supplémentaires pour obtenir jusqu’à 39 655 pi² d’espace adjacent.
- Ouvrez Buildout !
- Disposition du plan d’étage ouverte en général
- Espace en excellent état
- Climatisation centrale
11'6" ceiling heights
- Disposition du plan d’étage ouverte en général
- Espace en excellent état
- Plafonds finis: 11’6”
- Peut être associé à un ou plusieurs espaces supplémentaires pour obtenir jusqu’à 39 655 pi² d’espace adjacent.
Built with 6 windowed offices, 4 windowed conference rooms, 1 interior conference room, wet pantry, and open area.
- Le taux inscrit peut ne pas comprendre certains services publics, les services de bâtiment et les dépenses immobilières.
- 6 bureaux privés
- Espace en excellent état
- Entièrement construit comme Bureau standard
- 5 salles de conférence
- Espace entièrement construit
Space is currently built and furnished with 3 offices, 1 conference room, wet pantry and open area for 30+.
Existing installation features 3 offices, 1 conference room, wet pantry, and small open area.
- Entièrement construit comme Bureau standard
- 3 bureaux privés
- Espace en excellent état
- Opportunité Shell Space !
- Disposition du plan d’étage ouverte
- 1 salle de conférence
- Climatisation centrale
Features Exposed ceilings and executive restroom with shower.
- Entièrement construit comme Bureau standard
- Climatisation centrale
- Disposition du plan d’étage ouverte en général
- Office intensive installation.
Raw space, landlord will deliver NBI.
- Disposition du plan d’étage ouverte
- Peut être associé à un ou plusieurs espaces supplémentaires pour obtenir jusqu’à 14 333 pi² d’espace adjacent.
- Opportunité Shell Space !
- Espace en excellent état
- Climatisation centrale
Raw space, Landlord will deliver NBI.
- Disposition du plan d’étage ouverte
- Peut être associé à un ou plusieurs espaces supplémentaires pour obtenir jusqu’à 14 333 pi² d’espace adjacent.
- Opportunité Shell Space !
- Espace en excellent état
- Climatisation centrale
Built, furnished creative installation in place. Features interconnecting staircase between floors 14-16.
- Entièrement construit comme Bureau standard
- Espace en excellent état
- Accès aux ascenseurs
- Possibilité à l'étage complet !
- Disposition du plan d’étage ouverte en général
- Peut être associé à un ou plusieurs espaces supplémentaires pour obtenir jusqu’à 66 500 pi² d’espace adjacent.
- Salle de bains privée
Built, furnished creative installation in place. Features interconnecting staircase between floors 14-16.
- Entièrement construit comme Bureau standard
- Espace en excellent état
- Accès aux ascenseurs
- Possibilité à l'étage complet !
- Disposition du plan d’étage ouverte
- Peut être associé à un ou plusieurs espaces supplémentaires pour obtenir jusqu’à 66 500 pi² d’espace adjacent.
- Salle de bains privée
Built, furnished creative installation in place with 7 offices, 1 conference room, wet pantry, and open area. Features interconnecting staircase between floors 14-16.
- Entièrement construit comme Bureau standard
- 7 bureaux privés
- Espace en excellent état
- Climatisation centrale
- Disposition du plan d’étage ouverte
- 1 salle de conférence
- Peut être associé à un ou plusieurs espaces supplémentaires pour obtenir jusqu’à 66 500 pi² d’espace adjacent.
- Possibilité à l'étage complet !
Raw full floor with 24' ceilings. Great natural light and views.
- Le taux inscrit peut ne pas comprendre certains services publics, les services de bâtiment et les dépenses immobilières.
- Plafonds finis: 25’
- Peut être associé à un ou plusieurs espaces supplémentaires pour obtenir jusqu’à 62 500 pi² d’espace adjacent.
- Lumière naturelle
- Disposition du plan d’étage ouverte
- Espace en excellent état
- Hauts plafonds
- Opportunité Shell Space !
Built creative installation with great natural light and views.
- Le taux inscrit peut ne pas comprendre certains services publics, les services de bâtiment et les dépenses immobilières.
- Disposition intensive du bureau
- Peut être associé à un ou plusieurs espaces supplémentaires pour obtenir jusqu’à 62 500 pi² d’espace adjacent.
- Possibilité d'étage complet !
- Entièrement construit comme Bureau standard
- Espace en excellent état
- Lumière naturelle
Built office intensive installation with great natural light and views.
- Le taux inscrit peut ne pas comprendre certains services publics, les services de bâtiment et les dépenses immobilières.
- Disposition intensive du bureau
- Peut être associé à un ou plusieurs espaces supplémentaires pour obtenir jusqu’à 62 500 pi² d’espace adjacent.
- Possibilité à l'étage complet !
- Entièrement construit comme Bureau standard
- Espace en excellent état
- Climatisation centrale
Existing creative installation Features great natural light and views Landlord will consider reasonable modifications
- Partiellement construit comme Bureau standard
- Espace en excellent état
- Disposition du plan d’étage ouverte en général
Built with 3 offies, 1 conference room, wet pantry, and open area.
- Entièrement construit comme Bureau standard
- 4 bureaux privés
- Espace en excellent état
- Disposition du plan d’étage ouverte en général
- 1 salle de conférence
- Espace entièrement construit
Delivered in white box condition. Features great natural light and views.
- Entièrement construit comme Bureau standard
- 2 salles de conférence
- Espace en excellent état
- Aire de réception
- 18 bureaux privés
- 32 postes de travail
- Peut être associé à un ou plusieurs espaces supplémentaires pour obtenir jusqu’à 31 080 pi² d’espace adjacent.
- Salle de bains privée
Existing installation features 5 offices, wet pantry, and small open area. Features great light and views. Landlord will consider reasonable modifications.
- Partiellement construit comme Bureau standard
- 6 bureaux privés
- Disposition du plan d’étage ouverte en général
- Espace en excellent état
Above-standard, creative installation with great natural light and views. Features interconnecting staircase between floors 36-37.
- Le taux inscrit peut ne pas comprendre certains services publics, les services de bâtiment et les dépenses immobilières.
- Disposition du plan d’étage ouverte en général
- 2 salles de conférence
- Peut être associé à un ou plusieurs espaces supplémentaires pour obtenir jusqu’à 31 080 pi² d’espace adjacent.
- Accès aux ascenseurs
- Possibilité à l'étage complet !
- Entièrement construit comme Bureau standard
- 4 bureaux privés
- Espace en excellent état
- Aire de réception
- Salle de bains privée
- Espace entièrement construit
Above-standard, creative installation with great natural light and views. Features exposed ceilings and polished concrete floors. Some furniture available. Interconnecting staircase between floors 36-37.
- Entièrement construit comme Bureau standard
- 30 bureaux privés
- Plafonds finis: 10’
- Espace entièrement construit
- Disposition du plan d’étage ouverte en général
- 2 salles de conférence
- Espace en excellent état
Existing installation features 7 offices, 1 conference room, wet pantry and open area. Landlord will consider demolishing and delivering NBI. Corner unit with GREAT natural light and unobstructed views of East River.
- Entièrement construit comme Bureau standard
- 2 salles de conférence
- Espace en excellent état
- 18 bureaux privés
- 8 postes de travail
- Espace entièrement construit
Space is recently built with 11 offices, wet pantry, and open area for 30+ Features exceptional natural light and views Some furniture can be made available
| Espace | Taille | Terme | Taux de location | Utilisation de l’espace | Aménagement | Disponible |
| RDC | 7 355 pi² | Négociable | Sur demande Sur demande Sur demande Sur demande | Commerce de détail | construction partielle | Maintenant |
| 2e étage | 28 500 pi² | Négociable | Sur demande Sur demande Sur demande Sur demande | Bureau | construction complète | Maintenant |
| Mezzanine | 3 800 pi² | Négociable | Sur demande Sur demande Sur demande Sur demande | Bureau/Commerce de détail | construction partielle | Maintenant |
| 6e étage | 8 850 pi² | Négociable | 86,82 $ CAD/pi²/an 7,24 $ CAD/pi²/mois 768 382 $ CAD/an 64 032 $ CAD/mois | Bureau | construction complète | Maintenant |
| 7e étage | 6 500 pi² | Négociable | Sur demande Sur demande Sur demande Sur demande | Bureau | - | Maintenant |
| 7e étage, ste 701 | 2 435 pi² | Négociable | Sur demande Sur demande Sur demande Sur demande | Bureau | construction complète | Maintenant |
| 7e étage, ste 703 | 20 000 pi² | Négociable | Sur demande Sur demande Sur demande Sur demande | Bureau | construction complète | Maintenant |
| 9e étage, ste 901 | 6 966 pi² | Négociable | Sur demande Sur demande Sur demande Sur demande | Bureau | espace cloisonné | Maintenant |
| 9e étage, ste 902 | 7 367 pi² | Négociable | Sur demande Sur demande Sur demande Sur demande | Bureau | espace cloisonné | Maintenant |
| 14e étage | 26 500 pi² | Négociable | Sur demande Sur demande Sur demande Sur demande | Bureau | construction complète | 30 jours |
| 15e étage | 26 500 pi² | Négociable | Sur demande Sur demande Sur demande Sur demande | Bureau | construction complète | 30 jours |
| 16e étage | 13 500 pi² | Négociable | Sur demande Sur demande Sur demande Sur demande | Bureau | construction complète | 30 jours |
| 30e étage | 9 500 pi² | Négociable | 103,36 $ CAD/pi²/an 8,61 $ CAD/pi²/mois 981 925 $ CAD/an 81 827 $ CAD/mois | Bureau | espace cloisonné | Maintenant |
| 31e étage | 26 500 pi² | 3-15 ans | 103,36 $ CAD/pi²/an 8,61 $ CAD/pi²/mois 2 739 053 $ CAD/an 228 254 $ CAD/mois | Bureau | construction complète | Maintenant |
| 32e étage | 26 500 pi² | Négociable | 103,36 $ CAD/pi²/an 8,61 $ CAD/pi²/mois 2 739 053 $ CAD/an 228 254 $ CAD/mois | Bureau | construction complète | Maintenant |
| 33e étage, ste 3302 | 4 979 pi² | Négociable | 103,36 $ CAD/pi²/an 8,61 $ CAD/pi²/mois 514 632 $ CAD/an 42 886 $ CAD/mois | Bureau | construction partielle | Maintenant |
| 34e étage | 4 500 pi² | Négociable | Sur demande Sur demande Sur demande Sur demande | Bureau | construction complète | Maintenant |
| 35e étage | 4 580 pi² | Négociable | Sur demande Sur demande Sur demande Sur demande | Bureau | construction complète | Maintenant |
| 35e étage, ste 3502 | 3 500 pi² | Négociable | Sur demande Sur demande Sur demande Sur demande | Bureau | construction partielle | Maintenant |
| 36e étage | 26 500 pi² | Négociable | 103,36 $ CAD/pi²/an 8,61 $ CAD/pi²/mois 2 739 053 $ CAD/an 228 254 $ CAD/mois | Bureau | construction complète | Maintenant |
| 37e étage | 14 750 pi² | 5-10 ans | Sur demande Sur demande Sur demande Sur demande | Bureau | construction complète | Maintenant |
| 38e étage, ste 3802 | 5 712 pi² | Négociable | 103,36 $ CAD/pi²/an 8,61 $ CAD/pi²/mois 590 395 $ CAD/an 49 200 $ CAD/mois | Bureau | construction complète | Maintenant |
| 39e étage | 6 000 pi² | Négociable | Sur demande Sur demande Sur demande Sur demande | Bureau | - | Maintenant |
RDC
| Taille |
| 7 355 pi² |
| Terme |
| Négociable |
| Taux de location |
| Sur demande Sur demande Sur demande Sur demande |
| Utilisation de l’espace |
| Commerce de détail |
| Aménagement |
| construction partielle |
| Disponible |
| Maintenant |
2e étage
| Taille |
| 28 500 pi² |
| Terme |
| Négociable |
| Taux de location |
| Sur demande Sur demande Sur demande Sur demande |
| Utilisation de l’espace |
| Bureau |
| Aménagement |
| construction complète |
| Disponible |
| Maintenant |
Mezzanine
| Taille |
| 3 800 pi² |
| Terme |
| Négociable |
| Taux de location |
| Sur demande Sur demande Sur demande Sur demande |
| Utilisation de l’espace |
| Bureau/Commerce de détail |
| Aménagement |
| construction partielle |
| Disponible |
| Maintenant |
6e étage
| Taille |
| 8 850 pi² |
| Terme |
| Négociable |
| Taux de location |
| 86,82 $ CAD/pi²/an 7,24 $ CAD/pi²/mois 768 382 $ CAD/an 64 032 $ CAD/mois |
| Utilisation de l’espace |
| Bureau |
| Aménagement |
| construction complète |
| Disponible |
| Maintenant |
7e étage
| Taille |
| 6 500 pi² |
| Terme |
| Négociable |
| Taux de location |
| Sur demande Sur demande Sur demande Sur demande |
| Utilisation de l’espace |
| Bureau |
| Aménagement |
| - |
| Disponible |
| Maintenant |
7e étage, ste 701
| Taille |
| 2 435 pi² |
| Terme |
| Négociable |
| Taux de location |
| Sur demande Sur demande Sur demande Sur demande |
| Utilisation de l’espace |
| Bureau |
| Aménagement |
| construction complète |
| Disponible |
| Maintenant |
7e étage, ste 703
| Taille |
| 20 000 pi² |
| Terme |
| Négociable |
| Taux de location |
| Sur demande Sur demande Sur demande Sur demande |
| Utilisation de l’espace |
| Bureau |
| Aménagement |
| construction complète |
| Disponible |
| Maintenant |
9e étage, ste 901
| Taille |
| 6 966 pi² |
| Terme |
| Négociable |
| Taux de location |
| Sur demande Sur demande Sur demande Sur demande |
| Utilisation de l’espace |
| Bureau |
| Aménagement |
| espace cloisonné |
| Disponible |
| Maintenant |
9e étage, ste 902
| Taille |
| 7 367 pi² |
| Terme |
| Négociable |
| Taux de location |
| Sur demande Sur demande Sur demande Sur demande |
| Utilisation de l’espace |
| Bureau |
| Aménagement |
| espace cloisonné |
| Disponible |
| Maintenant |
14e étage
| Taille |
| 26 500 pi² |
| Terme |
| Négociable |
| Taux de location |
| Sur demande Sur demande Sur demande Sur demande |
| Utilisation de l’espace |
| Bureau |
| Aménagement |
| construction complète |
| Disponible |
| 30 jours |
15e étage
| Taille |
| 26 500 pi² |
| Terme |
| Négociable |
| Taux de location |
| Sur demande Sur demande Sur demande Sur demande |
| Utilisation de l’espace |
| Bureau |
| Aménagement |
| construction complète |
| Disponible |
| 30 jours |
16e étage
| Taille |
| 13 500 pi² |
| Terme |
| Négociable |
| Taux de location |
| Sur demande Sur demande Sur demande Sur demande |
| Utilisation de l’espace |
| Bureau |
| Aménagement |
| construction complète |
| Disponible |
| 30 jours |
30e étage
| Taille |
| 9 500 pi² |
| Terme |
| Négociable |
| Taux de location |
| 103,36 $ CAD/pi²/an 8,61 $ CAD/pi²/mois 981 925 $ CAD/an 81 827 $ CAD/mois |
| Utilisation de l’espace |
| Bureau |
| Aménagement |
| espace cloisonné |
| Disponible |
| Maintenant |
31e étage
| Taille |
| 26 500 pi² |
| Terme |
| 3-15 ans |
| Taux de location |
| 103,36 $ CAD/pi²/an 8,61 $ CAD/pi²/mois 2 739 053 $ CAD/an 228 254 $ CAD/mois |
| Utilisation de l’espace |
| Bureau |
| Aménagement |
| construction complète |
| Disponible |
| Maintenant |
32e étage
| Taille |
| 26 500 pi² |
| Terme |
| Négociable |
| Taux de location |
| 103,36 $ CAD/pi²/an 8,61 $ CAD/pi²/mois 2 739 053 $ CAD/an 228 254 $ CAD/mois |
| Utilisation de l’espace |
| Bureau |
| Aménagement |
| construction complète |
| Disponible |
| Maintenant |
33e étage, ste 3302
| Taille |
| 4 979 pi² |
| Terme |
| Négociable |
| Taux de location |
| 103,36 $ CAD/pi²/an 8,61 $ CAD/pi²/mois 514 632 $ CAD/an 42 886 $ CAD/mois |
| Utilisation de l’espace |
| Bureau |
| Aménagement |
| construction partielle |
| Disponible |
| Maintenant |
34e étage
| Taille |
| 4 500 pi² |
| Terme |
| Négociable |
| Taux de location |
| Sur demande Sur demande Sur demande Sur demande |
| Utilisation de l’espace |
| Bureau |
| Aménagement |
| construction complète |
| Disponible |
| Maintenant |
35e étage
| Taille |
| 4 580 pi² |
| Terme |
| Négociable |
| Taux de location |
| Sur demande Sur demande Sur demande Sur demande |
| Utilisation de l’espace |
| Bureau |
| Aménagement |
| construction complète |
| Disponible |
| Maintenant |
35e étage, ste 3502
| Taille |
| 3 500 pi² |
| Terme |
| Négociable |
| Taux de location |
| Sur demande Sur demande Sur demande Sur demande |
| Utilisation de l’espace |
| Bureau |
| Aménagement |
| construction partielle |
| Disponible |
| Maintenant |
36e étage
| Taille |
| 26 500 pi² |
| Terme |
| Négociable |
| Taux de location |
| 103,36 $ CAD/pi²/an 8,61 $ CAD/pi²/mois 2 739 053 $ CAD/an 228 254 $ CAD/mois |
| Utilisation de l’espace |
| Bureau |
| Aménagement |
| construction complète |
| Disponible |
| Maintenant |
37e étage
| Taille |
| 14 750 pi² |
| Terme |
| 5-10 ans |
| Taux de location |
| Sur demande Sur demande Sur demande Sur demande |
| Utilisation de l’espace |
| Bureau |
| Aménagement |
| construction complète |
| Disponible |
| Maintenant |
38e étage, ste 3802
| Taille |
| 5 712 pi² |
| Terme |
| Négociable |
| Taux de location |
| 103,36 $ CAD/pi²/an 8,61 $ CAD/pi²/mois 590 395 $ CAD/an 49 200 $ CAD/mois |
| Utilisation de l’espace |
| Bureau |
| Aménagement |
| construction complète |
| Disponible |
| Maintenant |
39e étage
| Taille |
| 6 000 pi² |
| Terme |
| Négociable |
| Taux de location |
| Sur demande Sur demande Sur demande Sur demande |
| Utilisation de l’espace |
| Bureau |
| Aménagement |
| - |
| Disponible |
| Maintenant |
RDC
| Taille | 7 355 pi² |
| Terme | Négociable |
| Taux de location | Sur demande |
| Utilisation de l’espace | Commerce de détail |
| Aménagement | construction partielle |
| Disponible | Maintenant |
BUILDING WITHIN A BUILDING OPPORTUNITY Private entrance from street with private elevator from ground to mezzanine Can be leased with entire second floor Emery Roth & Sons designed building with Moed de Armas & Shannon lobby Outdoor tenant amenities include block-through plaza with landscaping and seating and park with food service on adjacent 3 story restaurant rooftop 26’ – 28’ column spacing Ceiling heights: Ground - 10'6" - 22' Mezzanine - 11'6" Second Floor - 15'6"
- Partiellement construit comme Espace de commerce de détail standard
- Situé en ligne avec d’autres commerces de détail
- Peut être associé à un ou plusieurs espaces supplémentaires pour obtenir jusqu’à 39 655 pi² d’espace adjacent.
- Climatisation centrale
- Plafonds finis: 11’6”
- Several pre-built opportunities
2e étage
| Taille | 28 500 pi² |
| Terme | Négociable |
| Taux de location | Sur demande |
| Utilisation de l’espace | Bureau |
| Aménagement | construction complète |
| Disponible | Maintenant |
15'6" slab to slab ceiling heights Above standard buildout consisting of open plan and conference rooms
- Entièrement construit comme Bureau de services professionnels
- Disposition du plan d’étage ouverte en général
- Plafonds finis: 9’3”
- Espace en excellent état
- Peut être associé à un ou plusieurs espaces supplémentaires pour obtenir jusqu’à 39 655 pi² d’espace adjacent.
- Climatisation centrale
- Ouvrez Buildout !
Mezzanine
| Taille | 3 800 pi² |
| Terme | Négociable |
| Taux de location | Sur demande |
| Utilisation de l’espace | Bureau/Commerce de détail |
| Aménagement | construction partielle |
| Disponible | Maintenant |
11'6" ceiling heights
- Disposition du plan d’étage ouverte en général
- Plafonds finis: 11’6”
- Espace en excellent état
- Peut être associé à un ou plusieurs espaces supplémentaires pour obtenir jusqu’à 39 655 pi² d’espace adjacent.
6e étage
| Taille | 8 850 pi² |
| Terme | Négociable |
| Taux de location | 86,82 $ CAD/pi²/an |
| Utilisation de l’espace | Bureau |
| Aménagement | construction complète |
| Disponible | Maintenant |
Built with 6 windowed offices, 4 windowed conference rooms, 1 interior conference room, wet pantry, and open area.
- Le taux inscrit peut ne pas comprendre certains services publics, les services de bâtiment et les dépenses immobilières.
- Entièrement construit comme Bureau standard
- 6 bureaux privés
- 5 salles de conférence
- Espace en excellent état
- Espace entièrement construit
7e étage
| Taille | 6 500 pi² |
| Terme | Négociable |
| Taux de location | Sur demande |
| Utilisation de l’espace | Bureau |
| Aménagement | - |
| Disponible | Maintenant |
Space is currently built and furnished with 3 offices, 1 conference room, wet pantry and open area for 30+.
7e étage, ste 701
| Taille | 2 435 pi² |
| Terme | Négociable |
| Taux de location | Sur demande |
| Utilisation de l’espace | Bureau |
| Aménagement | construction complète |
| Disponible | Maintenant |
Existing installation features 3 offices, 1 conference room, wet pantry, and small open area.
- Entièrement construit comme Bureau standard
- Disposition du plan d’étage ouverte
- 3 bureaux privés
- 1 salle de conférence
- Espace en excellent état
- Climatisation centrale
- Opportunité Shell Space !
7e étage, ste 703
| Taille | 20 000 pi² |
| Terme | Négociable |
| Taux de location | Sur demande |
| Utilisation de l’espace | Bureau |
| Aménagement | construction complète |
| Disponible | Maintenant |
Features Exposed ceilings and executive restroom with shower.
- Entièrement construit comme Bureau standard
- Disposition du plan d’étage ouverte en général
- Climatisation centrale
- Office intensive installation.
9e étage, ste 901
| Taille | 6 966 pi² |
| Terme | Négociable |
| Taux de location | Sur demande |
| Utilisation de l’espace | Bureau |
| Aménagement | espace cloisonné |
| Disponible | Maintenant |
Raw space, landlord will deliver NBI.
- Disposition du plan d’étage ouverte
- Espace en excellent état
- Peut être associé à un ou plusieurs espaces supplémentaires pour obtenir jusqu’à 14 333 pi² d’espace adjacent.
- Climatisation centrale
- Opportunité Shell Space !
9e étage, ste 902
| Taille | 7 367 pi² |
| Terme | Négociable |
| Taux de location | Sur demande |
| Utilisation de l’espace | Bureau |
| Aménagement | espace cloisonné |
| Disponible | Maintenant |
Raw space, Landlord will deliver NBI.
- Disposition du plan d’étage ouverte
- Espace en excellent état
- Peut être associé à un ou plusieurs espaces supplémentaires pour obtenir jusqu’à 14 333 pi² d’espace adjacent.
- Climatisation centrale
- Opportunité Shell Space !
14e étage
| Taille | 26 500 pi² |
| Terme | Négociable |
| Taux de location | Sur demande |
| Utilisation de l’espace | Bureau |
| Aménagement | construction complète |
| Disponible | 30 jours |
Built, furnished creative installation in place. Features interconnecting staircase between floors 14-16.
- Entièrement construit comme Bureau standard
- Disposition du plan d’étage ouverte en général
- Espace en excellent état
- Peut être associé à un ou plusieurs espaces supplémentaires pour obtenir jusqu’à 66 500 pi² d’espace adjacent.
- Accès aux ascenseurs
- Salle de bains privée
- Possibilité à l'étage complet !
15e étage
| Taille | 26 500 pi² |
| Terme | Négociable |
| Taux de location | Sur demande |
| Utilisation de l’espace | Bureau |
| Aménagement | construction complète |
| Disponible | 30 jours |
Built, furnished creative installation in place. Features interconnecting staircase between floors 14-16.
- Entièrement construit comme Bureau standard
- Disposition du plan d’étage ouverte
- Espace en excellent état
- Peut être associé à un ou plusieurs espaces supplémentaires pour obtenir jusqu’à 66 500 pi² d’espace adjacent.
- Accès aux ascenseurs
- Salle de bains privée
- Possibilité à l'étage complet !
16e étage
| Taille | 13 500 pi² |
| Terme | Négociable |
| Taux de location | Sur demande |
| Utilisation de l’espace | Bureau |
| Aménagement | construction complète |
| Disponible | 30 jours |
Built, furnished creative installation in place with 7 offices, 1 conference room, wet pantry, and open area. Features interconnecting staircase between floors 14-16.
- Entièrement construit comme Bureau standard
- Disposition du plan d’étage ouverte
- 7 bureaux privés
- 1 salle de conférence
- Espace en excellent état
- Peut être associé à un ou plusieurs espaces supplémentaires pour obtenir jusqu’à 66 500 pi² d’espace adjacent.
- Climatisation centrale
- Possibilité à l'étage complet !
30e étage
| Taille | 9 500 pi² |
| Terme | Négociable |
| Taux de location | 103,36 $ CAD/pi²/an |
| Utilisation de l’espace | Bureau |
| Aménagement | espace cloisonné |
| Disponible | Maintenant |
Raw full floor with 24' ceilings. Great natural light and views.
- Le taux inscrit peut ne pas comprendre certains services publics, les services de bâtiment et les dépenses immobilières.
- Disposition du plan d’étage ouverte
- Plafonds finis: 25’
- Espace en excellent état
- Peut être associé à un ou plusieurs espaces supplémentaires pour obtenir jusqu’à 62 500 pi² d’espace adjacent.
- Hauts plafonds
- Lumière naturelle
- Opportunité Shell Space !
31e étage
| Taille | 26 500 pi² |
| Terme | 3-15 ans |
| Taux de location | 103,36 $ CAD/pi²/an |
| Utilisation de l’espace | Bureau |
| Aménagement | construction complète |
| Disponible | Maintenant |
Built creative installation with great natural light and views.
- Le taux inscrit peut ne pas comprendre certains services publics, les services de bâtiment et les dépenses immobilières.
- Entièrement construit comme Bureau standard
- Disposition intensive du bureau
- Espace en excellent état
- Peut être associé à un ou plusieurs espaces supplémentaires pour obtenir jusqu’à 62 500 pi² d’espace adjacent.
- Lumière naturelle
- Possibilité d'étage complet !
32e étage
| Taille | 26 500 pi² |
| Terme | Négociable |
| Taux de location | 103,36 $ CAD/pi²/an |
| Utilisation de l’espace | Bureau |
| Aménagement | construction complète |
| Disponible | Maintenant |
Built office intensive installation with great natural light and views.
- Le taux inscrit peut ne pas comprendre certains services publics, les services de bâtiment et les dépenses immobilières.
- Entièrement construit comme Bureau standard
- Disposition intensive du bureau
- Espace en excellent état
- Peut être associé à un ou plusieurs espaces supplémentaires pour obtenir jusqu’à 62 500 pi² d’espace adjacent.
- Climatisation centrale
- Possibilité à l'étage complet !
33e étage, ste 3302
| Taille | 4 979 pi² |
| Terme | Négociable |
| Taux de location | 103,36 $ CAD/pi²/an |
| Utilisation de l’espace | Bureau |
| Aménagement | construction partielle |
| Disponible | Maintenant |
Existing creative installation Features great natural light and views Landlord will consider reasonable modifications
- Partiellement construit comme Bureau standard
- Disposition du plan d’étage ouverte en général
- Espace en excellent état
34e étage
| Taille | 4 500 pi² |
| Terme | Négociable |
| Taux de location | Sur demande |
| Utilisation de l’espace | Bureau |
| Aménagement | construction complète |
| Disponible | Maintenant |
Built with 3 offies, 1 conference room, wet pantry, and open area.
- Entièrement construit comme Bureau standard
- Disposition du plan d’étage ouverte en général
- 4 bureaux privés
- 1 salle de conférence
- Espace en excellent état
- Espace entièrement construit
35e étage
| Taille | 4 580 pi² |
| Terme | Négociable |
| Taux de location | Sur demande |
| Utilisation de l’espace | Bureau |
| Aménagement | construction complète |
| Disponible | Maintenant |
Delivered in white box condition. Features great natural light and views.
- Entièrement construit comme Bureau standard
- 18 bureaux privés
- 2 salles de conférence
- 32 postes de travail
- Espace en excellent état
- Peut être associé à un ou plusieurs espaces supplémentaires pour obtenir jusqu’à 31 080 pi² d’espace adjacent.
- Aire de réception
- Salle de bains privée
35e étage, ste 3502
| Taille | 3 500 pi² |
| Terme | Négociable |
| Taux de location | Sur demande |
| Utilisation de l’espace | Bureau |
| Aménagement | construction partielle |
| Disponible | Maintenant |
Existing installation features 5 offices, wet pantry, and small open area. Features great light and views. Landlord will consider reasonable modifications.
- Partiellement construit comme Bureau standard
- Disposition du plan d’étage ouverte en général
- 6 bureaux privés
- Espace en excellent état
36e étage
| Taille | 26 500 pi² |
| Terme | Négociable |
| Taux de location | 103,36 $ CAD/pi²/an |
| Utilisation de l’espace | Bureau |
| Aménagement | construction complète |
| Disponible | Maintenant |
Above-standard, creative installation with great natural light and views. Features interconnecting staircase between floors 36-37.
- Le taux inscrit peut ne pas comprendre certains services publics, les services de bâtiment et les dépenses immobilières.
- Entièrement construit comme Bureau standard
- Disposition du plan d’étage ouverte en général
- 4 bureaux privés
- 2 salles de conférence
- Espace en excellent état
- Peut être associé à un ou plusieurs espaces supplémentaires pour obtenir jusqu’à 31 080 pi² d’espace adjacent.
- Aire de réception
- Accès aux ascenseurs
- Salle de bains privée
- Possibilité à l'étage complet !
- Espace entièrement construit
37e étage
| Taille | 14 750 pi² |
| Terme | 5-10 ans |
| Taux de location | Sur demande |
| Utilisation de l’espace | Bureau |
| Aménagement | construction complète |
| Disponible | Maintenant |
Above-standard, creative installation with great natural light and views. Features exposed ceilings and polished concrete floors. Some furniture available. Interconnecting staircase between floors 36-37.
- Entièrement construit comme Bureau standard
- Disposition du plan d’étage ouverte en général
- 30 bureaux privés
- 2 salles de conférence
- Plafonds finis: 10’
- Espace en excellent état
- Espace entièrement construit
38e étage, ste 3802
| Taille | 5 712 pi² |
| Terme | Négociable |
| Taux de location | 103,36 $ CAD/pi²/an |
| Utilisation de l’espace | Bureau |
| Aménagement | construction complète |
| Disponible | Maintenant |
Existing installation features 7 offices, 1 conference room, wet pantry and open area. Landlord will consider demolishing and delivering NBI. Corner unit with GREAT natural light and unobstructed views of East River.
- Entièrement construit comme Bureau standard
- 18 bureaux privés
- 2 salles de conférence
- 8 postes de travail
- Espace en excellent état
- Espace entièrement construit
39e étage
| Taille | 6 000 pi² |
| Terme | Négociable |
| Taux de location | Sur demande |
| Utilisation de l’espace | Bureau |
| Aménagement | - |
| Disponible | Maintenant |
Space is recently built with 11 offices, wet pantry, and open area for 30+ Features exceptional natural light and views Some furniture can be made available
Aperçu de la propriété
Le Grand Central Plaza situé au 622 Third Avenue est un immeuble commercial et à bureaux de 41 étages construit en 1974. La tour de bureau de classe A de premier ordre se trouve à proximité du grand terminal central. Elle offre des vues panoramiques et des systèmes de sécurité et de sécurité-incendie à la fine pointe de la technologie.
- Accès 24 heures
- Banque
- Restaurant
Faits sur la propriété
Présenté par
Grand Central Plaza | 622 Third Ave
Hmm, il semble y avoir eu une erreur lors de l’envoi de votre message. Veuillez réessayer.
Merci! Votre message a été envoyé.




















































