Se Connecter/S’inscrire
Votre courriel a été envoyé.
Certaines informations ont été traduites automatiquement.
Faits sur la propriété
| Type de vente | Investissement | Sous-type de propriété | Terrain industriel |
| Nombre de lots | 6 | Utilisation proposée | Développement familial unique |
| Type de propriété | Terrain | Taille totale du lot | 68,89 AC |
| Zonage | E-1 - Res Imps sur des terres rurales et des espaces ouverts non qualifiés | ||
| Type de vente | Investissement |
| Nombre de lots | 6 |
| Type de propriété | Terrain |
| Sous-type de propriété | Terrain industriel |
| Utilisation proposée | Développement familial unique |
| Taille totale du lot | 68,89 AC |
| Zonage | E-1 - Res Imps sur des terres rurales et des espaces ouverts non qualifiés |
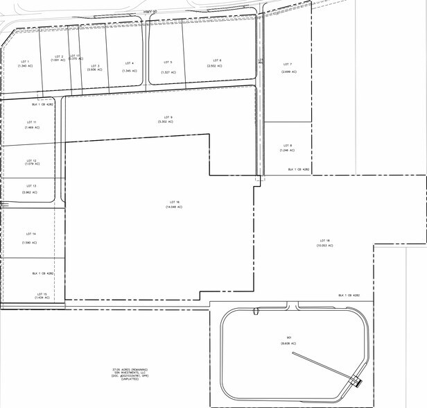
6 Lots disponibles
Lot 8
| Taille du lot | 1,25 AC |
| Taille du lot | 1,25 AC |
Commerciale
Lot 9
| Taille du lot | 5,03 AC |
| Taille du lot | 5,03 AC |
Commerciale
Lot 15
| Taille du lot | 1,43 AC |
| Taille du lot | 1,43 AC |
Commerciale
Lot 16
| Taille du lot | 14,08 AC |
| Taille du lot | 14,08 AC |
Multi-famille
Lot 18
| Taille du lot | 10,05 AC |
| Taille du lot | 10,05 AC |
Multi-famille
Lot SF
| Taille du lot | 37,05 AC |
| Taille du lot | 37,05 AC |
Famille unifamiliale
1 1
Plutôt praticable à pied
20/100
Exceptionnellement facile d’accès en voiture
100/100
Assez praticable en vélo
20/100
Impôts fonciers
| Numéro de lot | 04342-000-0097 | Évaluation des bâtiments | 459 594 $ CAD |
| Évaluation du terrain | 2 750 946 $ CAD | Évaluation totale | 3 210 540 $ CAD |
Impôts fonciers
Numéro de lot
04342-000-0097
Évaluation du terrain
2 750 946 $ CAD
Évaluation des bâtiments
459 594 $ CAD
Évaluation totale
3 210 540 $ CAD
1 de 4
Vidéos
Visite extérieure 3D Matterport
Visite 3D Matterport
Photos
Vue depuis la rue
Rue
Carte
1 de 1
Présenté par
6250 Wt Montgomery
Vous êtes déjà membre? Connectez-vous
Hmm, il semble y avoir eu une erreur lors de l’envoi de votre message. Veuillez réessayer.
Merci! Votre message a été envoyé.



