Votre courriel a été envoyé.
YYZ Corporate Centre Mississauga, ON L4V 1R8 1 116–90 713 pi² d'espace disponible • Bureau



Certaines informations ont été traduites automatiquement.
Faits saillants du parc
- Emplacement privilégié avec un accès facile aux autoroutes et au transport en commun
- Sécurité 24 heures sur 24 et 7 jours sur 7 et gestion des biens sur place
- Navette gratuite pour les locataires de/vers la gare Viscount et les services sur place
- Gymnase, salle de conférence et service de lavage de voitures sur place pour les locataires
Faits sur le parc
| Superficie totale disponible | 90 713 pi² | Type de parc | Parc de bureaux |
| Superficie totale disponible | 90 713 pi² |
| Type de parc | Parc de bureaux |
Tous les espaces disponibles(19)
Afficher les taux de location en
- Espace
- Taille
- Terme
- Taux de location
- Utilisation de l’espace
- Aménagement
- Disponible
Unité d'angle aménagée avec un mélange de bureaux privés, salles de réunion et espace ouvert.
- Le taux de location ne comprend pas les services publics, les services de bâtiment ou les dépenses immobilières.
- Disposition du plan d’étage ouverte en général
- 6 bureaux privés
- Air central et chauffage
- Stationnement
- Unité d'angle
- Partiellement construit comme Bureau standard
- Convient pour 20 à 63 personnes
- 2 salles de conférence
- Lumière naturelle
- Accès au transport en commun
Espace brut disponible.
- Le taux de location ne comprend pas les services publics, les services de bâtiment ou les dépenses immobilières.
- Lumière naturelle
- Stationnement
- Air central et chauffage
- Lumière naturelle
- Accès au transport en commun
Aménagé avec un mélange de bureaux privés, salles de réunion, kitchenette et espace ouvert.
- Le taux de location ne comprend pas les services publics, les services de bâtiment ou les dépenses immobilières.
- Disposition du plan d’étage ouverte en général
- 3 bureaux privés
- Air central et chauffage
- Stationnement
- Unité d'angle
- Partiellement construit comme Bureau standard
- Convient pour 14 à 42 personnes
- 2 salles de conférence
- Lumière naturelle
- Accès au transport en commun
Aménagé avec un mélange de bureaux privés, salles de réunion, kitchenette et espace ouvert.
- Le taux de location ne comprend pas les services publics, les services de bâtiment ou les dépenses immobilières.
- Disposition du plan d’étage ouverte en général
- 3 bureaux privés
- Air central et chauffage
- Stationnement
- Unité d'angle
- Partiellement construit comme Bureau standard
- Convient pour 5 à 14 personnes
- 2 salles de conférence
- Lumière naturelle
- Accès au transport en commun
Aménagé avec des bureaux privés, des salles de réunion, une kitchenette et un espace ouvert.
- Le taux de location ne comprend pas les services publics, les services de bâtiment ou les dépenses immobilières.
- Disposition du plan d’étage ouverte en général
- 3 bureaux privés
- Air central et chauffage
- Accès au transport en commun
- Lumière naturelle
- Partiellement construit comme Bureau standard
- Convient pour 6 à 17 personnes
- 2 salles de conférence
- Lumière naturelle
- Stationnement
Aménagé avec des bureaux privés, des salles de réunion, une salle de conseil, une cuisine, une salle à manger, une réception et un espace ouvert.
- Le taux de location ne comprend pas les services publics, les services de bâtiment ou les dépenses immobilières.
- Disposition du plan d’étage ouverte en général
- 7 bureaux privés
- Air central et chauffage
- Accès au transport en commun
- Lumière naturelle
- Partiellement construit comme Bureau standard
- Convient pour 22 à 69 personnes
- 4 salles de conférence
- Éclairage accentué
- Stationnement
Espace brut disponible.
- Le taux de location ne comprend pas les services publics, les services de bâtiment ou les dépenses immobilières.
- Climatisation centrale
- Éclairage accentué
- Stationnement
- Disposition du plan d’étage ouverte en général
- Lumière naturelle
- Accès au transport en commun
- Lumière naturelle
Aménagé avec des bureaux privés, des salles de réunion et un espace ouvert.
- Le taux de location ne comprend pas les services publics, les services de bâtiment ou les dépenses immobilières.
- Disposition du plan d’étage ouverte en général
- Bureaux partitionnés
- Accès au transport en commun
- Lumière naturelle
- Partiellement construit comme Bureau standard
- Convient pour 3 à 9 personnes
- Air central et chauffage
- Stationnement
Aménagé avec une salle de réunion/bureau privé et un espace ouvert.
- Le taux de location ne comprend pas les services publics, les services de bâtiment ou les dépenses immobilières.
- Disposition du plan d’étage ouverte en général
- 1 bureau privé
- Accès aux ascenseurs
- Stationnement
- Partiellement construit comme Bureau standard
- Convient pour 4 à 13 personnes
- Air central et chauffage
- Lumière naturelle
- Accès au transport en commun
| Espace | Taille | Terme | Taux de location | Utilisation de l’espace | Aménagement | Disponible |
| 1er étage, ste 101 | 6 784 pi² | 3-5 ans | 15,50 $ CAD/pi²/an 1,29 $ CAD/pi²/mois 105 152 $ CAD/an 8 763 $ CAD/mois | Bureau | construction partielle | 30 jours |
| 2e étage, ste 201 | 3 460 pi² | 3-5 ans | 15,50 $ CAD/pi²/an 1,29 $ CAD/pi²/mois 53 630 $ CAD/an 4 469 $ CAD/mois | Bureau | espace cloisonné | 30 jours |
| 3e étage, ste 300 | 5 203 pi² | 3-5 ans | 15,50 $ CAD/pi²/an 1,29 $ CAD/pi²/mois 80 647 $ CAD/an 6 721 $ CAD/mois | Bureau | construction partielle | 30 jours |
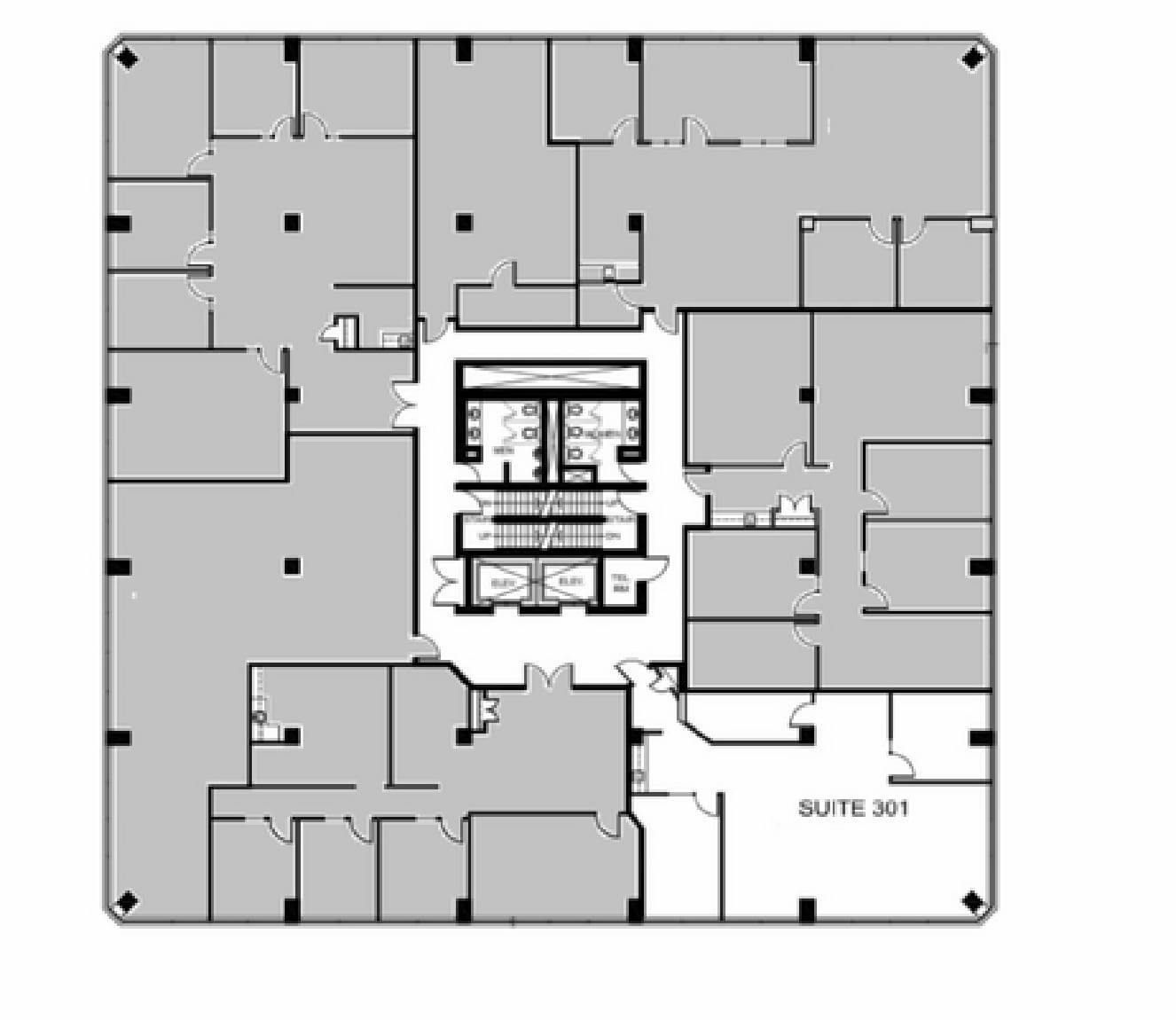
| 3e étage, ste 301 | 1 643 pi² | 3-5 ans | 15,50 $ CAD/pi²/an 1,29 $ CAD/pi²/mois 25 467 $ CAD/an 2 122 $ CAD/mois | Bureau | construction partielle | 30 jours |
| 3e étage, ste 302 | 2 019 pi² | 3-5 ans | 15,50 $ CAD/pi²/an 1,29 $ CAD/pi²/mois 31 295 $ CAD/an 2 608 $ CAD/mois | Bureau | construction partielle | 30 jours |
| 5e étage, ste 506 | 8 602 pi² | 3-5 ans | 15,50 $ CAD/pi²/an 1,29 $ CAD/pi²/mois 133 331 $ CAD/an 11 111 $ CAD/mois | Bureau | construction partielle | 30 jours |
| 7e étage, ste 703 | 3 742 pi² | 3-5 ans | 15,50 $ CAD/pi²/an 1,29 $ CAD/pi²/mois 58 001 $ CAD/an 4 833 $ CAD/mois | Bureau | espace cloisonné | 30 jours |
| 7e étage, ste 706 | 1 116 pi² | 3-5 ans | 15,50 $ CAD/pi²/an 1,29 $ CAD/pi²/mois 17 298 $ CAD/an 1 442 $ CAD/mois | Bureau | construction partielle | 30 jours |
| 7e étage, ste 707 | 1 507 pi² | 3-5 ans | 15,50 $ CAD/pi²/an 1,29 $ CAD/pi²/mois 23 359 $ CAD/an 1 947 $ CAD/mois | Bureau | construction partielle | 30 jours |
6299 Airport Rd - 1er étage - ste 101
6299 Airport Rd - 2e étage - ste 201
6299 Airport Rd - 3e étage - ste 300
6299 Airport Rd - 3e étage - ste 301
6299 Airport Rd - 3e étage - ste 302
6299 Airport Rd - 5e étage - ste 506
6299 Airport Rd - 7e étage - ste 703
6299 Airport Rd - 7e étage - ste 706
6299 Airport Rd - 7e étage - ste 707
- Espace
- Taille
- Terme
- Taux de location
- Utilisation de l’espace
- Aménagement
- Disponible
- Le taux de location ne comprend pas les services publics, les services de bâtiment ou les dépenses immobilières.
- Convient pour 17 à 54 personnes
- Entièrement construit comme Bureau standard
Aménagé avec un mélange de bureaux privés, salles de réunion et espace ouvert.
- Le taux de location ne comprend pas les services publics, les services de bâtiment ou les dépenses immobilières.
- Convient pour 4 à 13 personnes
- Lumière naturelle
- Lumière naturelle
- Entièrement construit comme Bureau standard
- Air central et chauffage
- Accès au transport en commun
Aménagé avec un mélange de bureaux privés, salles de réunion et espace ouvert.
- Le taux de location ne comprend pas les services publics, les services de bâtiment ou les dépenses immobilières.
- Disposition du plan d’étage ouverte en général
- Air central et chauffage
- Stationnement
- Lumière naturelle
- Entièrement construit comme Bureau standard
- Convient pour 7 à 20 personnes
- Lumière naturelle
- Accès au transport en commun
Aménagé avec un mélange de bureaux privés, salles de réunion, cuisine et espace ouvert.
- Le taux de location ne comprend pas les services publics, les services de bâtiment ou les dépenses immobilières.
- Disposition du plan d’étage ouverte en général
- Air central et chauffage
- Stationnement
- Lumière naturelle
- Entièrement construit comme Bureau standard
- Convient pour 18 à 57 personnes
- Lumière naturelle
- Accès au transport en commun
Espace brut disponible à louer.
- Le taux de location ne comprend pas les services publics, les services de bâtiment ou les dépenses immobilières.
- Convient pour 16 à 51 personnes
- Lumière naturelle
- Accès au transport en commun
- Disposition du plan d’étage ouverte en général
- Air central et chauffage
- Stationnement
- Lumière naturelle
Espace brut disponible à louer.
- Le taux de location ne comprend pas les services publics, les services de bâtiment ou les dépenses immobilières.
- Convient pour 21 à 66 personnes
- Lumière naturelle
- Stationnement
- Disposition du plan d’étage ouverte en général
- Air central et chauffage
- Accès au transport en commun
- Lumière naturelle
- Le taux de location ne comprend pas les services publics, les services de bâtiment ou les dépenses immobilières.
- Convient pour 10 à 30 personnes
- Entièrement construit comme Bureau standard
Espace brut disponible à louer.
- Le taux de location ne comprend pas les services publics, les services de bâtiment ou les dépenses immobilières.
- Convient pour 4 à 11 personnes
- Lumière naturelle
- Stationnement
- Disposition du plan d’étage ouverte en général
- Air central et chauffage
- Accès au transport en commun
- Lumière naturelle
Aménagé avec des bureaux privés, des salles de réunion, une kitchenette et un espace ouvert.
- Le taux de location ne comprend pas les services publics, les services de bâtiment ou les dépenses immobilières.
- Disposition du plan d’étage ouverte en général
- 9 bureaux privés
- Air central et chauffage
- Accès au transport en commun
- Lumière naturelle
- Entièrement construit comme Bureau standard
- Convient pour 8 à 26 personnes
- 3 salles de conférence
- Lumière naturelle
- Stationnement
Aménagé avec des bureaux privés, des salles de réunion, une kitchenette et un espace ouvert.
- Le taux de location ne comprend pas les services publics, les services de bâtiment ou les dépenses immobilières.
- Disposition du plan d’étage ouverte en général
- 12 bureaux privés
- Air central et chauffage
- Accès au transport en commun
- Lumière naturelle
- Entièrement construit comme Bureau standard
- Convient pour 41 à 131 personnes
- 4 salles de conférence
- Lumière naturelle
- Stationnement
| Espace | Taille | Terme | Taux de location | Utilisation de l’espace | Aménagement | Disponible |
| 1er étage, ste 101 | 6 653 pi² | Négociable | 15,50 $ CAD/pi²/an 1,29 $ CAD/pi²/mois 103 122 $ CAD/an 8 593 $ CAD/mois | Bureau | construction complète | 30 jours |
| 1er étage, ste 102 | 1 574 pi² | 3-5 ans | 15,50 $ CAD/pi²/an 1,29 $ CAD/pi²/mois 24 397 $ CAD/an 2 033 $ CAD/mois | Bureau | construction complète | Maintenant |
| 1er étage, ste 103 | 2 465 pi² | 3-5 ans | 15,50 $ CAD/pi²/an 1,29 $ CAD/pi²/mois 38 208 $ CAD/an 3 184 $ CAD/mois | Bureau | construction complète | Maintenant |
| 3e étage, ste 300 | 7 026 pi² | 3-5 ans | 15,50 $ CAD/pi²/an 1,29 $ CAD/pi²/mois 108 903 $ CAD/an 9 075 $ CAD/mois | Bureau | construction complète | Maintenant |
| 3e étage, ste 305 | 6 358 pi² | 3-5 ans | 15,50 $ CAD/pi²/an 1,29 $ CAD/pi²/mois 98 549 $ CAD/an 8 212 $ CAD/mois | Bureau | construction complète | Maintenant |
| 4e étage, ste 400 | 8 142 pi² | 3-5 ans | 15,50 $ CAD/pi²/an 1,29 $ CAD/pi²/mois 126 201 $ CAD/an 10 517 $ CAD/mois | Bureau | construction complète | Maintenant |
| 4e étage, ste 401 | 3 694 pi² | Négociable | 15,50 $ CAD/pi²/an 1,29 $ CAD/pi²/mois 57 257 $ CAD/an 4 771 $ CAD/mois | Bureau | construction complète | 30 jours |
| 4e étage, ste 402 | 1 295 pi² | 3-5 ans | 15,50 $ CAD/pi²/an 1,29 $ CAD/pi²/mois 20 073 $ CAD/an 1 673 $ CAD/mois | Bureau | construction complète | Maintenant |
| 4e étage, ste 403 | 3 149 pi² | 3-5 ans | 15,50 $ CAD/pi²/an 1,29 $ CAD/pi²/mois 48 810 $ CAD/an 4 067 $ CAD/mois | Bureau | construction complète | Maintenant |
| 5e étage, ste 500 | 16 281 pi² | 3-5 ans | 15,50 $ CAD/pi²/an 1,29 $ CAD/pi²/mois 252 356 $ CAD/an 21 030 $ CAD/mois | Bureau | construction complète | Maintenant |
6303 Airport Rd - 1er étage - ste 101
6303 Airport Rd - 1er étage - ste 102
6303 Airport Rd - 1er étage - ste 103
6303 Airport Rd - 3e étage - ste 300
6303 Airport Rd - 3e étage - ste 305
6303 Airport Rd - 4e étage - ste 400
6303 Airport Rd - 4e étage - ste 401
6303 Airport Rd - 4e étage - ste 402
6303 Airport Rd - 4e étage - ste 403
6303 Airport Rd - 5e étage - ste 500
6299 Airport Rd - 1er étage - ste 101
| Taille | 6 784 pi² |
| Terme | 3-5 ans |
| Taux de location | 15,50 $ CAD/pi²/an |
| Utilisation de l’espace | Bureau |
| Aménagement | construction partielle |
| Disponible | 30 jours |
Unité d'angle aménagée avec un mélange de bureaux privés, salles de réunion et espace ouvert.
- Le taux de location ne comprend pas les services publics, les services de bâtiment ou les dépenses immobilières.
- Partiellement construit comme Bureau standard
- Disposition du plan d’étage ouverte en général
- Convient pour 20 à 63 personnes
- 6 bureaux privés
- 2 salles de conférence
- Air central et chauffage
- Lumière naturelle
- Stationnement
- Accès au transport en commun
- Unité d'angle
6299 Airport Rd - 2e étage - ste 201
| Taille | 3 460 pi² |
| Terme | 3-5 ans |
| Taux de location | 15,50 $ CAD/pi²/an |
| Utilisation de l’espace | Bureau |
| Aménagement | espace cloisonné |
| Disponible | 30 jours |
Espace brut disponible.
- Le taux de location ne comprend pas les services publics, les services de bâtiment ou les dépenses immobilières.
- Air central et chauffage
- Lumière naturelle
- Lumière naturelle
- Stationnement
- Accès au transport en commun
6299 Airport Rd - 3e étage - ste 300
| Taille | 5 203 pi² |
| Terme | 3-5 ans |
| Taux de location | 15,50 $ CAD/pi²/an |
| Utilisation de l’espace | Bureau |
| Aménagement | construction partielle |
| Disponible | 30 jours |
Aménagé avec un mélange de bureaux privés, salles de réunion, kitchenette et espace ouvert.
- Le taux de location ne comprend pas les services publics, les services de bâtiment ou les dépenses immobilières.
- Partiellement construit comme Bureau standard
- Disposition du plan d’étage ouverte en général
- Convient pour 14 à 42 personnes
- 3 bureaux privés
- 2 salles de conférence
- Air central et chauffage
- Lumière naturelle
- Stationnement
- Accès au transport en commun
- Unité d'angle
6299 Airport Rd - 3e étage - ste 301
| Taille | 1 643 pi² |
| Terme | 3-5 ans |
| Taux de location | 15,50 $ CAD/pi²/an |
| Utilisation de l’espace | Bureau |
| Aménagement | construction partielle |
| Disponible | 30 jours |
Aménagé avec un mélange de bureaux privés, salles de réunion, kitchenette et espace ouvert.
- Le taux de location ne comprend pas les services publics, les services de bâtiment ou les dépenses immobilières.
- Partiellement construit comme Bureau standard
- Disposition du plan d’étage ouverte en général
- Convient pour 5 à 14 personnes
- 3 bureaux privés
- 2 salles de conférence
- Air central et chauffage
- Lumière naturelle
- Stationnement
- Accès au transport en commun
- Unité d'angle
6299 Airport Rd - 3e étage - ste 302
| Taille | 2 019 pi² |
| Terme | 3-5 ans |
| Taux de location | 15,50 $ CAD/pi²/an |
| Utilisation de l’espace | Bureau |
| Aménagement | construction partielle |
| Disponible | 30 jours |
Aménagé avec des bureaux privés, des salles de réunion, une kitchenette et un espace ouvert.
- Le taux de location ne comprend pas les services publics, les services de bâtiment ou les dépenses immobilières.
- Partiellement construit comme Bureau standard
- Disposition du plan d’étage ouverte en général
- Convient pour 6 à 17 personnes
- 3 bureaux privés
- 2 salles de conférence
- Air central et chauffage
- Lumière naturelle
- Accès au transport en commun
- Stationnement
- Lumière naturelle
6299 Airport Rd - 5e étage - ste 506
| Taille | 8 602 pi² |
| Terme | 3-5 ans |
| Taux de location | 15,50 $ CAD/pi²/an |
| Utilisation de l’espace | Bureau |
| Aménagement | construction partielle |
| Disponible | 30 jours |
Aménagé avec des bureaux privés, des salles de réunion, une salle de conseil, une cuisine, une salle à manger, une réception et un espace ouvert.
- Le taux de location ne comprend pas les services publics, les services de bâtiment ou les dépenses immobilières.
- Partiellement construit comme Bureau standard
- Disposition du plan d’étage ouverte en général
- Convient pour 22 à 69 personnes
- 7 bureaux privés
- 4 salles de conférence
- Air central et chauffage
- Éclairage accentué
- Accès au transport en commun
- Stationnement
- Lumière naturelle
6299 Airport Rd - 7e étage - ste 703
| Taille | 3 742 pi² |
| Terme | 3-5 ans |
| Taux de location | 15,50 $ CAD/pi²/an |
| Utilisation de l’espace | Bureau |
| Aménagement | espace cloisonné |
| Disponible | 30 jours |
Espace brut disponible.
- Le taux de location ne comprend pas les services publics, les services de bâtiment ou les dépenses immobilières.
- Disposition du plan d’étage ouverte en général
- Climatisation centrale
- Lumière naturelle
- Éclairage accentué
- Accès au transport en commun
- Stationnement
- Lumière naturelle
6299 Airport Rd - 7e étage - ste 706
| Taille | 1 116 pi² |
| Terme | 3-5 ans |
| Taux de location | 15,50 $ CAD/pi²/an |
| Utilisation de l’espace | Bureau |
| Aménagement | construction partielle |
| Disponible | 30 jours |
Aménagé avec des bureaux privés, des salles de réunion et un espace ouvert.
- Le taux de location ne comprend pas les services publics, les services de bâtiment ou les dépenses immobilières.
- Partiellement construit comme Bureau standard
- Disposition du plan d’étage ouverte en général
- Convient pour 3 à 9 personnes
- Bureaux partitionnés
- Air central et chauffage
- Accès au transport en commun
- Stationnement
- Lumière naturelle
6299 Airport Rd - 7e étage - ste 707
| Taille | 1 507 pi² |
| Terme | 3-5 ans |
| Taux de location | 15,50 $ CAD/pi²/an |
| Utilisation de l’espace | Bureau |
| Aménagement | construction partielle |
| Disponible | 30 jours |
Aménagé avec une salle de réunion/bureau privé et un espace ouvert.
- Le taux de location ne comprend pas les services publics, les services de bâtiment ou les dépenses immobilières.
- Partiellement construit comme Bureau standard
- Disposition du plan d’étage ouverte en général
- Convient pour 4 à 13 personnes
- 1 bureau privé
- Air central et chauffage
- Accès aux ascenseurs
- Lumière naturelle
- Stationnement
- Accès au transport en commun
6303 Airport Rd - 1er étage - ste 101
| Taille | 6 653 pi² |
| Terme | Négociable |
| Taux de location | 15,50 $ CAD/pi²/an |
| Utilisation de l’espace | Bureau |
| Aménagement | construction complète |
| Disponible | 30 jours |
- Le taux de location ne comprend pas les services publics, les services de bâtiment ou les dépenses immobilières.
- Entièrement construit comme Bureau standard
- Convient pour 17 à 54 personnes
6303 Airport Rd - 1er étage - ste 102
| Taille | 1 574 pi² |
| Terme | 3-5 ans |
| Taux de location | 15,50 $ CAD/pi²/an |
| Utilisation de l’espace | Bureau |
| Aménagement | construction complète |
| Disponible | Maintenant |
Aménagé avec un mélange de bureaux privés, salles de réunion et espace ouvert.
- Le taux de location ne comprend pas les services publics, les services de bâtiment ou les dépenses immobilières.
- Entièrement construit comme Bureau standard
- Convient pour 4 à 13 personnes
- Air central et chauffage
- Lumière naturelle
- Accès au transport en commun
- Lumière naturelle
6303 Airport Rd - 1er étage - ste 103
| Taille | 2 465 pi² |
| Terme | 3-5 ans |
| Taux de location | 15,50 $ CAD/pi²/an |
| Utilisation de l’espace | Bureau |
| Aménagement | construction complète |
| Disponible | Maintenant |
Aménagé avec un mélange de bureaux privés, salles de réunion et espace ouvert.
- Le taux de location ne comprend pas les services publics, les services de bâtiment ou les dépenses immobilières.
- Entièrement construit comme Bureau standard
- Disposition du plan d’étage ouverte en général
- Convient pour 7 à 20 personnes
- Air central et chauffage
- Lumière naturelle
- Stationnement
- Accès au transport en commun
- Lumière naturelle
6303 Airport Rd - 3e étage - ste 300
| Taille | 7 026 pi² |
| Terme | 3-5 ans |
| Taux de location | 15,50 $ CAD/pi²/an |
| Utilisation de l’espace | Bureau |
| Aménagement | construction complète |
| Disponible | Maintenant |
Aménagé avec un mélange de bureaux privés, salles de réunion, cuisine et espace ouvert.
- Le taux de location ne comprend pas les services publics, les services de bâtiment ou les dépenses immobilières.
- Entièrement construit comme Bureau standard
- Disposition du plan d’étage ouverte en général
- Convient pour 18 à 57 personnes
- Air central et chauffage
- Lumière naturelle
- Stationnement
- Accès au transport en commun
- Lumière naturelle
6303 Airport Rd - 3e étage - ste 305
| Taille | 6 358 pi² |
| Terme | 3-5 ans |
| Taux de location | 15,50 $ CAD/pi²/an |
| Utilisation de l’espace | Bureau |
| Aménagement | construction complète |
| Disponible | Maintenant |
Espace brut disponible à louer.
- Le taux de location ne comprend pas les services publics, les services de bâtiment ou les dépenses immobilières.
- Disposition du plan d’étage ouverte en général
- Convient pour 16 à 51 personnes
- Air central et chauffage
- Lumière naturelle
- Stationnement
- Accès au transport en commun
- Lumière naturelle
6303 Airport Rd - 4e étage - ste 400
| Taille | 8 142 pi² |
| Terme | 3-5 ans |
| Taux de location | 15,50 $ CAD/pi²/an |
| Utilisation de l’espace | Bureau |
| Aménagement | construction complète |
| Disponible | Maintenant |
Espace brut disponible à louer.
- Le taux de location ne comprend pas les services publics, les services de bâtiment ou les dépenses immobilières.
- Disposition du plan d’étage ouverte en général
- Convient pour 21 à 66 personnes
- Air central et chauffage
- Lumière naturelle
- Accès au transport en commun
- Stationnement
- Lumière naturelle
6303 Airport Rd - 4e étage - ste 401
| Taille | 3 694 pi² |
| Terme | Négociable |
| Taux de location | 15,50 $ CAD/pi²/an |
| Utilisation de l’espace | Bureau |
| Aménagement | construction complète |
| Disponible | 30 jours |
- Le taux de location ne comprend pas les services publics, les services de bâtiment ou les dépenses immobilières.
- Entièrement construit comme Bureau standard
- Convient pour 10 à 30 personnes
6303 Airport Rd - 4e étage - ste 402
| Taille | 1 295 pi² |
| Terme | 3-5 ans |
| Taux de location | 15,50 $ CAD/pi²/an |
| Utilisation de l’espace | Bureau |
| Aménagement | construction complète |
| Disponible | Maintenant |
Espace brut disponible à louer.
- Le taux de location ne comprend pas les services publics, les services de bâtiment ou les dépenses immobilières.
- Disposition du plan d’étage ouverte en général
- Convient pour 4 à 11 personnes
- Air central et chauffage
- Lumière naturelle
- Accès au transport en commun
- Stationnement
- Lumière naturelle
6303 Airport Rd - 4e étage - ste 403
| Taille | 3 149 pi² |
| Terme | 3-5 ans |
| Taux de location | 15,50 $ CAD/pi²/an |
| Utilisation de l’espace | Bureau |
| Aménagement | construction complète |
| Disponible | Maintenant |
Aménagé avec des bureaux privés, des salles de réunion, une kitchenette et un espace ouvert.
- Le taux de location ne comprend pas les services publics, les services de bâtiment ou les dépenses immobilières.
- Entièrement construit comme Bureau standard
- Disposition du plan d’étage ouverte en général
- Convient pour 8 à 26 personnes
- 9 bureaux privés
- 3 salles de conférence
- Air central et chauffage
- Lumière naturelle
- Accès au transport en commun
- Stationnement
- Lumière naturelle
6303 Airport Rd - 5e étage - ste 500
| Taille | 16 281 pi² |
| Terme | 3-5 ans |
| Taux de location | 15,50 $ CAD/pi²/an |
| Utilisation de l’espace | Bureau |
| Aménagement | construction complète |
| Disponible | Maintenant |
Aménagé avec des bureaux privés, des salles de réunion, une kitchenette et un espace ouvert.
- Le taux de location ne comprend pas les services publics, les services de bâtiment ou les dépenses immobilières.
- Entièrement construit comme Bureau standard
- Disposition du plan d’étage ouverte en général
- Convient pour 41 à 131 personnes
- 12 bureaux privés
- 4 salles de conférence
- Air central et chauffage
- Lumière naturelle
- Accès au transport en commun
- Stationnement
- Lumière naturelle
Aperçu du parc
Nœud d'affaires de premier plan de l'aéroport avec un accès facile à partir des autoroutes de la série 400 et du transport en commun. Navette gratuite pour les locataires depuis et vers la gare Viscount. Salle de sport gratuite sur place pour les locataires. Plusieurs options de restauration sur place et à distance de marche de Tim Horton's. Service de lavage de voitures sur place moyennant des frais. Salle de conférence disponible. Panneaux de podium sur le devant de la rue disponibles. Sécurité sur place 24 heures sur 24, 7 jours sur 7. Équipe de gestion immobilière sur place.
Présenté par
YYZ Corporate Centre | Mississauga, ON L4V 1R8
Hmm, il semble y avoir eu une erreur lors de l’envoi de votre message. Veuillez réessayer.
Merci! Votre message a été envoyé.
































