Se Connecter/S’inscrire
Votre courriel a été envoyé.
River Meadows MHP 630 Irish American Dam Rd 35 Unité Parc mobile 1 723 725 $ CAD (49 249 $ CAD/Unité) 8,59% Taux de capitalisation Lovelock, NV 89419



Certaines informations ont été traduites automatiquement.
FAITS SAILLANTS DE L'INVESTISSEMENT
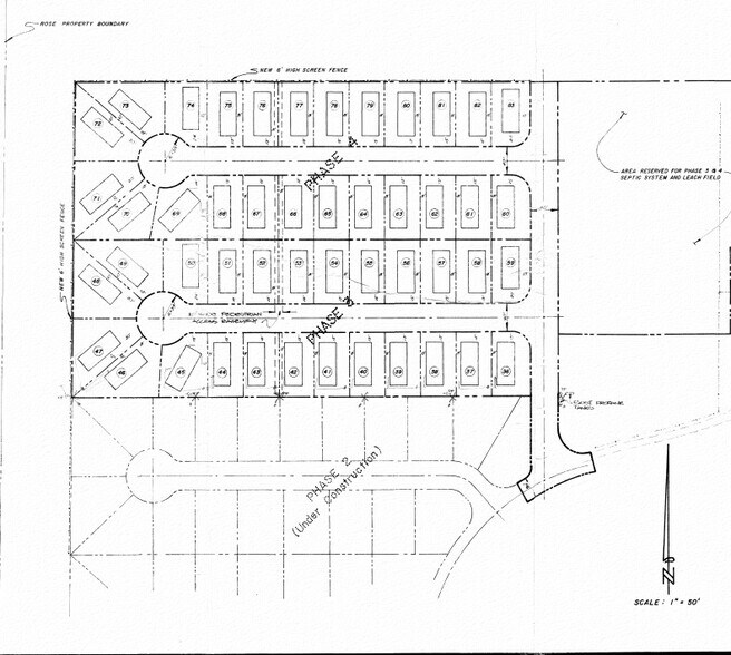
- Future investment upside potential
RÉSUMÉ DE L'ANNONCE
Excellent investment opportunity with potential upside in revenue, 13 of the 35 units are park owned with 3 of those being vacant and renovated currently. Extra acreage can be further developed to increase income. Water rights have been purchased and are available to support the additional lots. Plans shown are based on previous zoning, buyer to verify all information.
BILAN FINANCIER (RÉEL - 2024) Cliquez ici pour accéder à |
ANNUEL (CAD) | ANNUEL PAR pi² (CAD) |
|---|---|---|
| Revenu de location brut |
$99,999
|
$9.99
|
| Autres revenus |
$99,999
|
$9.99
|
| Perte due à l’inoccupation |
$99,999
|
$9.99
|
| Revenu brut effectif |
$99,999
|
$9.99
|
| Taxes |
$99,999
|
$9.99
|
| Dépenses d’exploitation |
$99,999
|
$9.99
|
| Total des dépenses |
$99,999
|
$9.99
|
| Revenu net d’exploitation |
$99,999
|
$9.99
|
BILAN FINANCIER (RÉEL - 2024) Cliquez ici pour accéder à
| Revenu de location brut (CAD) | |
|---|---|
| Annuel | $99,999 |
| Annuel par pi² | $9.99 |
| Autres revenus (CAD) | |
|---|---|
| Annuel | $99,999 |
| Annuel par pi² | $9.99 |
| Perte due à l’inoccupation (CAD) | |
|---|---|
| Annuel | $99,999 |
| Annuel par pi² | $9.99 |
| Revenu brut effectif (CAD) | |
|---|---|
| Annuel | $99,999 |
| Annuel par pi² | $9.99 |
| Taxes (CAD) | |
|---|---|
| Annuel | $99,999 |
| Annuel par pi² | $9.99 |
| Dépenses d’exploitation (CAD) | |
|---|---|
| Annuel | $99,999 |
| Annuel par pi² | $9.99 |
| Total des dépenses (CAD) | |
|---|---|
| Annuel | $99,999 |
| Annuel par pi² | $9.99 |
| Revenu net d’exploitation (CAD) | |
|---|---|
| Annuel | $99,999 |
| Annuel par pi² | $9.99 |
FAITS SUR LA PROPRIÉTÉ
| Prix | 1 723 725 $ CAD | Classe d’immeuble | C |
| Prix par unité | 49 249 $ CAD | Taille du lot | 19,52 AC |
| Type de vente | Investissement | Taille du bâtiment | 1 500 pi² |
| Taux de capitalisation | 8,59% | Occupation moyenne | 92% |
| Nombre d’unités | 35 | Nombre d’étages | 1 |
| Type de propriété | Immeuble residentiel | Année de construction | 1951 |
| Sous-type de propriété | Parc de mobil-homes | ||
| Zonage | LDS | ||
| Prix | 1 723 725 $ CAD |
| Prix par unité | 49 249 $ CAD |
| Type de vente | Investissement |
| Taux de capitalisation | 8,59% |
| Nombre d’unités | 35 |
| Type de propriété | Immeuble residentiel |
| Sous-type de propriété | Parc de mobil-homes |
| Classe d’immeuble | C |
| Taille du lot | 19,52 AC |
| Taille du bâtiment | 1 500 pi² |
| Occupation moyenne | 92% |
| Nombre d’étages | 1 |
| Année de construction | 1951 |
| Zonage | LDS |
COMMODITÉS
COMMODITÉS DU SITE
- Accès 24 heures
- Gestionnaire d'immeuble sur place
- Bord de l’eau
UNITÉ RENSEIGNEMENTS SUR LE MÉLANGE
| DESCRIPTION | NOMBRE D’UNITÉS | LOYER MOYEN/MOIS | pi² |
|---|---|---|---|
| Studios | 22 | 503,33 $ CAD | - |
| 2+2 | 10 | 1 172 $ CAD | - |
1 1
Impôts fonciers
| Numéro de lot | 007-331-03 | Évaluation totale | 91 581 $ CAD (2025) |
| Évaluation du terrain | 32 947 $ CAD (2025) | Impôts annuels | (1 $) CAD (0,00 $ CAD/pi²) |
| Évaluation des bâtiments | 58 634 $ CAD (2025) | Année d’imposition | 2024 |
Impôts fonciers
Numéro de lot
007-331-03
Évaluation du terrain
32 947 $ CAD (2025)
Évaluation des bâtiments
58 634 $ CAD (2025)
Évaluation totale
91 581 $ CAD (2025)
Impôts annuels
(1 $) CAD (0,00 $ CAD/pi²)
Année d’imposition
2024
1 de 17
VIDÉOS
VISITE EXTÉRIEURE 3D MATTERPORT
VISITE 3D MATTERPORT
PHOTOS
VUE DEPUIS LA RUE
RUE
CARTE
1 de 1
Présenté par
River Meadows MHP | 630 Irish American Dam Rd
Vous êtes déjà membre? Connectez-vous
Hmm, il semble y avoir eu une erreur lors de l’envoi de votre message. Veuillez réessayer.
Merci! Votre message a été envoyé.
