Se Connecter/S’inscrire
Votre courriel a été envoyé.
644 E Union Sq 5 100 pi² 100% Loué Commerce de détail Immeuble Sandy, UT 84070 1 321 925 $ CAD (259,20 $ CAD/pi²)



Certaines informations ont été traduites automatiquement.
RÉSUMÉ DE L'ANNONCE
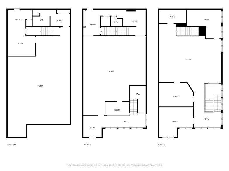
±5,000 SF office/retail building ideal for an owner-user in the Union Square area of Sandy, Utah. Functional layout includes three private offices, front desk and reception area, open bullpen, two restrooms, and multiple kitchenettes. Excellent visibility and access in a strong commercial corridor near retail, dining, and major transportation routes. Turnkey space well suited for professional, medical, or retail users seeking long-term occupancy in a premier location.
FAITS SUR LA PROPRIÉTÉ
Type de vente
Investissement ou propriétaire utilisateur
Type de propriété
Commerce de détail
Taille du bâtiment
5 100 pi²
Classe d’immeuble
C
Année de construction
1977
Prix
1 321 925 $ CAD
Prix par pi²
259,20 $ CAD
Pourcentage loué
100%
Location
Multiples
Hauteur du bâtiment
2 étages
Zonage
cc
Stationnement
30 places (5,88 places par 1 000 pi² loué)
Façade
266’ sur 700 E St
COMMODITÉS
- Voie de virage obligatoire
- Enseigne sur pylône
- Intersection avec signalisation
PRINCIPAUX DÉTAILLANTS À PROXIMITÉ
Impôts fonciers
| Numéro de lot | 28-07-226-054-0000 | Évaluation des bâtiments | 1 137 990 $ CAD |
| Évaluation du terrain | 61 003 $ CAD | Évaluation totale | 1 198 993 $ CAD |
Impôts fonciers
Numéro de lot
28-07-226-054-0000
Évaluation du terrain
61 003 $ CAD
Évaluation des bâtiments
1 137 990 $ CAD
Évaluation totale
1 198 993 $ CAD
1 de 12
VIDÉOS
VISITE EXTÉRIEURE 3D MATTERPORT
VISITE 3D MATTERPORT
PHOTOS
VUE DEPUIS LA RUE
RUE
CARTE
Présenté par
644 E Union Sq
Vous êtes déjà membre? Connectez-vous
Hmm, il semble y avoir eu une erreur lors de l’envoi de votre message. Veuillez réessayer.
Merci! Votre message a été envoyé.
