Votre courriel a été envoyé.
649 E Huntsville Rd 1 050 pi² d'espace disponible • Bureau • Fayetteville, AR 72701



Certaines informations ont été traduites automatiquement.
Faits saillants
- Lots of natural light
- High traffic corridor
- High visibility
Tous les espaces disponibles(1)
Afficher les taux de location en
- Espace
- Taille
- Terme
- Taux de location
- Utilisation de l’espace
- Aménagement
- Disponible
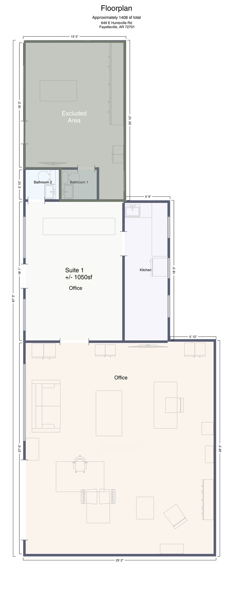
This space is filled with natural light and character. The building features garage doors that create an open, flexible feel ideal for creative, showroom, studio, or office users. Inside, the space is complemented by a small kitchen and sink, making it practical for day-to-day operations while maintaining a bright, inviting atmosphere. A unique opportunity for users seeking visibility, adaptability, and great light in a compact footprint. Property is Agent-Owned.
- Le taux inscrit peut ne pas comprendre certains services publics, les services de bâtiment et les dépenses immobilières.
- Espace en coin
- Plafond exposé
- Plan ouvert
- High Traffic Corridor
- Disposition du plan d’étage ouverte
- Hauts plafonds
- Lumière naturelle
- Great Access
- Flexible Small Office
| Espace | Taille | Terme | Taux de location | Utilisation de l’espace | Aménagement | Disponible |
| 1er étage, ste 1 | 1 050 pi² | Négociable | 33,36 $ CAD/pi²/an 2,78 $ CAD/pi²/mois 35 023 $ CAD/an 2 919 $ CAD/mois | Bureau | - | Maintenant |
1er étage, ste 1
| Taille |
| 1 050 pi² |
| Terme |
| Négociable |
| Taux de location |
| 33,36 $ CAD/pi²/an 2,78 $ CAD/pi²/mois 35 023 $ CAD/an 2 919 $ CAD/mois |
| Utilisation de l’espace |
| Bureau |
| Aménagement |
| - |
| Disponible |
| Maintenant |
1er étage, ste 1
| Taille | 1 050 pi² |
| Terme | Négociable |
| Taux de location | 33,36 $ CAD/pi²/an |
| Utilisation de l’espace | Bureau |
| Aménagement | - |
| Disponible | Maintenant |
This space is filled with natural light and character. The building features garage doors that create an open, flexible feel ideal for creative, showroom, studio, or office users. Inside, the space is complemented by a small kitchen and sink, making it practical for day-to-day operations while maintaining a bright, inviting atmosphere. A unique opportunity for users seeking visibility, adaptability, and great light in a compact footprint. Property is Agent-Owned.
- Le taux inscrit peut ne pas comprendre certains services publics, les services de bâtiment et les dépenses immobilières.
- Disposition du plan d’étage ouverte
- Espace en coin
- Hauts plafonds
- Plafond exposé
- Lumière naturelle
- Plan ouvert
- Great Access
- High Traffic Corridor
- Flexible Small Office
Aperçu de la propriété
Easy access to Downtown Fayetteville, The University of Arkansas, College Avenue, and Crossover. High traffic corridor, with approximately 15,000 vehicles per day, bringing strong visibility to your business. Flexible small office for creative professionals, or businesses who value location, culture, and connection. Property is agent-owned.
Faits sur la propriété
Présenté par
649 E Huntsville Rd
Hmm, il semble y avoir eu une erreur lors de l’envoi de votre message. Veuillez réessayer.
Merci! Votre message a été envoyé.



