Se Connecter/S’inscrire
Votre courriel a été envoyé.
Certaines informations ont été traduites automatiquement.
Faits saillants de l'investissement
- Prime Office Space in the Heart of Orange, CT - Ideal for Professionals!
Résumé de l'annonce
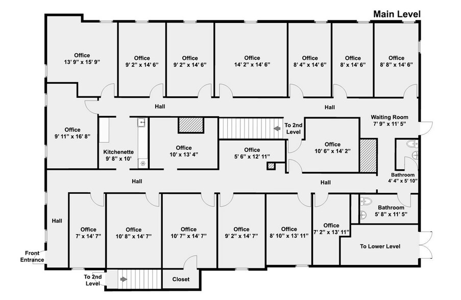
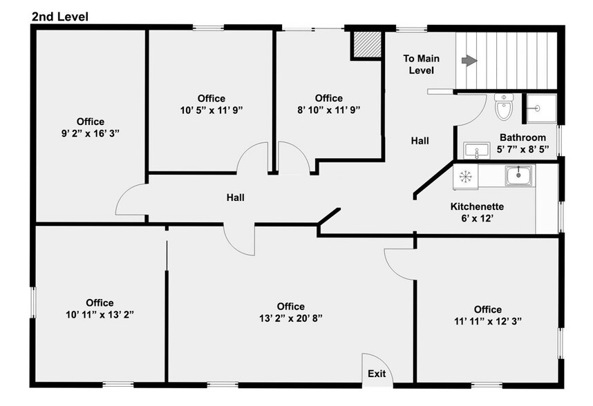
**657 Orange Center Road**, a 5,260 square foot, two-story office building, has undergone a comprehensive renovation and is situated in the heart of Orange, Connecticut. This turnkey property comprises 23 private offices, 17 on the main level and 6 upstairs, making it an ideal choice for individuals seeking to generate revenue through tenant expenses. The building is designed to be divided into three distinct spaces: two spaces on the main level each with its own bathroom and conference room with a shared kitchenette, and one on the upper level with a full bathroom and kitchenette. The building can be separated into two approximately 2,000 square foot spaces on the main level and one approximately 1,300 square foot space on the second level. The building's HVAC systems have been upgraded and are equipped with three furnaces, one natural gas on the second floor. The first floor is serviced by two furnaces, one is newer and fueled by propane, the second is fueled by oil. The building features three electric panels, two for the first floor and one for the second floor, providing flexibility in optimizing space utilization. Additionally, the parking lot has been recently paved and resealedThe building offers 18 on-site parking spaces, ADA parking, and a ramp into the building, with outdoor lighting and an electric vehicle charging station, strategically positioning it for professional uses such as medical, law, accounting, physical therapy, med spa, or salon.The building also offers a full basement for additional storage and easy access to plumbing and electrical to accommodate any use requirements.
The building’s exceptional accessibility to Merritt Parkway, Route 1, and I-95 further enhances its suitability as a prime location for your business. The space offers flexibility for businesses to expand, why pay rent when you can own for less?
The building’s exceptional accessibility to Merritt Parkway, Route 1, and I-95 further enhances its suitability as a prime location for your business. The space offers flexibility for businesses to expand, why pay rent when you can own for less?
Bilan financier (Réel - 2024) Cliquez ici pour accéder à |
Annuel (CAD) | Annuel par pi² (CAD) |
|---|---|---|
| Taxes |
$99,999
|
$9.99
|
| Dépenses d’exploitation |
$99,999
|
$9.99
|
| Total des dépenses |
$99,999
|
$9.99
|
Bilan financier (Réel - 2024) Cliquez ici pour accéder à
| Taxes (CAD) | |
|---|---|
| Annuel | $99,999 |
| Annuel par pi² | $9.99 |
| Dépenses d’exploitation (CAD) | |
|---|---|
| Annuel | $99,999 |
| Annuel par pi² | $9.99 |
| Total des dépenses (CAD) | |
|---|---|
| Annuel | $99,999 |
| Annuel par pi² | $9.99 |
Faits sur la propriété
Type de vente
Investissement ou propriétaire utilisateur
Type de propriété
Taille du bâtiment
5 200 pi²
Classe d’immeuble
C
Année de construction
1950
Prix
942 902 $ CAD
Prix par pi²
181,33 $ CAD
Location
Multiples
Hauteur du bâtiment
2 étages
Superficie de plancher typique
2 550 pi²
Coefficient d’occupation des sols de l’immeuble
0,32
Taille du lot
0,37 AC
Zonage
C-1 - Magasins et autres bâtiments et structures où des biens sont vendus ou des services sont principalement offerts au détail.
Stationnement
18 places (3,46 places par 1 000 pi² loué)
Commodités
- Atrium
- Accessible aux fauteuils roulants
- Espace d'entreposage
- Climatisation
1 1
Impôts fonciers
| Numéro de lot | ORAN-000051-000004-000005 | Évaluation totale | 703 872 $ CAD (2025) |
| Évaluation du terrain | 221 899 $ CAD (2025) | Impôts annuels | (1 $) CAD (0,00 $ CAD/pi²) |
| Évaluation des bâtiments | 481 973 $ CAD (2025) | Année d’imposition | 2024 |
Impôts fonciers
Numéro de lot
ORAN-000051-000004-000005
Évaluation du terrain
221 899 $ CAD (2025)
Évaluation des bâtiments
481 973 $ CAD (2025)
Évaluation totale
703 872 $ CAD (2025)
Impôts annuels
(1 $) CAD (0,00 $ CAD/pi²)
Année d’imposition
2024
1 de 31
Vidéos
Visite extérieure 3D Matterport
Visite 3D Matterport
Photos
Vue depuis la rue
Rue
Carte
1 de 1
Présenté par
657 Orange Center Rd
Vous êtes déjà membre? Connectez-vous
Hmm, il semble y avoir eu une erreur lors de l’envoi de votre message. Veuillez réessayer.
Merci! Votre message a été envoyé.
Votre message a été envoyé !
Activez votre compte LoopNet dès maintenant pour suivre les propriétés, recevoir des alertes en temps réel, gagner du temps sur vos demandes futures et bien plus encore.



