Votre courriel a été envoyé.
Golden Pacific Plaza 659 E 15th St 1 000–2 500 pi² d'espace disponible • Commerce de détail • Upland, CA 91786



Certaines informations ont été traduites automatiquement.
DISPONIBILITÉ DES ESPACES (2)
Afficher les taux de location en
- ESPACE
- TAILLE
- TERME
- TAUX DE LOCATION
- TYPE DE LOYER
| Espace | Taille | Terme | Taux de location | Type de loyer | ||
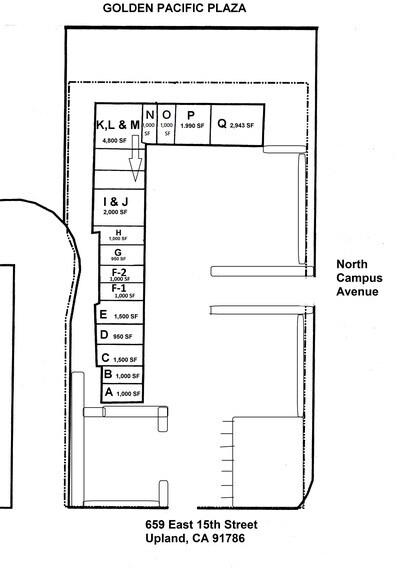
| 1er étage, ste E | 1 500 pi² | Négociable | 29,07 $ CAD/pi²/an 2,42 $ CAD/pi²/mois 43 612 $ CAD/an 3 634 $ CAD/mois | Loyer hypernet | ||
| 1er étage, ste N | 1 000 pi² | 1-6 ans | 29,07 $ CAD/pi²/an 2,42 $ CAD/pi²/mois 29 075 $ CAD/an 2 423 $ CAD/mois | Loyer hypernet |
659 E 15th St - 1er étage - ste E
- Le taux de location ne comprend pas les services publics, les services de bâtiment ou les dépenses immobilières.
- Espace en excellent état
659 E 15th St - 1er étage - ste N
- Le taux de location ne comprend pas les services publics, les services de bâtiment ou les dépenses immobilières.
- Entièrement construit comme Espace de commerce de détail standard
- Situé en ligne avec d’autres commerces de détail
- Espace en excellent état
Types de loyers
Le type et le montant du loyer que le locataire (preneur) est tenu de payer au propriétaire (bailleur) sur la durée du bail sont négociés avant la signature du bail par les deux parties. Le type de loyer varie selon les services fournis. Par exemple, le prix d’un loyer hypernet est habituellement inférieur à celui d’un bail à service complet puisque le locataire est tenu d’assumer des dépenses additionnelles par rapport au loyer de base. Contactez le courtier inscripteur pour tout connaître sur les frais connexes et additionnels associés à chaque type de loyer.
1. Service complet: Un taux de location qui comprend des services standards liés à l’immeuble fournis par le propriétaire dans le cadre d’une location annuelle de base.
2. Loyer supernet: Le locataire paie seulement deux des frais de l’immeuble. Le propriétaire et le locataire déterminent ces frais spécifiques avant la signature du bail.
3. Loyer hypernet: Un bail en vertu duquel le locataire est responsable de tous les frais liés à sa part proportionnelle d’occupation de l’immeuble.
4. Brut modifié: Le loyer brut modifié désigne un type général de taux de location dans lequel le locataire est habituellement responsable de sa part proportionnelle d’un ou de plusieurs frais. C’est le propriétaire qui paie les frais restants. Considérez les structures tarifaires courantes suivantes applicables aux loyers bruts modifiés: 4. Plus les services: Un type de bail brut modifié suivant lequel le locataire est responsable de sa part proportionnelle des coûts des services publics, en plus du loyer. 4. Plus le nettoyage: Un type de bail brut modifié suivant lequel le locataire est responsable de sa part proportionnelle des coûts de nettoyage, en plus du loyer. 4. Plus l'électricité: Un type de bail brut modifié suivant lequel le locataire est responsable de sa part proportionnelle des coûts d’électricité, en plus du loyer. 4. Plus l’électricité et le nettoyage: Un type de bail brut modifié dans lequel le locataire est responsable de sa part proportionnelle des coûts d’électricité et de nettoyage, en plus du loyer. 4. Plus les services publics et le nettoyage: Un type de bail brut modifié dans lequel le locataire est responsable de sa part proportionnelle des coûts des services publics et de nettoyage, en plus du loyer. 4. Bail industriel brut: Un type de bail brut modifié dans lequel le locataire paie un ou plusieurs des frais, en plus du loyer. Le propriétaire et le locataire déterminent ces frais spécifiques avant la signature du bail.
5. L’électricité est à la charge du locataire: Le propriétaire paie pour tous les services et le locataire est responsable de sa propre utilisation de l’éclairage et des prises électriques dans l’espace qu’il occupe.
6. Négociable ou sur demande: Cette option est utilisée lorsque le contact de location ne précise pas le type de loyer ou de service.
7. À déterminer: À déterminer ; utilisé pour les immeubles dont le type de services ou de loyer n’est pas connu, souvent quand l’immeuble n’est pas encore construit.
FAITS SUR LA PROPRIÉTÉ
À PROPOS DE LA PROPRIÉTÉ
Centre de quartier sur l'avenue Campus achalandée. Les locataires comprennent un salon de coiffure très achalandé avec 4 800/SF, des toiletteurs et des garderies, un hôpital vétérinaire, une boulangerie, un dentiste, un chiropraticien, un spa de jour et plus encore !
PRINCIPAUX DÉTAILLANTS À PROXIMITÉ
Présenté par
Ronco Investments, Inc.
Golden Pacific Plaza | 659 E 15th St
Hmm, il semble y avoir eu une erreur lors de l’envoi de votre message. Veuillez réessayer.
Merci! Votre message a été envoyé.




