Votre courriel a été envoyé.
Stuart Place Crossing 6710 W Expressway 83 2 321 pi² d'espace disponible • Bureau/Médical • Harlingen, TX 78552



Certaines informations ont été traduites automatiquement.
Faits saillants
- Beaucoup de places de stationnement disponibles.
- Nombre élevé de trafic et accès facile.
- Excellente visibilité et accès à partir de l'autoroute.
- Forte démographie.
Disponibilité de l’espace (1)
Afficher les taux de location en
- Espace
- Taille
- Terme
- Taux de location
- Type de loyer
| Espace | Taille | Terme | Taux de location | Type de loyer | ||
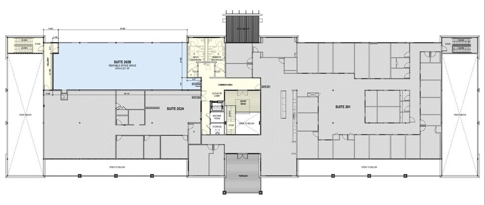
| 2e étage, ste A-202 | 2 321 pi² | 5-10 ans | Sur demande Sur demande Sur demande Sur demande | À déterminer |
6710 W Expressway 83 - 2e étage - ste A-202
This property is located next to the Texas Regional Bank HQ landmark building, on the north side of I-2 at Stuart Place Road in west Harlingen. Tenant mix includes Cheddar's, Exotic Berry, Johnny Rockets, Kohnami Sushi & Tepanyaki, Orange Theory Fitness, Russo's New York Pizzeria, Tropical Smoothie Cafe, Wing Barn, among others. Excellent visibility and great access to and from Expressway 83. Shopping Center faces I-2 providing maximum exposure to vehicles traveling east and west. Retail portion of the center is 100% leased and there are only 2,321 sf of office space on the 2nd floor available for lease.
- Disposition du plan d’étage ouverte
- Espace en excellent état
- Air central et chauffage
- Accès aux ascenseurs
- Salle de bains privée
- Système de sécurité
- Hauts plafonds
- Éclairage d’urgence
- Excellente visibilité et accès à partir de l'autoroute.
- Situé à l'intersection principale du commerce de détail à Harlingen.
- Beaucoup de places de stationnement disponibles autour du site de la plateforme.
- Nombre élevé de trafic et accès facile.
Types de loyers
Le type et le montant du loyer que le locataire (preneur) est tenu de payer au propriétaire (bailleur) sur la durée du bail sont négociés avant la signature du bail par les deux parties. Le type de loyer varie selon les services fournis. Par exemple, le prix d’un loyer hypernet est habituellement inférieur à celui d’un bail à service complet puisque le locataire est tenu d’assumer des dépenses additionnelles par rapport au loyer de base. Contactez le courtier inscripteur pour tout connaître sur les frais connexes et additionnels associés à chaque type de loyer.
1. Service complet: Un taux de location qui comprend des services standards liés à l’immeuble fournis par le propriétaire dans le cadre d’une location annuelle de base.
2. Loyer supernet: Le locataire paie seulement deux des frais de l’immeuble. Le propriétaire et le locataire déterminent ces frais spécifiques avant la signature du bail.
3. Loyer hypernet: Un bail en vertu duquel le locataire est responsable de tous les frais liés à sa part proportionnelle d’occupation de l’immeuble.
4. Brut modifié: Le loyer brut modifié désigne un type général de taux de location dans lequel le locataire est habituellement responsable de sa part proportionnelle d’un ou de plusieurs frais. C’est le propriétaire qui paie les frais restants. Considérez les structures tarifaires courantes suivantes applicables aux loyers bruts modifiés: 4. Plus les services: Un type de bail brut modifié suivant lequel le locataire est responsable de sa part proportionnelle des coûts des services publics, en plus du loyer. 4. Plus le nettoyage: Un type de bail brut modifié suivant lequel le locataire est responsable de sa part proportionnelle des coûts de nettoyage, en plus du loyer. 4. Plus l'électricité: Un type de bail brut modifié suivant lequel le locataire est responsable de sa part proportionnelle des coûts d’électricité, en plus du loyer. 4. Plus l’électricité et le nettoyage: Un type de bail brut modifié dans lequel le locataire est responsable de sa part proportionnelle des coûts d’électricité et de nettoyage, en plus du loyer. 4. Plus les services publics et le nettoyage: Un type de bail brut modifié dans lequel le locataire est responsable de sa part proportionnelle des coûts des services publics et de nettoyage, en plus du loyer. 4. Bail industriel brut: Un type de bail brut modifié dans lequel le locataire paie un ou plusieurs des frais, en plus du loyer. Le propriétaire et le locataire déterminent ces frais spécifiques avant la signature du bail.
5. L’électricité est à la charge du locataire: Le propriétaire paie pour tous les services et le locataire est responsable de sa propre utilisation de l’éclairage et des prises électriques dans l’espace qu’il occupe.
6. Négociable ou sur demande: Cette option est utilisée lorsque le contact de location ne précise pas le type de loyer ou de service.
7. À déterminer: À déterminer ; utilisé pour les immeubles dont le type de services ou de loyer n’est pas connu, souvent quand l’immeuble n’est pas encore construit.
Sélectionner des locataires à Stuart Place Crossing
- Locataire
- Description
- Emplacements US
- Portée
- Cheddar's Scratch Kitchen
- Détaillant
- -
- -
- Johnny Rockets Burgers & Shakes
- Détaillant
- -
- -
- Kohnami Sushi & Tepanyaki
- Détaillant
- -
- -
- Orangetheory Fitness
- Entraînement physique
- 1 539
- International
- Russo's New York Pizzeria Inc
- Pizza
- 44
- International
- Tropical Smoothie Cafe
- Restauration rapide
- 2 048
- National
| Locataire | Description | Emplacements US | Portée |
| Cheddar's Scratch Kitchen | Détaillant | - | - |
| Johnny Rockets Burgers & Shakes | Détaillant | - | - |
| Kohnami Sushi & Tepanyaki | Détaillant | - | - |
| Orangetheory Fitness | Entraînement physique | 1 539 | International |
| Russo's New York Pizzeria Inc | Pizza | 44 | International |
| Tropical Smoothie Cafe | Restauration rapide | 2 048 | National |
Faits sur la propriété
| Superficie totale disponible | 2 321 pi² | Façade | 173’ le W. Frontage Road |
| Type de centre | Centre de voisinage | Superficie commerciale brute | 23 469 pi² |
| Stationnement | 498 places | Superficie totale du terrain | 16,11 AC |
| Magasins | 11 | Année de construction | 2018 |
| Propriétés du centre | 4 |
| Superficie totale disponible | 2 321 pi² |
| Type de centre | Centre de voisinage |
| Stationnement | 498 places |
| Magasins | 11 |
| Propriétés du centre | 4 |
| Façade | 173’ le W. Frontage Road |
| Superficie commerciale brute | 23 469 pi² |
| Superficie totale du terrain | 16,11 AC |
| Année de construction | 2018 |
À propos de la propriété
Stuart Place Crossing Plaza est idéal pour les bureaux professionnels, les services, les restaurants et autres commerces de détail. Avec une excellente visibilité et un accès par l'Expressway 83 ; Stuart Place est situé à l'une des principales intersections de détail à Harlingen, au Texas. Il est ancré par la Texas Regional Bank, Cheddar's, Wings and Rings, ce qui nous donne près de 40 000 pieds carrés de locataires nationaux et régionaux. La phase II a un total de 8 148 pi2
- Visibilité de l'autoroute
- Système de sécurité
- Service au volant
- Climatisation
Principaux détaillants à proximité
Présenté par
Stuart Place Crossing | 6710 W Expressway 83
Hmm, il semble y avoir eu une erreur lors de l’envoi de votre message. Veuillez réessayer.
Merci! Votre message a été envoyé.



