Se Connecter/S’inscrire
Votre courriel a été envoyé.
68-74 E Huron St 28 Unité Immeuble d’appartements 5 471 991 $ CAD (195 428 $ CAD/Unité) Buffalo, NY 14203



Certaines informations ont été traduites automatiquement.
Faits saillants de l'investissement
- Former “Old Editions” Bookstore – full of history and character Premier corner location at Oak & East Huron Streets
- Commercial space fully refreshed – ready for immediate occupancy
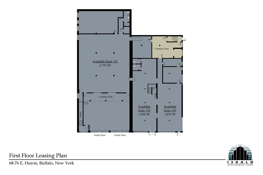
- Well cared for Buildings with 31,600 SF
- Approved for upper floor apartments & 35 space parking lot
Résumé de l'annonce
31,600 square foot multifamily building available for sale and lease.
Faits sur la propriété
| Prix | 5 471 991 $ CAD | Taille du lot | 0,28 AC |
| Prix par unité | 195 428 $ CAD | Taille du bâtiment | 31 600 pi² |
| Type de vente | Investissement | Nombre d’étages | 4 |
| Nombre d’unités | 28 | Année de construction | 1878 |
| Type de propriété | Immeuble residentiel | Ratio de stationnement | 0,32/1 000 pi² |
| Sous-type de propriété | Appartement | Rues transversales | Oak St. |
| Style d’appartement | De hauteur moyenne | Zone de développement économique |
Oui
|
| Classe d’immeuble | C | ||
| Zonage | N-1C - La zone N-1C concerne les centres à usage mixte de haute intensité, situés à des emplacements stratégiques tels que les abords du centre-ville ou à proximité du train léger. | ||
| Prix | 5 471 991 $ CAD |
| Prix par unité | 195 428 $ CAD |
| Type de vente | Investissement |
| Nombre d’unités | 28 |
| Type de propriété | Immeuble residentiel |
| Sous-type de propriété | Appartement |
| Style d’appartement | De hauteur moyenne |
| Classe d’immeuble | C |
| Taille du lot | 0,28 AC |
| Taille du bâtiment | 31 600 pi² |
| Nombre d’étages | 4 |
| Année de construction | 1878 |
| Ratio de stationnement | 0,32/1 000 pi² |
| Rues transversales | Oak St. |
| Zone de développement économique |
Oui |
| Zonage | N-1C - La zone N-1C concerne les centres à usage mixte de haute intensité, situés à des emplacements stratégiques tels que les abords du centre-ville ou à proximité du train léger. |
Unité renseignements sur le mélange
| Description | Nombre d’unités | Loyer moyen/mois | pi² |
|---|---|---|---|
| Studios | 28 | - | - |
1 1
Moyennement praticable à pied
60/100
Très facile d’accès en voiture
80/100
Bons transports en commun
70/100
Plutôt praticable en vélo
40/100
Impôts fonciers
| Numéro de lot | 140200-111-460-0005-013-100 | Évaluation des bâtiments | 1 108 612 $ CAD |
| Évaluation du terrain | 450 029 $ CAD | Évaluation totale | 1 558 641 $ CAD |
Impôts fonciers
Numéro de lot
140200-111-460-0005-013-100
Évaluation du terrain
450 029 $ CAD
Évaluation des bâtiments
1 108 612 $ CAD
Évaluation totale
1 558 641 $ CAD
1 de 7
Vidéos
Visite extérieure 3D Matterport
Visite 3D Matterport
Photos
Vue depuis la rue
Rue
Carte
1 de 1
Présenté par
68-74 E Huron St
Vous êtes déjà membre? Connectez-vous
Hmm, il semble y avoir eu une erreur lors de l’envoi de votre message. Veuillez réessayer.
Merci! Votre message a été envoyé.
