Se Connecter/S’inscrire
Votre courriel a été envoyé.
6800-6842 N Humboldt Ave
Brooklyn Center, MN 55430
Humbolt Square · Commerce de détail Propriété À louer
·
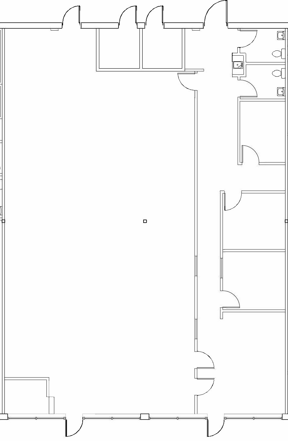
16 689 pi²


Certaines informations ont été traduites automatiquement.
Faits saillants
- Centre de quartier établi
Faits sur la propriété
À propos de la propriété
Le centre commercial Humboldt Square est situé à l'intersection très visible et très fréquentée de l'avenue Humboldt Nord et de la 69e avenue N. Les locataires actuels comprennent : New Horizon Academy, Value Foods, Giant Wash Laundromat, House of Hui Restaurant, ainsi que plusieurs autres détaillants de quartier. Employeurs de la région : FBI, Medtronic, écoles communautaires du Brooklyn Center, Earle Brown Heritage Center et Top Golf.
- Ligne d'autobus
- Enseigne sur pylône
- Affichage
- Intersection avec signalisation
1 de 8
Vidéos
Visite extérieure 3D Matterport
Visite 3D Matterport
Photos
Vue depuis la rue
Rue
Carte
