Votre courriel a été envoyé.
Certaines informations ont été traduites automatiquement.
Faits saillants de la sous-location
- Functional warehouse layout with integrated office area
- Wet pipe fire suppression throughout the facility for added safety
- Sublease term available through August 2028 for operational flexibility
- Efficient loading supported by dock-high positions and drive-in access
- Clear height supporting a variety of storage and equipment needs
Caractéristiques
Tous les espaces disponibles(1)
Afficher les taux de location en
- Espace
- Taille
- Terme
- Taux de location
- Utilisation de l’espace
- Aménagement
- Disponible
The facility includes office space that enables administrative, dispatch, or supervisory teams to operate adjacent to warehouse activities, enhancing communication and operational flow. The wet pipe sprinkler system provides an added layer of safety and capability for tenants with storage or compliance requirements. With the master lease running through August 2028, the sublease structure delivers a mid-term occupancy option that can support companies seeking flexibility without committing to a long direct term.
- Espace de sous-location disponible auprès du locataire actuel
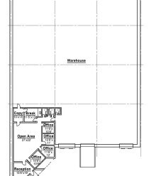
- 1 accès plain-pied
- Comprend 2 417 pi² d’espace de bureau dédié
- 2 quais de chargement
| Espace | Taille | Terme | Taux de location | Utilisation de l’espace | Aménagement | Disponible |
| 1er étage | 13 814 pi² | Août 2028 | Sur demande Sur demande Sur demande Sur demande | Industriel | construction complète | 30 jours |
1er étage
| Taille |
| 13 814 pi² |
| Terme |
| Août 2028 |
| Taux de location |
| Sur demande Sur demande Sur demande Sur demande |
| Utilisation de l’espace |
| Industriel |
| Aménagement |
| construction complète |
| Disponible |
| 30 jours |
1er étage
| Taille | 13 814 pi² |
| Terme | Août 2028 |
| Taux de location | Sur demande |
| Utilisation de l’espace | Industriel |
| Aménagement | construction complète |
| Disponible | 30 jours |
The facility includes office space that enables administrative, dispatch, or supervisory teams to operate adjacent to warehouse activities, enhancing communication and operational flow. The wet pipe sprinkler system provides an added layer of safety and capability for tenants with storage or compliance requirements. With the master lease running through August 2028, the sublease structure delivers a mid-term occupancy option that can support companies seeking flexibility without committing to a long direct term.
- Espace de sous-location disponible auprès du locataire actuel
- Comprend 2 417 pi² d’espace de bureau dédié
- 1 accès plain-pied
- 2 quais de chargement
Aperçu de la propriété
6835 Fulton St. presents a functional, well-configured industrial opportunity positioned within an established Houston industrial corridor. The building’s layout offers users a practical balance of warehouse efficiency and office convenience, allowing operations to centralize distribution, light manufacturing, or service functions under one roof. With a clear height suitable for racking or equipment deployment, along with both dock-high loading and a drive-in ramp, the property supports a wide range of industrial workflows while maintaining easy movement for trucks, vans, and material-handling equipment. Its Houston location places the property within an industrially oriented environment suitable for users who benefit from logistical accessibility across the metro. The surrounding area offers an established ecosystem of service providers, suppliers, and labor, while maintaining convenient connectivity for regional operations. The building’s efficient configuration, balanced loadout, and functional utility make it a versatile solution for occupiers requiring reliable space with strong baseline industrial attributes.
Faits sur l’installation entrepôt
Sélectionner des locataires
- Étage
- Nom du locataire
- Secteur
- 1ᵉʳ
- A1 Parts
- Services
- 1ᵉʳ
- Apex Insulation
- Construction
- 1ᵉʳ
- Houston Supply & Manufacturing Co.
- Détaillant
- 1ᵉʳ
- Prime Automotive Warehouse
- Grossiste
- 1ᵉʳ
- Southern Ice Equipment & Distributor Of Texas Inc
- Grossiste
- 1ᵉʳ
- THT
- Fabrication
Présenté par
North Freeway 2 | 6823-6841 Fulton St
Hmm, il semble y avoir eu une erreur lors de l’envoi de votre message. Veuillez réessayer.
Merci! Votre message a été envoyé.




