Se Connecter/S’inscrire
Votre courriel a été envoyé.
Certaines informations ont été traduites automatiquement.
Faits saillants de l'investissement
- Puissance énorme
- Potentiel pour plusieurs utilisations nécessitant une grande puissance : centre de données, entreposage frigorifique, cuisine commerciale, machinistes, recyclage, etc.
- Entièrement construit
- Zoned CBP-2 (Commercial Business Park District)
Résumé de l'annonce
PUISSANCE ÉNORME — 4 AMPÈRES OOO | 2:1 000 PLACES DE STATIONNEMENT | 16 PI DE DÉGAGEMENT
Propriété de culture idéale : Auparavant une installation opérationnelle de fabrication de produits volatils de cannabis (type 7) et de distribution, l'aménagement de la propriété est idéal pour les cultivateurs. Profitez de la disposition existante et faites une demande de nouvelle licence, OU l'acheteur peut reconfigurer le bâtiment en fonction de ses propres besoins. Économisez du temps et de l'argent sur cette propriété conforme.
Faits saillants :
VENDEUR MOTIVÉ
4 000 AMPS — l'acheteur doit vérifier | Transformateur 8 000 AMP sur site — l'acheteur à vérifier
Dégagement de 16 pi
Cour arrière sécurisée et sécurisée
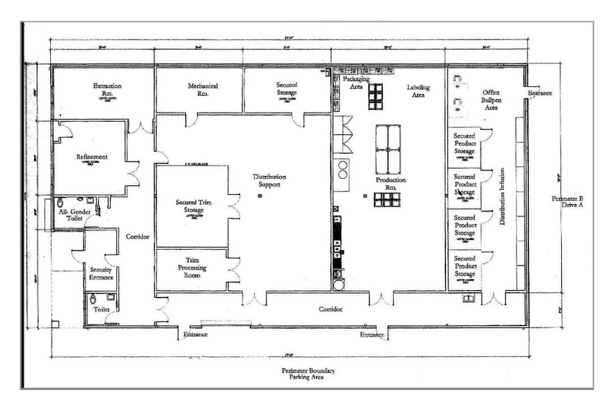
Conversion facile à la culture | Voir les mises en page
Précédemment Mfg et distribution de cannabis de type 7 | Équipement disponible séparément - se renseigner
Propriété de culture idéale : Auparavant une installation opérationnelle de fabrication de produits volatils de cannabis (type 7) et de distribution, l'aménagement de la propriété est idéal pour les cultivateurs. Profitez de la disposition existante et faites une demande de nouvelle licence, OU l'acheteur peut reconfigurer le bâtiment en fonction de ses propres besoins. Économisez du temps et de l'argent sur cette propriété conforme.
Faits saillants :
VENDEUR MOTIVÉ
4 000 AMPS — l'acheteur doit vérifier | Transformateur 8 000 AMP sur site — l'acheteur à vérifier
Dégagement de 16 pi
Cour arrière sécurisée et sécurisée
Conversion facile à la culture | Voir les mises en page
Précédemment Mfg et distribution de cannabis de type 7 | Équipement disponible séparément - se renseigner
Faits sur la propriété En dépôt fiduciaire
Commodités
- Drains de sol
- Chambres de congélation
- Système de sécurité
- Puits de lumière
- Accessible aux fauteuils roulants
- Cour
- Climatisation
Services publics
- Éclairage
- Gaz
- Eau
- Égout
- Chauffage
Assez praticable à pied
40/100
Moyennement facile d’accès en voiture
70/100
Transports en commun limités
30/100
Plutôt praticable en vélo
40/100
Impôts fonciers
| Numéro de lot | 687-312-018 | Évaluation des bâtiments | 3 994 033 $ CAD |
| Évaluation du terrain | 998 508 $ CAD | Évaluation totale | 4 992 541 $ CAD |
Impôts fonciers
Numéro de lot
687-312-018
Évaluation du terrain
998 508 $ CAD
Évaluation des bâtiments
3 994 033 $ CAD
Évaluation totale
4 992 541 $ CAD
1 de 7
Vidéos
Visite extérieure 3D Matterport
Visite 3D Matterport
Photos
Vue depuis la rue
Rue
Carte
Présenté par
68350 Commercial Rd
Vous êtes déjà membre? Connectez-vous
Hmm, il semble y avoir eu une erreur lors de l’envoi de votre message. Veuillez réessayer.
Merci! Votre message a été envoyé.




