Votre courriel a été envoyé.
MANHATTAN PLAZA 6850 Manhattan Blvd 100–10 400 pi² d'espace disponible • Fort Worth, TX 76120



Certaines informations ont été traduites automatiquement.
Faits saillants
- Accès facile à l'autoroute
- Gestionnaire immobilier sur place
- Mises en page flexibles
- Hauts plafonds
- Signalisation disponible
- Application facile
Tous les espaces disponibles(5)
Afficher les taux de location en
- Espace
- Taille
- Terme
- Taux de location
- Utilisation de l’espace
- Aménagement
- Disponible
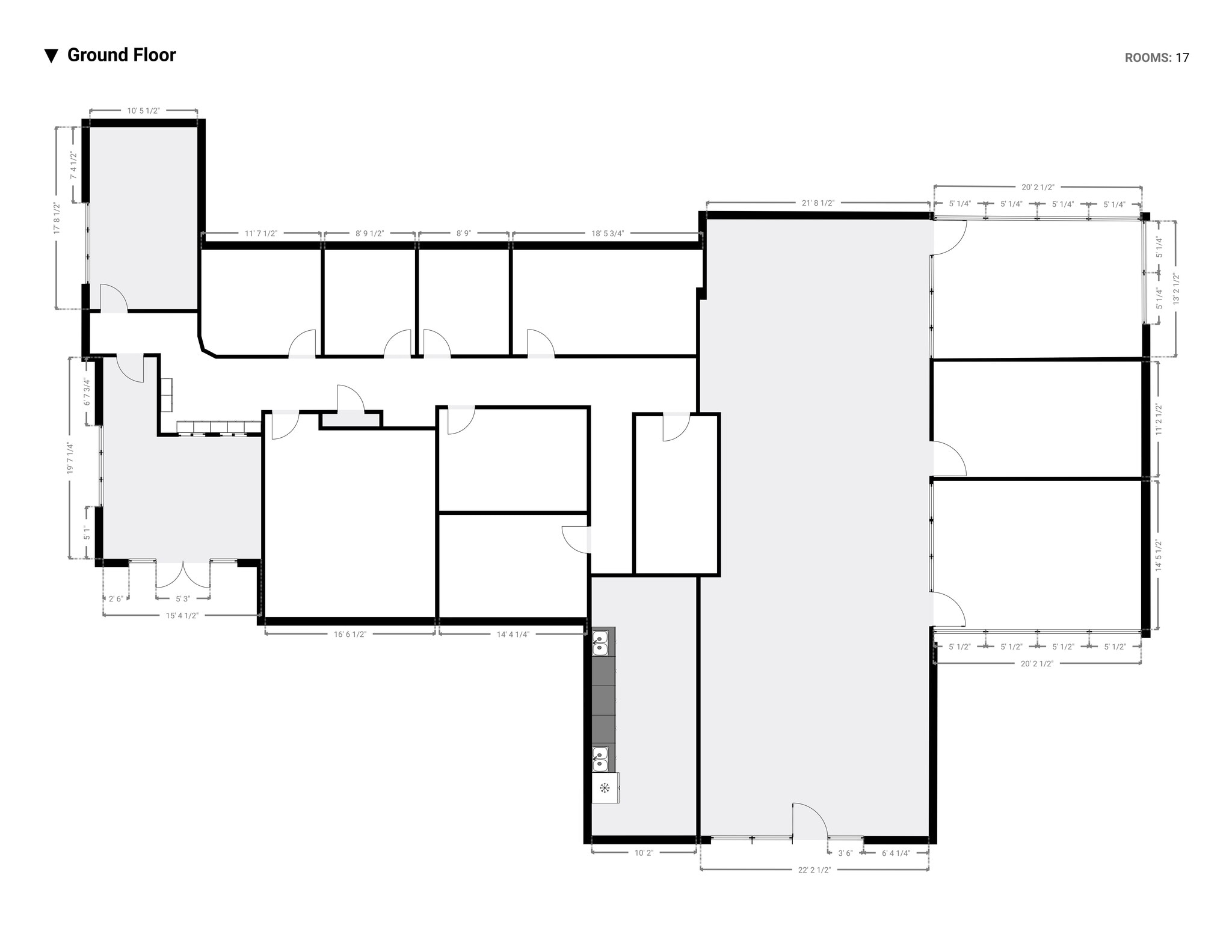
Join the thriving Manhattan Plaza neighborhood and establish your business in a highly accessible location near the intersection of Loop 820 and I-30. Suite 200 offers a spacious, fully built-out enterprise suite totaling 3,050sf designed to accommodate a variety of professional needs. Features include Reception, Waiting Area, Conference Room, Training Room, Multiple Private Offices, Abundant Natural Light, and Large Windows. Call 214-934-6265 to schedule a tour or to learn more about this opportunity! *quoted rate does not include NNN estimates
- Le taux de location ne comprend pas les services publics, les services de bâtiment ou les dépenses immobilières.
- 8 bureaux privés
- Espace en excellent état
- Aire de réception
- Salle d’impression/Photocopie
- Hauts plafonds
- CVCA disponible après les heures de travail
- Entièrement construit comme Bureau standard
- 1 salle de conférence
- Air central et chauffage
- Connectivité Wi-Fi
- Système de sécurité
- Lumière naturelle
- Éclairage accentué
Suite 206 at Manhattan Plaza offers an ideal layout for an enterprise user seeking a balance of private offices and open workspace, with convenient access to Fort Worth, Arlington, and the Mid-Cities. Located just 15 minutes from downtown Fort Worth with direct connectivity to Highway 820 and I-30, the property is well-positioned for regional accessibility across DFW. The suite features a built-in reception area, dedicated conference room, high ceilings, eleven private offices, and a private break room—providing both functionality and a polished, professional setting. Tenants benefit from on-site property management and proactive maintenance, ensuring responsive service and well-maintained common areas. For more information or to schedule a tour, call 214-934-6265.
- Le taux de location ne comprend pas les services publics, les services de bâtiment ou les dépenses immobilières.
- 11 bureaux privés
- 2 postes de travail
- Climatisation centrale
- Salle d’impression/Photocopie
- Hauts plafonds
- Éclairage accentué
- Entièrement construit comme Bureau de services professionnels
- 1 salle de conférence
- Aire de réception
- Connectivité Wi-Fi
- Complètement tapissé
- CVCA disponible après les heures de travail
- Toilettes communes
- Le taux de location ne comprend pas les services publics, les services de bâtiment ou les dépenses immobilières.
- 1 poste de travail
- 7 bureaux privés
- Espace en excellent état
This ideal office space boasts full glass windows directly to the main hall, offering an open feel and professional aesthetic. This suite includes a storage closet and two separate entrances. Brand new flooring is being installed! Perfect for businesses seeking a professional and functional workspace. Come tour today!
- Le taux comprend les services publics, les services de bâtiment et les dépenses immobilières.
- Disposition intensive du bureau
- Air central et chauffage
- Entièrement construit comme Bureau standard
- Espace en excellent état
- CVCA disponible après les heures de travail
Private executive suite! Take advantage of this amazing property at a low cost. You can lease a PRIVATE suite in Manhattan Plaza for your business starting at only $395/month. Call 817-609-1513 to learn more about this opportunity and to come see the space.
- Entièrement construit comme Bureau standard
- Espace en excellent état
- Disposition intensive du bureau
| Espace | Taille | Terme | Taux de location | Utilisation de l’espace | Aménagement | Disponible |
| 1er étage, ste 200 | 3 050 pi² | Négociable | 18,60 $ CAD/pi²/an 1,55 $ CAD/pi²/mois 56 745 $ CAD/an 4 729 $ CAD/mois | Bureau | construction complète | Maintenant |
| 1er étage, ste 206 | 5 030 pi² | 3-5 ans | 17,23 $ CAD/pi²/an 1,44 $ CAD/pi²/mois 86 651 $ CAD/an 7 221 $ CAD/mois | Bureau/Médical | construction complète | 2026-11-01 |
| 1er étage, ste 250 | 1 760 pi² | 1-3 ans | 23,79 $ CAD/pi²/an 1,98 $ CAD/pi²/mois 41 865 $ CAD/an 3 489 $ CAD/mois | Bureau/Médical | construction complète | Maintenant |
| 1er étage, ste Private Office | 260 pi² | Négociable | Sur demande Sur demande Sur demande Sur demande | Bureau/Commerce de détail | construction complète | Maintenant |
| 1er étage, ste Private Offices $395 | 100 à 300 pi² | Négociable | Sur demande Sur demande Sur demande Sur demande | Bureau | construction complète | Maintenant |
1er étage, ste 200
| Taille |
| 3 050 pi² |
| Terme |
| Négociable |
| Taux de location |
| 18,60 $ CAD/pi²/an 1,55 $ CAD/pi²/mois 56 745 $ CAD/an 4 729 $ CAD/mois |
| Utilisation de l’espace |
| Bureau |
| Aménagement |
| construction complète |
| Disponible |
| Maintenant |
1er étage, ste 206
| Taille |
| 5 030 pi² |
| Terme |
| 3-5 ans |
| Taux de location |
| 17,23 $ CAD/pi²/an 1,44 $ CAD/pi²/mois 86 651 $ CAD/an 7 221 $ CAD/mois |
| Utilisation de l’espace |
| Bureau/Médical |
| Aménagement |
| construction complète |
| Disponible |
| 2026-11-01 |
1er étage, ste 250
| Taille |
| 1 760 pi² |
| Terme |
| 1-3 ans |
| Taux de location |
| 23,79 $ CAD/pi²/an 1,98 $ CAD/pi²/mois 41 865 $ CAD/an 3 489 $ CAD/mois |
| Utilisation de l’espace |
| Bureau/Médical |
| Aménagement |
| construction complète |
| Disponible |
| Maintenant |
1er étage, ste Private Office
| Taille |
| 260 pi² |
| Terme |
| Négociable |
| Taux de location |
| Sur demande Sur demande Sur demande Sur demande |
| Utilisation de l’espace |
| Bureau/Commerce de détail |
| Aménagement |
| construction complète |
| Disponible |
| Maintenant |
1er étage, ste Private Offices $395
| Taille |
| 100 à 300 pi² |
| Terme |
| Négociable |
| Taux de location |
| Sur demande Sur demande Sur demande Sur demande |
| Utilisation de l’espace |
| Bureau |
| Aménagement |
| construction complète |
| Disponible |
| Maintenant |
1er étage, ste 200
| Taille | 3 050 pi² |
| Terme | Négociable |
| Taux de location | 18,60 $ CAD/pi²/an |
| Utilisation de l’espace | Bureau |
| Aménagement | construction complète |
| Disponible | Maintenant |
Join the thriving Manhattan Plaza neighborhood and establish your business in a highly accessible location near the intersection of Loop 820 and I-30. Suite 200 offers a spacious, fully built-out enterprise suite totaling 3,050sf designed to accommodate a variety of professional needs. Features include Reception, Waiting Area, Conference Room, Training Room, Multiple Private Offices, Abundant Natural Light, and Large Windows. Call 214-934-6265 to schedule a tour or to learn more about this opportunity! *quoted rate does not include NNN estimates
- Le taux de location ne comprend pas les services publics, les services de bâtiment ou les dépenses immobilières.
- Entièrement construit comme Bureau standard
- 8 bureaux privés
- 1 salle de conférence
- Espace en excellent état
- Air central et chauffage
- Aire de réception
- Connectivité Wi-Fi
- Salle d’impression/Photocopie
- Système de sécurité
- Hauts plafonds
- Lumière naturelle
- CVCA disponible après les heures de travail
- Éclairage accentué
1er étage, ste 206
| Taille | 5 030 pi² |
| Terme | 3-5 ans |
| Taux de location | 17,23 $ CAD/pi²/an |
| Utilisation de l’espace | Bureau/Médical |
| Aménagement | construction complète |
| Disponible | 2026-11-01 |
Suite 206 at Manhattan Plaza offers an ideal layout for an enterprise user seeking a balance of private offices and open workspace, with convenient access to Fort Worth, Arlington, and the Mid-Cities. Located just 15 minutes from downtown Fort Worth with direct connectivity to Highway 820 and I-30, the property is well-positioned for regional accessibility across DFW. The suite features a built-in reception area, dedicated conference room, high ceilings, eleven private offices, and a private break room—providing both functionality and a polished, professional setting. Tenants benefit from on-site property management and proactive maintenance, ensuring responsive service and well-maintained common areas. For more information or to schedule a tour, call 214-934-6265.
- Le taux de location ne comprend pas les services publics, les services de bâtiment ou les dépenses immobilières.
- Entièrement construit comme Bureau de services professionnels
- 11 bureaux privés
- 1 salle de conférence
- 2 postes de travail
- Aire de réception
- Climatisation centrale
- Connectivité Wi-Fi
- Salle d’impression/Photocopie
- Complètement tapissé
- Hauts plafonds
- CVCA disponible après les heures de travail
- Éclairage accentué
- Toilettes communes
1er étage, ste 250
| Taille | 1 760 pi² |
| Terme | 1-3 ans |
| Taux de location | 23,79 $ CAD/pi²/an |
| Utilisation de l’espace | Bureau/Médical |
| Aménagement | construction complète |
| Disponible | Maintenant |
- Le taux de location ne comprend pas les services publics, les services de bâtiment ou les dépenses immobilières.
- 7 bureaux privés
- 1 poste de travail
- Espace en excellent état
1er étage, ste Private Office
| Taille | 260 pi² |
| Terme | Négociable |
| Taux de location | Sur demande |
| Utilisation de l’espace | Bureau/Commerce de détail |
| Aménagement | construction complète |
| Disponible | Maintenant |
This ideal office space boasts full glass windows directly to the main hall, offering an open feel and professional aesthetic. This suite includes a storage closet and two separate entrances. Brand new flooring is being installed! Perfect for businesses seeking a professional and functional workspace. Come tour today!
- Le taux comprend les services publics, les services de bâtiment et les dépenses immobilières.
- Entièrement construit comme Bureau standard
- Disposition intensive du bureau
- Espace en excellent état
- Air central et chauffage
- CVCA disponible après les heures de travail
1er étage, ste Private Offices $395
| Taille | 100 à 300 pi² |
| Terme | Négociable |
| Taux de location | Sur demande |
| Utilisation de l’espace | Bureau |
| Aménagement | construction complète |
| Disponible | Maintenant |
Private executive suite! Take advantage of this amazing property at a low cost. You can lease a PRIVATE suite in Manhattan Plaza for your business starting at only $395/month. Call 817-609-1513 to learn more about this opportunity and to come see the space.
- Entièrement construit comme Bureau standard
- Disposition intensive du bureau
- Espace en excellent état
Aperçu de la propriété
Manhattan Plaza est un parc d'affaires professionnel avec un accès facile à l'autoroute 820 et à l'Interstate 30. Avec des gestionnaires immobiliers actifs sur place, nous répondons rapidement à tous les besoins des locataires. L'immeuble dispose d'un grand parking et d'une variété d'espaces pour les locataires : bureaux, services médicaux, flexibles et commerces de détail. La propriété est entourée d'un lotissement qui sera achevé à l'été 2025, y compris l'agrandissement du boulevard Manhattan pour en faire une artère. Manhattan Plaza est un endroit idéal pour les locataires qui ont besoin des toits environnants avec un accès facile au métroplex DFW. Appelez le 214-934-6265 en tout temps pour plus de détails, les prix et pour configurer une visite avec l'équipe de direction ! *Courtiers : Commissions disponibles pour les locataires qualifiés.
- Atrium
- Gestionnaire d'immeuble sur place
- Affichage
- Puits de lumière
- Chauffage central
- Toilettes communes
- Lumière naturelle
- Wi-Fi
- Affichage sur monument
- Climatisation
Faits sur la propriété
Présenté par
MANHATTAN PLAZA | 6850 Manhattan Blvd
Hmm, il semble y avoir eu une erreur lors de l’envoi de votre message. Veuillez réessayer.
Merci! Votre message a été envoyé.












