Votre courriel a été envoyé.
The Standard Residences Brickell 690 SW 1st Ave 1 520–9 520 pi² d'espace disponible • Commerce de détail • 5 étoiles • Miami, FL 33130



Certaines informations ont été traduites automatiquement.
Faits saillants
- Prime Ground Floor Retail Space at The Standard Residences
- Steps away from Avra, Brickell City Center and Financial District
- Direct frontage along 8th Street
- Proximity to approximately 5MM square feet of Class A office and over ± 53,000 residential units
Tous les espaces disponibles(2)
Afficher les taux de location en
- Espace
- Taille
- Terme
- Taux de location
- Utilisation de l’espace
- Aménagement
- Disponible
Prime ground floor retail space at The Standard Residences, steps away from Avra, Brickell City Centr and Financial District. Proximity to approximately 5MM square feet of Class A office and over +/- 53,000 residential units.
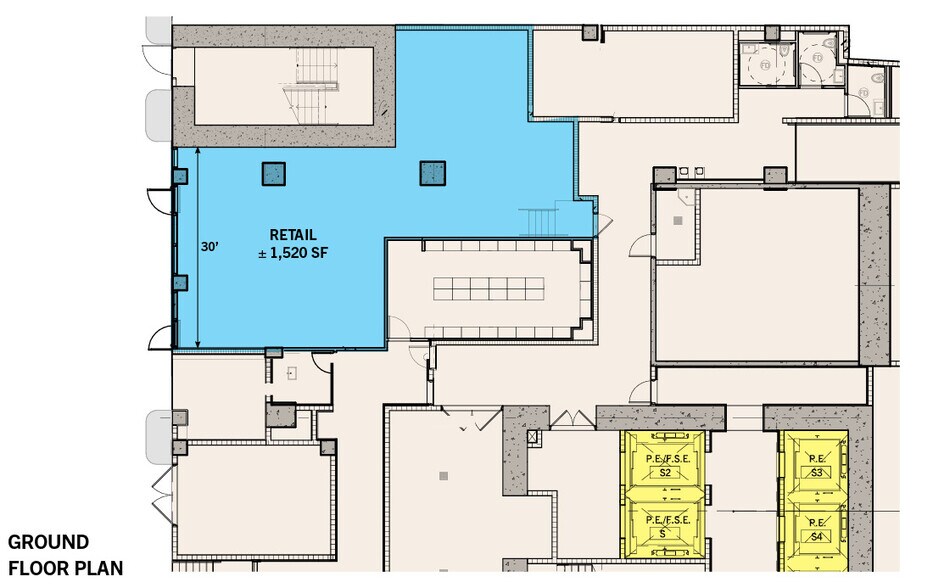
- Entièrement construit comme Espace de commerce de détail standard
- Frontage: ± 30 Feet
- Ceiling Height: ± 20 feet
Steps away from Avra, Brickell City Center, and Financial District Proximity to approximately 5MM square feet of Class A office and over ± 53,000 residential units
- Le taux de location ne comprend pas les services publics, les services de bâtiment ou les dépenses immobilières.
- ± 3,000 SF 9th Floor Outdoor Patio
- Direct frontage along 8th Street
- Plafonds finis: 20’
- Restaurant-Ready Space below The Standard
| Espace | Taille | Terme | Taux de location | Utilisation de l’espace | Aménagement | Disponible |
| 1er étage, ste Ground Floor | 1 520 pi² | Négociable | Sur demande Sur demande Sur demande Sur demande | Commerce de détail | construction complète | 2027-08-01 |
| 9e étage | 8 000 pi² | Négociable | Sur demande Sur demande Sur demande Sur demande | Commerce de détail | espace cloisonné | 2027-08-31 |
1er étage, ste Ground Floor
| Taille |
| 1 520 pi² |
| Terme |
| Négociable |
| Taux de location |
| Sur demande Sur demande Sur demande Sur demande |
| Utilisation de l’espace |
| Commerce de détail |
| Aménagement |
| construction complète |
| Disponible |
| 2027-08-01 |
9e étage
| Taille |
| 8 000 pi² |
| Terme |
| Négociable |
| Taux de location |
| Sur demande Sur demande Sur demande Sur demande |
| Utilisation de l’espace |
| Commerce de détail |
| Aménagement |
| espace cloisonné |
| Disponible |
| 2027-08-31 |
1er étage, ste Ground Floor
| Taille | 1 520 pi² |
| Terme | Négociable |
| Taux de location | Sur demande |
| Utilisation de l’espace | Commerce de détail |
| Aménagement | construction complète |
| Disponible | 2027-08-01 |
Prime ground floor retail space at The Standard Residences, steps away from Avra, Brickell City Centr and Financial District. Proximity to approximately 5MM square feet of Class A office and over +/- 53,000 residential units.
- Entièrement construit comme Espace de commerce de détail standard
- Ceiling Height: ± 20 feet
- Frontage: ± 30 Feet
9e étage
| Taille | 8 000 pi² |
| Terme | Négociable |
| Taux de location | Sur demande |
| Utilisation de l’espace | Commerce de détail |
| Aménagement | espace cloisonné |
| Disponible | 2027-08-31 |
Steps away from Avra, Brickell City Center, and Financial District Proximity to approximately 5MM square feet of Class A office and over ± 53,000 residential units
- Le taux de location ne comprend pas les services publics, les services de bâtiment ou les dépenses immobilières.
- Plafonds finis: 20’
- ± 3,000 SF 9th Floor Outdoor Patio
- Restaurant-Ready Space below The Standard
- Direct frontage along 8th Street
Plan de site
Faits sur la propriété
| Superficie totale disponible | 9 520 pi² | Style d’appartement | De grande hauteur |
| Nombre d’unités | 45 | Taille du bâtiment | 400 000 pi² |
| Type de propriété | Immeuble residentiel | Année de construction | 2027 |
| Sous-type de propriété | Appartement | État de la construction | En construction |
| Superficie totale disponible | 9 520 pi² |
| Nombre d’unités | 45 |
| Type de propriété | Immeuble residentiel |
| Sous-type de propriété | Appartement |
| Style d’appartement | De grande hauteur |
| Taille du bâtiment | 400 000 pi² |
| Année de construction | 2027 |
| État de la construction | En construction |
À propos de la propriété
Espace commercial à louer à Brickell Miami, disponible au premier trimestre 2026.
Principaux détaillants à proximité
Présenté par
The Standard Residences Brickell | 690 SW 1st Ave
Hmm, il semble y avoir eu une erreur lors de l’envoi de votre message. Veuillez réessayer.
Merci! Votre message a été envoyé.




