Votre courriel a été envoyé.
Medical Office Building 698 Westside Dr 2 218 pi² d'espace disponible • Médical • Durant, OK 74701



Certaines informations ont été traduites automatiquement.
Faits saillants
- Strong traffic counts
- Clean design
- Direct access
- Strong visibility
Tous les espaces disponibles(1)
Afficher les taux de location en
- Espace
- Taille
- Terme
- Taux de location
- Utilisation de l’espace
- Aménagement
- Disponible
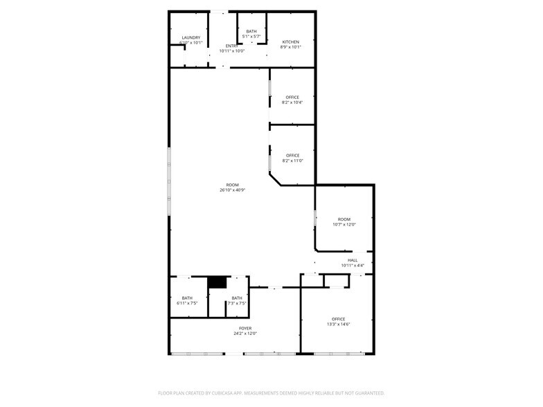
Medical office space is in short supply in Durant, making this 2,218 SF opportunity at 698 Westside Drive especially compelling. Positioned within the West Retail District along one of the city’s highest traffic corridors, this location provides both visibility and accessibility for patients and providers alike. The space offers an efficient layout suitable for a variety of healthcare and professional office users, with strong surrounding demographics and stable household incomes within a 1, 3, and 5 mile radius.
- Le taux inscrit peut ne pas comprendre certains services publics, les services de bâtiment et les dépenses immobilières.
- Disposition du plan d’étage ouverte en général
- Air central et chauffage
- Salle de bains privée
- CVCA disponible après les heures de travail
- High traffic area
- Easy access
- Entièrement construit comme Espace médical standard
- Espace en excellent état
- Bureaux partitionnés
- Espace en coin
- Conforme DDA
- Strong visibility
- End cap
| Espace | Taille | Terme | Taux de location | Utilisation de l’espace | Aménagement | Disponible |
| 1er étage, ste A | 2 218 pi² | Négociable | 30,32 $ CAD/pi²/an 2,53 $ CAD/pi²/mois 67 248 $ CAD/an 5 604 $ CAD/mois | Médical | construction complète | Maintenant |
1er étage, ste A
| Taille |
| 2 218 pi² |
| Terme |
| Négociable |
| Taux de location |
| 30,32 $ CAD/pi²/an 2,53 $ CAD/pi²/mois 67 248 $ CAD/an 5 604 $ CAD/mois |
| Utilisation de l’espace |
| Médical |
| Aménagement |
| construction complète |
| Disponible |
| Maintenant |
1er étage, ste A
| Taille | 2 218 pi² |
| Terme | Négociable |
| Taux de location | 30,32 $ CAD/pi²/an |
| Utilisation de l’espace | Médical |
| Aménagement | construction complète |
| Disponible | Maintenant |
Medical office space is in short supply in Durant, making this 2,218 SF opportunity at 698 Westside Drive especially compelling. Positioned within the West Retail District along one of the city’s highest traffic corridors, this location provides both visibility and accessibility for patients and providers alike. The space offers an efficient layout suitable for a variety of healthcare and professional office users, with strong surrounding demographics and stable household incomes within a 1, 3, and 5 mile radius.
- Le taux inscrit peut ne pas comprendre certains services publics, les services de bâtiment et les dépenses immobilières.
- Entièrement construit comme Espace médical standard
- Disposition du plan d’étage ouverte en général
- Espace en excellent état
- Air central et chauffage
- Bureaux partitionnés
- Salle de bains privée
- Espace en coin
- CVCA disponible après les heures de travail
- Conforme DDA
- High traffic area
- Strong visibility
- Easy access
- End cap
Aperçu de la propriété
Medical office space is in short supply in Durant, making this 2,218 SF opportunity at 698 Westside Drive especially compelling. Positioned within the West Retail District along one of the city’s highest traffic corridors, this location provides both visibility and accessibility for patients and providers alike. The space offers an efficient layout suitable for a variety of healthcare and professional office users, with strong surrounding demographics and stable household incomes within a 1, 3, and 5 mile radius. Durant continues to be one of the fastest growing communities in Oklahoma, fueled by the regional draw of Choctaw Nation and Choctaw Casino & Resort, Southeastern Oklahoma State University, and sustained retail and commercial expansion. The Westside corridor benefits from established national retailers, healthcare services, and daily traffic generated by Highway 75 and University Boulevard. This synergy creates a built-in patient base and long-term stability for medical users seeking both growth and permanence in the market.
- Affichage
- Accessible aux fauteuils roulants
- Chauffage central
- Climatisation
Faits sur la propriété
Présenté par
Medical Office Building | 698 Westside Dr
Hmm, il semble y avoir eu une erreur lors de l’envoi de votre message. Veuillez réessayer.
Merci! Votre message a été envoyé.




