Se Connecter/S’inscrire
Votre courriel a été envoyé.
7 Koi Park Road Rd 100 800 pi² Industriel Immeuble Fayetteville, TN 37334 10 949 615 $ CAD (108,63 $ CAD/pi²)



Certaines informations ont été traduites automatiquement.
FAITS SAILLANTS DE L'INVESTISSEMENT
- 100,800-SF Speculative Building Under Construction - Estimated Completion March 2026
- Located less than a quarter mile away from U.S. Highway 231 and just 46 miles to the Port of Decatur, this site is ideal for mid-sized light assembly
- Publicly Owned 26 Acre Site
RÉSUMÉ DE L'ANNONCE
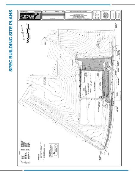
100,800-SF Speculative Building – Runway Centre
Located on a 26-acre site strategically positioned between two rapidly growing markets—Nashville, Tennessee, and Huntsville, Alabama—this speculative industrial building offers prime access and future flexibility. The site is just 20 minutes from Huntsville and features four-lane access to Interstate 65, providing convenient connectivity to Nashville.
Currently under construction and scheduled for completion in March 2026, the facility spans 100,800 square feet, with the potential to expand up to 200,000 square feet. Building dimensions are 360' x 280', featuring 36-foot eave heights and 6-inch reinforced concrete floors.
All utilities are available on-site. The property is publicly owned by the Fayetteville-Lincoln County Industrial Development Board, making it an ideal location for businesses seeking growth and logistical advantage in a dynamic regional corridor.
For more information visit FLCIDB.com or contact the Fayetteville-Lincoln County Industrial Development Board.
Elaine Middleton, Executive Director
Elaine@flcidb.com
Office: 931-433-0607
Located on a 26-acre site strategically positioned between two rapidly growing markets—Nashville, Tennessee, and Huntsville, Alabama—this speculative industrial building offers prime access and future flexibility. The site is just 20 minutes from Huntsville and features four-lane access to Interstate 65, providing convenient connectivity to Nashville.
Currently under construction and scheduled for completion in March 2026, the facility spans 100,800 square feet, with the potential to expand up to 200,000 square feet. Building dimensions are 360' x 280', featuring 36-foot eave heights and 6-inch reinforced concrete floors.
All utilities are available on-site. The property is publicly owned by the Fayetteville-Lincoln County Industrial Development Board, making it an ideal location for businesses seeking growth and logistical advantage in a dynamic regional corridor.
For more information visit FLCIDB.com or contact the Fayetteville-Lincoln County Industrial Development Board.
Elaine Middleton, Executive Director
Elaine@flcidb.com
Office: 931-433-0607
FAITS SUR LA PROPRIÉTÉ
SERVICES PUBLICS
- Éclairage
- Gaz
- Eau
- Égout
- Chauffage
1 1
Impôts fonciers
| Numéro de lot | 126-041.01 | Évaluation des bâtiments | 185 051 $ CAD |
| Évaluation du terrain | 36 193 $ CAD | Évaluation totale | 221 244 $ CAD |
Impôts fonciers
Numéro de lot
126-041.01
Évaluation du terrain
36 193 $ CAD
Évaluation des bâtiments
185 051 $ CAD
Évaluation totale
221 244 $ CAD
1 de 5
VIDÉOS
VISITE EXTÉRIEURE 3D MATTERPORT
VISITE 3D MATTERPORT
PHOTOS
VUE DEPUIS LA RUE
RUE
CARTE
1 de 1
Présenté par
Entreprise non fournie
7 Koi Park Road Rd
Vous êtes déjà membre? Connectez-vous
Hmm, il semble y avoir eu une erreur lors de l’envoi de votre message. Veuillez réessayer.
Merci! Votre message a été envoyé.
