Votre courriel a été envoyé.
Certaines informations ont été traduites automatiquement.
Faits saillants
- Two loading docks and one drive-in door support efficient handling and logistics.
- Offers a rare 18’ to 40’ clear height range for superior storage optimization.
- Building floorplan ratio 80:20 warehouse to office space
- Features 10,000 SF of temperature-controlled freezer/refrigerated space.
- 40' Clear height within the freezer space
- Freezer space: 10,000 SF
Caractéristiques
Tous les espaces disponibles(1)
Afficher les taux de location en
- Espace
- Taille
- Terme
- Taux de location
- Utilisation de l’espace
- Aménagement
- Disponible
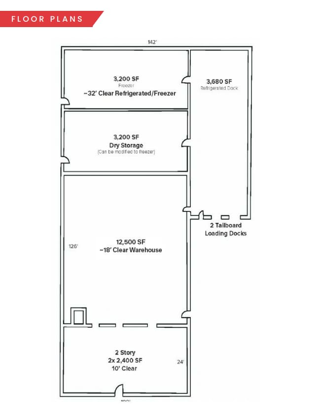
This 27,609 SF industrial freezer warehouse building offers a flexible configuration on 1.76 acres, positioned in a highly accessible Woburn location. The property includes approximately 10,000 SF of refrigerated/freezer space with an impressive clear height of up to 40 feet, complemented by 12,500 SF of open warehouse and 5,000 SF of flex/office space. The site is strategically situated less than 1.2 miles from I-95, 2.1 miles from I-93, and 3.2 miles from Route 3, ensuring exceptional connectivity to regional logistics networks, Greater Boston markets, and beyond. Equipped with two loading docks, a drive-in door, and heavy-duty power of 1,000 amps, this facility is designed to accommodate a wide range of industrial uses, cold storage operations, and distribution requirements. Tenants will benefit from seamless transportation access, substantial temperature-controlled capacity, and a well-proportioned 80:20 warehouse-to-office layout—creating an ideal operational environment for businesses seeking efficiency and scalability.
- Comprend 5 000 pi² d’espace de bureau dédié
- 2 quais de chargement
- 27,609 SF Freezer Warehouse Building on 1.76 AC
- 32’ clear freezer space: 10,000 SF
- Refrigerated/freezer section included in footprint
- 1 accès plain-pied
- Chambres de congélation
- Flex/Office space: 5,000 SF
- 18’ clear warehouse space: 12,500 SF
| Espace | Taille | Terme | Taux de location | Utilisation de l’espace | Aménagement | Disponible |
| 1er étage | 27 609 pi² | 3-10 ans | Sur demande Sur demande Sur demande Sur demande | Industriel | construction complète | Maintenant |
1er étage
| Taille |
| 27 609 pi² |
| Terme |
| 3-10 ans |
| Taux de location |
| Sur demande Sur demande Sur demande Sur demande |
| Utilisation de l’espace |
| Industriel |
| Aménagement |
| construction complète |
| Disponible |
| Maintenant |
1er étage
| Taille | 27 609 pi² |
| Terme | 3-10 ans |
| Taux de location | Sur demande |
| Utilisation de l’espace | Industriel |
| Aménagement | construction complète |
| Disponible | Maintenant |
This 27,609 SF industrial freezer warehouse building offers a flexible configuration on 1.76 acres, positioned in a highly accessible Woburn location. The property includes approximately 10,000 SF of refrigerated/freezer space with an impressive clear height of up to 40 feet, complemented by 12,500 SF of open warehouse and 5,000 SF of flex/office space. The site is strategically situated less than 1.2 miles from I-95, 2.1 miles from I-93, and 3.2 miles from Route 3, ensuring exceptional connectivity to regional logistics networks, Greater Boston markets, and beyond. Equipped with two loading docks, a drive-in door, and heavy-duty power of 1,000 amps, this facility is designed to accommodate a wide range of industrial uses, cold storage operations, and distribution requirements. Tenants will benefit from seamless transportation access, substantial temperature-controlled capacity, and a well-proportioned 80:20 warehouse-to-office layout—creating an ideal operational environment for businesses seeking efficiency and scalability.
- Comprend 5 000 pi² d’espace de bureau dédié
- 1 accès plain-pied
- 2 quais de chargement
- Chambres de congélation
- 27,609 SF Freezer Warehouse Building on 1.76 AC
- Flex/Office space: 5,000 SF
- 32’ clear freezer space: 10,000 SF
- 18’ clear warehouse space: 12,500 SF
- Refrigerated/freezer section included in footprint
Aperçu de la propriété
Bâtiment d'entrepôt frigorifique de 27 609 pi² sur un terrain de 1,76 acre à louer.
Faits sur l’installation réfrigération/chambre froide
Présenté par
7 State St
Hmm, il semble y avoir eu une erreur lors de l’envoi de votre message. Veuillez réessayer.
Merci! Votre message a été envoyé.






