Se Connecter/S’inscrire
Votre courriel a été envoyé.
Fraternity on Washington State University 700 NE California St 1 Unité Immeuble d’appartements 1 166 028 $ CAD (1 166 028 $ CAD/Unité) Pullman, WA 99163



Certaines informations ont été traduites automatiquement.
FAITS SAILLANTS DE L'INVESTISSEMENT
- Start Your New Chapter at Washington State University
- Prime 0.37 Acre Corner Lot Zoned R-4 High Density
- Three Bonus Living Spaces + Basketball Court & Deck
RÉSUMÉ DE L'ANNONCE
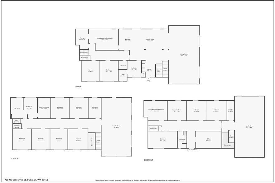
Start your new chapter and bring Greek Life back to this prime location on WSU’s College Hill. Situated at the corner of California and Monroe, this two-story plus basement fraternity house offers 8,234 square feet of living and gathering space designed to accommodate up to 43 members. Inside you’ll find 13 bedrooms, 3 bathrooms, and three large bonus living areas, providing plenty of room for study, dining, and social activities. Set on 0.37 acres across two parcels, the property features amenities that support the Greek experience, including a basketball court, spacious deck, and multiple common areas for community events. Zoned R-4 High Density Residential, the site offers flexibility for future development or continued use as student housing. With excellent visibility, generous frontage, and walking access to campus, this is a rare chance to secure a landmark property on Greek Row. Be sure to view the 3D Virtual Tour Matterport Tour and floorplans on this listing.
FAITS SUR LA PROPRIÉTÉ
| Prix | 1 166 028 $ CAD | Style d’appartement | De faible hauteur |
| Prix par unité | 1 166 028 $ CAD | Classe d’immeuble | C |
| Type de vente | Investissement | Taille du lot | 0,23 AC |
| Nombre d’unités | 1 | Taille du bâtiment | 8 234 pi² |
| Type de propriété | Immeuble residentiel | Nombre d’étages | 2 |
| Sous-type de propriété | Appartement | Année de construction | 1961 |
| Prix | 1 166 028 $ CAD |
| Prix par unité | 1 166 028 $ CAD |
| Type de vente | Investissement |
| Nombre d’unités | 1 |
| Type de propriété | Immeuble residentiel |
| Sous-type de propriété | Appartement |
| Style d’appartement | De faible hauteur |
| Classe d’immeuble | C |
| Taille du lot | 0,23 AC |
| Taille du bâtiment | 8 234 pi² |
| Nombre d’étages | 2 |
| Année de construction | 1961 |
COMMODITÉS
COMMODITÉS DES UNITÉS
- Cuisine
- Réfrigérateur
- Four
- Fourchette
- Bain/Douche
- Sous-sol
- Congélateur
COMMODITÉS DU SITE
- Accès 24 heures
- Accès contrôlé
- Services en ligne
- Sans ascenseur
- Détecteur de fumée
1 1
Walk Score®
Très pratique à pied (76)
Impôts fonciers
| Numéro de lot | 111700000070000 | Évaluation des bâtiments | 487 689 $ CAD |
| Évaluation du terrain | 124 822 $ CAD | Évaluation totale | 612 511 $ CAD |
Impôts fonciers
Numéro de lot
111700000070000
Évaluation du terrain
124 822 $ CAD
Évaluation des bâtiments
487 689 $ CAD
Évaluation totale
612 511 $ CAD
1 de 34
VIDÉOS
VISITE EXTÉRIEURE 3D MATTERPORT
VISITE 3D MATTERPORT
PHOTOS
VUE DEPUIS LA RUE
RUE
CARTE
1 de 1
Présenté par
Fraternity on Washington State University | 700 NE California St
Vous êtes déjà membre? Connectez-vous
Hmm, il semble y avoir eu une erreur lors de l’envoi de votre message. Veuillez réessayer.
Merci! Votre message a été envoyé.
