Se Connecter/S’inscrire
Votre courriel a été envoyé.
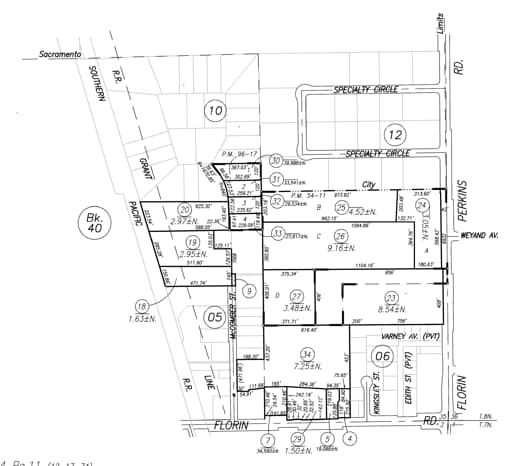
7001 McComber St Lot • Terrain industriel • 2,68 Acres • 1 918 756 $ CAD • Sacramento, CA 95828



Certaines informations ont été traduites automatiquement.
Résumé de l'annonce
Probate sale with full court approval. House on 1.64 acres. APN 064-0050-002-0000 and adjoining lot .64 acre APN#064-0040-033-0000. Currently used as storage. All cars to be removed. Zone SPA of M-1 & M-2 with possible use permit. House is a 2 bedroom; 2 bath: functional at 1698 sq. Ft. Lite industrial street in center of Sacramento. Cross street: Florin Rd, full public utilities at house, property is on a septic tank.
Faits sur la propriété
1 Lot disponible
Lot
| Prix | 1 918 756 $ CAD | Taille du lot | 2,68 AC |
| Prix par AC | 715 953,74 $ CAD |
| Prix | 1 918 756 $ CAD |
| Prix par AC | 715 953,74 $ CAD |
| Taille du lot | 2,68 AC |
Plutôt praticable à pied
30/100
Exceptionnellement facile d’accès en voiture
90/100
Plutôt praticable en vélo
40/100
Impôts fonciers
| Numéros de lot | Évaluation des bâtiments | 90 086 $ CAD | |
| Évaluation du terrain | 1 261 210 $ CAD | Évaluation totale | 1 351 297 $ CAD |
Impôts fonciers
Numéros de lot
Évaluation du terrain
1 261 210 $ CAD
Évaluation des bâtiments
90 086 $ CAD
Évaluation totale
1 351 297 $ CAD
1 de 4
Vidéos
Visite extérieure 3D Matterport
Visite 3D Matterport
Photos
Vue depuis la rue
Rue
Carte
Présenté par
American Home Real Estate
7001 McComber St
Vous êtes déjà membre? Connectez-vous
Hmm, il semble y avoir eu une erreur lors de l’envoi de votre message. Veuillez réessayer.
Merci! Votre message a été envoyé.

