Se Connecter/S’inscrire
Votre courriel a été envoyé.
Pawn Shop 704 Front St 6 168 pi² Commerce de détail Immeuble Brainerd, MN 56401 375 166 $ CAD (60,82 $ CAD/pi²)



Certaines informations ont été traduites automatiquement.
Faits saillants de l'investissement
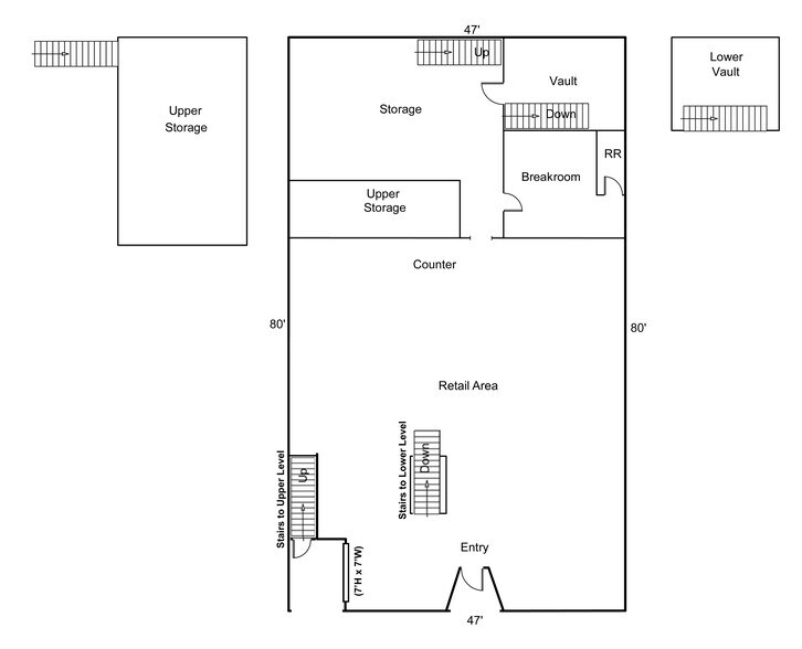
- Main Level: 3,724 SF Retail & Storage
- Lower Level: 3,520 SF Unfinished Basement Storage
- PRICE REDUCED TO $275,000! (Originally $299,000)
- Upper Level: 2,444 SF Apartment
- 7'x7' Service Door on Mail Level
Résumé de l'annonce
PRICE REDUCED TO $275,000! (Originally $299,000). Discover a rare investment opportunity in Historic Downtown Brainerd. Step into the rich history and vibrant potential of this iconic commercial building, ideally located in the heart of Downtown Brainerd. Dating back to the early 1900s, this storied property was home to Murphy’s Dry Goods for over half a century, followed by the well-known Iron Hills Pawn Shop—a beloved local staple. Now, the stage is set for a new chapter. With its prime location and timeless charm, this is the perfect opportunity for a visionary entrepreneur to reimagine the main level retail space and bring fresh energy to the community. Upstairs, a spacious unfinished apartment offers the flexibility to live on-site or generate passive income through rental. Whether you’re an investor, business owner, or history enthusiast, this building offers a unique blend of legacy and opportunity. Don’t miss your chance to own a piece of Brainerd’s past—while shaping its future.
Faits sur la propriété
Type de vente
Investissement ou propriétaire utilisateur
Type de propriété
Commerce de détail
Sous-type de propriété
Taille du bâtiment
6 168 pi²
Classe d’immeuble
B
Année de construction
1909
Prix
375 166 $ CAD
Prix par pi²
60,82 $ CAD
Location
Unique
Hauteur du bâtiment
2 étages
Coefficient d’occupation des sols de l’immeuble
1,57
Taille du lot
0,09 AC
Zone de développement économique
Oui
Zonage
MS - Rue Principale
Façade
80’ sur Front Street
Assez praticable à pied
50/100
Moyennement facile d’accès en voiture
70/100
Plutôt praticable en vélo
40/100
Principaux détaillants à proximité
Impôts fonciers
| Numéro de lot | 09196041016Z889 | Évaluation des bâtiments | 149 321 $ CAD |
| Évaluation du terrain | 50 003 $ CAD | Évaluation totale | 199 324 $ CAD |
Impôts fonciers
Numéro de lot
09196041016Z889
Évaluation du terrain
50 003 $ CAD
Évaluation des bâtiments
149 321 $ CAD
Évaluation totale
199 324 $ CAD
1 de 35
Vidéos
Visite extérieure 3D Matterport
Visite 3D Matterport
Photos
Vue depuis la rue
Rue
Carte
Présenté par
Pawn Shop | 704 Front St
Vous êtes déjà membre? Connectez-vous
Hmm, il semble y avoir eu une erreur lors de l’envoi de votre message. Veuillez réessayer.
Merci! Votre message a été envoyé.
