Se Connecter/S’inscrire
Votre courriel a été envoyé.
7045 S Fulton St
Englewood, CO 80112
Rampart Distribution Center I - Bldg B · Industriel Propriété pour Bail
·
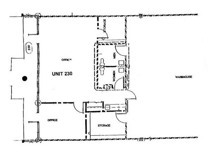
4 636 pi²


Certaines informations ont été traduites automatiquement.
Caractéristiques
Hauteur libre
18’
Espacement des colonnes
40’ x 40’
Places de stationnement standard
44
Faits sur l’installation Entrepôt
Taille du bâtiment
31 650 pi²
Taille du lot
7,00 AC
Année de construction
1987
Construction
Béton renforcé
Eau
Eau de ville
Égout
Égout de la ville
Gaz
Naturel
Alimentation électrique
Ampères: 277 Volts: 480 Phase: 3
Zonage
Light Industrial
1 de 6
Vidéos
Visite extérieure 3D Matterport
Visite 3D Matterport
Photos
Vue depuis la rue
Rue
Carte
