Se Connecter/S’inscrire
Votre courriel a été envoyé.
705 Ulysses St Immeuble de 2 706 pi² • Spécialité • À vendre 997 658 $ CAD • Golden, CO 80401



Certaines informations ont été traduites automatiquement.
Résumé de l'annonce
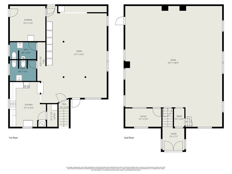
Unique owner-user and special-purpose opportunity in Golden. Per City of Golden zoning verification, the property is zoned R-E Residential Estates, subject to Chapter 18.28, with current use identified as place of assembly. Golden’s zoning code recognizes Place of Assembly as a distinct land-use category, which may indicate potential for religious, community, educational, or similar gathering-oriented uses, subject to buyer verification with the City of Golden. This vacant and easy-to-show property includes an approximately 2,706 SF building on a 15,725 SF lot with a large paved parking area, plus existing classrooms, fellowship/assembly space, and storage. Rare opportunity to purchase a distinctive property with immediate utility and long-term potential in one of the metro area’s most desirable foothill communities.
Property was used as a place of worship, so there is no in-place cap rate. Property has been tax-exempt under church ownership/use; buyer and buyer’s agent must independently verify future property tax liability, zoning, permitted uses, occupancy, parking, redevelopment potential, and any change-of-use requirements.
Property was used as a place of worship, so there is no in-place cap rate. Property has been tax-exempt under church ownership/use; buyer and buyer’s agent must independently verify future property tax liability, zoning, permitted uses, occupancy, parking, redevelopment potential, and any change-of-use requirements.
Faits sur la propriété
1 1
Plutôt praticable à pied
30/100
Exceptionnellement facile d’accès en voiture
100/100
Transports en commun relativement accessibles
50/100
Plutôt praticable en vélo
50/100
Impôts fonciers
| Numéro de lot | 40-023-00-010 | Évaluation des bâtiments | 32 067 $ CAD |
| Évaluation du terrain | 137 298 $ CAD | Évaluation totale | 169 365 $ CAD |
Impôts fonciers
Numéro de lot
40-023-00-010
Évaluation du terrain
137 298 $ CAD
Évaluation des bâtiments
32 067 $ CAD
Évaluation totale
169 365 $ CAD
1 de 20
Vidéos
Visite extérieure 3D Matterport
Visite 3D Matterport
Photos
Vue depuis la rue
Rue
Carte
1 de 1
Présenté par
705 Ulysses St
Vous êtes déjà membre? Connectez-vous
Hmm, il semble y avoir eu une erreur lors de l’envoi de votre message. Veuillez réessayer.
Merci! Votre message a été envoyé.
