Se Connecter/S’inscrire
Votre courriel a été envoyé.
Barracks Row 707-709 8th St SE 6 786 pi² 100% Loué Commerce de détail Immeuble Washington, DC 20003 5 362 344 $ CAD (790,21 $ CAD/pi²) 7,81% Taux de capitalisation



Certaines informations ont été traduites automatiquement.
Faits saillants de l'investissement
- Eastern Market/Barracks Row offre des possibilités de vente au détail et de bureaux dans l'une des destinations les plus populaires de DC pour les communautés et les touristes.
- L'une des principales destinations de la ville pour les résidents et les touristes avec des marches menant à la station de métro, au bus et à l'autoroute offrent un accès facile.
- District historique résidentiel, l'un des meilleurs quartiers de la région.
- L'une des plus grandes façades de services, de vente au détail et de restaurants à Eastern Market/Barracks Row et Capitol Hill
- Barracks Row Main Street et la Chambre de commerce active de Capitol Hill offrent du soutien, des événements promotionnels, des subventions et des services de district
- Soutien communautaire fort à ses propres entreprises commerciales
Résumé de l'annonce
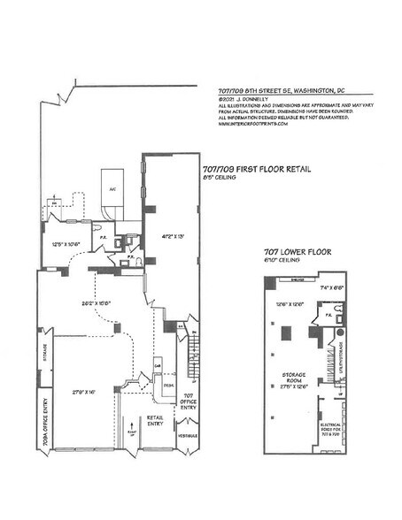
NOUVELLE OFFRE DE PRIX Très bien située, grande propriété à usage mixte au cœur du quartier commercial de Capitol Hill. À quelques pas seulement du métro Eastern Market et du Capitol Building, il est niché au milieu des boutiques et des restaurants animés de Barracks Row, en face de la célèbre caserne marine américaine créée en 1801. 707-709 8th St S.E. est une combinaison antérieure unique de deux propriétés, ce qui donne lieu à un très rare 1er étage ouvert de plus de 2 500 pieds carrés d'espace de rue rénové pour restaurant, garderie, club médical., le siège social d'un grand bureau ou toute entreprise ou service qui recherche un grand attrait extérieur, un emplacement ou une exposition sur la rue dans l'un des corridors commerciaux les plus achalandés en SE. L'ensemble de la propriété a été entièrement rénové avec 2 très grands bureaux dédiés, un étage supplémentaire pour plusieurs appartements ou bureaux et des étages inférieurs dans cet exceptionnel et flexible 7000pi². 80 % vacant avec bureau à l'étage supérieur occupé à 5 000$ par mois (négociable) Remarque non justifiée : l'immeuble peut avoir un potentiel de développement pour une superficie supplémentaire de pieds carrés dans la structure existante ou d'agrandissement en plus de la possibilité de se garer à l'arrière du terrain. La propriété est actuellement vacante à 80 % et peut-être à 100 % si l'acheteur en a besoin. Très peu de propriétés commerciales offrent cette flexibilité quant à l'emplacement, à la taille ou à l'utilisation. Exposition et matériel disponible. Voir la clause de non-responsabilité
Faits sur la propriété
Type de vente
Investissement ou propriétaire utilisateur
Type de propriété
Commerce de détail
Sous-type de propriété
Taille du bâtiment
6 786 pi²
Classe d’immeuble
C
Année de construction
1908
Prix
5 362 344 $ CAD
Prix par pi²
790,21 $ CAD
Taux de capitalisation
7,81%
Revenu net d’exploitation
418 675 $ CAD
Pourcentage loué
100%
Location
Multiples
Hauteur du bâtiment
3 étages
Coefficient d’occupation des sols de l’immeuble
1,73
Taille du lot
0,09 AC
Zonage
MU-25 - Permis de développement commercial à usage mixte MU-4/CHC de Capitol Hill à usage mixte à densité modérée
Désignation historique
Stationnement
2 places (0,29 places par 1 000 pi² loué)
Façade
22’ sur 8th St
Commodités
- Accès 24 heures
- Ligne d'autobus
- Terrain clôturé
- Restaurant
- Système de sécurité
- Éclairage encastré
- Climatisation
Exceptionnellement practicable à pied
100/100
Moyennement facile d'accès en voiture
60/100
Transports en commun exceptionnels
100/100
Très practicable en vélo
80/100
Principaux détaillants à proximité
Impôts fonciers
| Numéros de lot | Évaluation des bâtiments | 2 837 160 $ CAD | |
| Évaluation du terrain | 1 012 680 $ CAD | Évaluation totale | 3 849 841 $ CAD |
Impôts fonciers
Numéros de lot
Évaluation du terrain
1 012 680 $ CAD
Évaluation des bâtiments
2 837 160 $ CAD
Évaluation totale
3 849 841 $ CAD
1 de 25
Vidéos
Visite extérieure 3D Matterport
Visite 3D Matterport
Photos
Vue depuis la rue
Rue
Carte
Présenté par
Barracks Row | 707-709 8th St SE
Vous êtes déjà membre? Connectez-vous
Hmm, il semble y avoir eu une erreur lors de l’envoi de votre message. Veuillez réessayer.
Merci! Votre message a été envoyé.
