Votre courriel a été envoyé.
7100 Guilford Dr 2 000–8 200 pi² d'espace disponible • Bureau/Médical • 4 étoiles • Frederick, MD 21704



Certaines informations ont été traduites automatiquement.
Faits saillants
- L'immeuble de bureaux médicaux tout neuf offre un espace exceptionnel, y compris des caractéristiques sans contact.
- Excellent accès pour les navetteurs à I-70 et I-270 et entouré de restaurants pratiques, de commerces de détail et d'installations médicales complémentaires.
- Situé à Frederick, Maryland, une charmante communauté à moins d'une heure de Baltimore, DC, et Gettysburg.
- Propriété locale et gérée par des professionnels de l'immobilier locaux offrant une aide expérimentée en conception et construction de locaux.
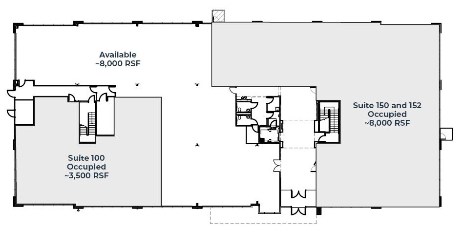
Tous les espaces disponibles(1)
Afficher les taux de location en
- Espace
- Taille
- Terme
- Taux de location
- Utilisation de l’espace
- État
- Disponible
Fully customizable build-out available.
- Le taux de location ne comprend pas les services publics, les services de bâtiment ou les dépenses immobilières.
- Disposition intensive du bureau
- Espace en excellent état
- Entièrement construit comme Bureau standard
- Convient pour 5 à 66 personnes
| Espace | Taille | Terme | Taux de location | Utilisation de l’espace | État | Disponible |
| 1er étage | 2 000 à 8 200 pi² | 5-15 ans | 30,08 $ CAD/pi²/an 2,51 $ CAD/pi²/mois 246 648 $ CAD/an 20 554 $ CAD/mois | Bureau/Médical | construction complète | Maintenant |
1er étage
| Taille |
| 2 000 à 8 200 pi² |
| Terme |
| 5-15 ans |
| Taux de location |
| 30,08 $ CAD/pi²/an 2,51 $ CAD/pi²/mois 246 648 $ CAD/an 20 554 $ CAD/mois |
| Utilisation de l’espace |
| Bureau/Médical |
| État |
| construction complète |
| Disponible |
| Maintenant |
1er étage
| Taille | 2 000 à 8 200 pi² |
| Terme | 5-15 ans |
| Taux de location | 30,08 $ CAD/pi²/an |
| Utilisation de l’espace | Bureau/Médical |
| État | construction complète |
| Disponible | Maintenant |
Fully customizable build-out available.
- Le taux de location ne comprend pas les services publics, les services de bâtiment ou les dépenses immobilières.
- Entièrement construit comme Bureau standard
- Disposition intensive du bureau
- Convient pour 5 à 66 personnes
- Espace en excellent état
Visite 3D Matterport
Aperçu de la propriété
Le 7100 Guilford Drive est un tout nouvel immeuble de bureaux professionnels et médicaux de classe A situé à Frederick, au Maryland. Conçu pendant la pandémie de COVID, cette propriété a été conçue et construite par des professionnels de l'immobilier locaux et comprend des caractéristiques sans contact à la fine pointe de la technologie. Cette propriété offre des tailles de suite flexibles allant de 2 000 à 20 000 pi2, ce qui permet des options prêtes à emménager et la possibilité d'utiliser le propriétaire local et expérimenté pour aider à la conception et à la construction de l'espace. La propriété comprend des fonctions tactiles sans contact ou minimes, y compris des ouvre-portes automatiques et des boutons d'ascenseur. Les locataires apprécieront le grand stationnement, la facilité d'accès et l'état prêt à emménager. Excellente signalisation de l'immeuble est disponible. Situé à l'échangeur I-270 et I-70, les employés et les patients trouveront la navette un jeu d'enfant. Les locataires et les visiteurs de la propriété bénéficieront d'un accès facile à des services médicaux, de vente au détail et de restauration complémentaires à proximité. Les locataires médicaux voisins comprennent le Centre dentaire pédiatrique de Frederick, le Centre médical Kaiser Permanente Frederick, le Children's National Frederick et l'Hôpital de santé Frederick. Situé à moins d'une heure de Baltimore, D.C., et Gettysburg, le 7100 Guilford est bien placé pour capter la base croissante de patients et attirer les talents de bureau dans la grande région. Frederick se trouve entre les monts Catoctin et la rivière Monocacy, dans le centre du Maryland. Frederick est la deuxième ville en importance du Maryland et la résidence de Fort Detrick, le plus important employeur de la ville. Avec un passé important pendant la guerre de Sécession et une place dans le corridor technologique I-270, Frederick allie histoire et technologie pour une expérience unique et moderne.
Faits sur la propriété
Brochure marketing
Commodités à proximité
Hôpitaux |
|||
|---|---|---|---|
| Frederick Health Hospital | Soins de courte durée | 7 route min. | 3,8 km |
Restaurants |
|||
|---|---|---|---|
| Delhi 6 Indian Cuisine & Lounge | Indien | $$ | 12 Min. de marche |
| Old Dominion Grill And Sushi | Grill | $$ | 12 Min. de marche |
| Mariachi Restaurant | Mexicain | $$ | 15 Min. de marche |
| Blues BBQ Co | Barbecue | $$ | 20 Min. de marche |
| The Roasthouse Pub | Nourriture de brasserie | $$$ | 23 Min. de marche |
| Analia's Cafe | Café | $$ | 44 Min. de marche |
Commerce de détail |
||
|---|---|---|
| Sally Beauty | Produits de santé et de beauté | 4 Min. de marche |
| GameStop | Magasin de jeux | 4 Min. de marche |
| Five Below | Magasin à un dollar / Variété / Friperie | 4 Min. de marche |
| Chuck E. Cheese | Arcade | 5 Min. de marche |
| Kohl's | Grand magasin | 6 Min. de marche |
Agent de location
Justin Ausherman, Founder and President
Depuis 2002, Justin travaille au développement de solutions immobilières transformatrices. Au fil des ans, ses connaissances sur le courtage et la gestion immobilière se sont conglomérées pour former le premier cabinet immobilier commercial de Frederick qui rationalise l'investissement et la gestion de biens immobiliers.
En tant que résident de Frederick depuis toujours, Justin a une bonne connaissance des conditions du marché, et il utilise ses connaissances pour trouver la solution idéale qui influe sur les résultats financiers de ses clients. De la conception à l'examen des documents juridiques, le président d'AusHCo assure le succès immobilier du début à la fin.
Présenté par
7100 Guilford Dr
Hmm, il semble y avoir eu une erreur lors de l’envoi de votre message. Veuillez réessayer.
Merci! Votre message a été envoyé.




