Votre courriel a été envoyé.
Cambridge Marketplace 712 Cambridge Plz 1 125–2 738 pi² d'espace disponible • Bureau/Commerce de détail • Cambridge, MD 21613



Certaines informations ont été traduites automatiquement.
Faits saillants
- À 2 heures de Washington D.C.
- 2 heures de Baltimore, Maryland
Disponibilité des espaces (2)
Afficher les taux de location en
- Espace
- Taille
- Terme
- Taux de location
- Type de loyer
| Espace | Taille | Terme | Taux de location | Type de loyer | ||
| 1er étage, ste 720 | 1 125 pi² | 5 ans | 22,05 $ CAD/pi²/an 1,84 $ CAD/pi²/mois 24 804 $ CAD/an 2 067 $ CAD/mois | Loyer hypernet | ||
| 1er étage, ste 726 | 1 613 pi² | 5 ans | 22,05 $ CAD/pi²/an 1,84 $ CAD/pi²/mois 35 563 $ CAD/an 2 964 $ CAD/mois | Loyer hypernet |
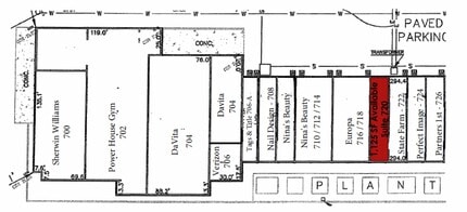
700-726 Cambridge Plz - 1er étage - ste 720
1,125 SF in-line space available immediately
- Le taux de location ne comprend pas les services publics, les services de bâtiment ou les dépenses immobilières.
- Entièrement construit comme Espace de commerce de détail standard
- Disposition du plan d’étage ouverte
- Convient pour 3 à 9 personnes
- Surrounded by national tenants including Starbucks
- Strong co-tenancy with health, fitness, and beauty
- High visibility storefront
- Adjacent to University of Maryland Shore Regional
700-726 Cambridge Plz - 1er étage - ste 726
- Le taux de location ne comprend pas les services publics, les services de bâtiment ou les dépenses immobilières.
- Convient pour 5 à 13 personnes
Types de loyers
Le type et le montant du loyer que le locataire (preneur) est tenu de payer au propriétaire (bailleur) sur la durée du bail sont négociés avant la signature du bail par les deux parties. Le type de loyer varie selon les services fournis. Par exemple, le prix d’un loyer hypernet est habituellement inférieur à celui d’un bail à service complet puisque le locataire est tenu d’assumer des dépenses additionnelles par rapport au loyer de base. Contactez le courtier inscripteur pour tout connaître sur les frais connexes et additionnels associés à chaque type de loyer.
1. Service complet: Un taux de location qui comprend des services standards liés à l’immeuble fournis par le propriétaire dans le cadre d’une location annuelle de base.
2. Loyer supernet: Le locataire paie seulement deux des frais de l’immeuble. Le propriétaire et le locataire déterminent ces frais spécifiques avant la signature du bail.
3. Loyer hypernet: Un bail en vertu duquel le locataire est responsable de tous les frais liés à sa part proportionnelle d’occupation de l’immeuble.
4. Brut modifié: Le loyer brut modifié désigne un type général de taux de location dans lequel le locataire est habituellement responsable de sa part proportionnelle d’un ou de plusieurs frais. C’est le propriétaire qui paie les frais restants. Considérez les structures tarifaires courantes suivantes applicables aux loyers bruts modifiés: 4. Plus les services: Un type de bail brut modifié suivant lequel le locataire est responsable de sa part proportionnelle des coûts des services publics, en plus du loyer. 4. Plus le nettoyage: Un type de bail brut modifié suivant lequel le locataire est responsable de sa part proportionnelle des coûts de nettoyage, en plus du loyer. 4. Plus l'électricité: Un type de bail brut modifié suivant lequel le locataire est responsable de sa part proportionnelle des coûts d’électricité, en plus du loyer. 4. Plus l’électricité et le nettoyage: Un type de bail brut modifié dans lequel le locataire est responsable de sa part proportionnelle des coûts d’électricité et de nettoyage, en plus du loyer. 4. Plus les services publics et le nettoyage: Un type de bail brut modifié dans lequel le locataire est responsable de sa part proportionnelle des coûts des services publics et de nettoyage, en plus du loyer. 4. Bail industriel brut: Un type de bail brut modifié dans lequel le locataire paie un ou plusieurs des frais, en plus du loyer. Le propriétaire et le locataire déterminent ces frais spécifiques avant la signature du bail.
5. L’électricité est à la charge du locataire: Le propriétaire paie pour tous les services et le locataire est responsable de sa propre utilisation de l’éclairage et des prises électriques dans l’espace qu’il occupe.
6. Négociable ou sur demande: Cette option est utilisée lorsque le contact de location ne précise pas le type de loyer ou de service.
7. À déterminer: À déterminer ; utilisé pour les immeubles dont le type de services ou de loyer n’est pas connu, souvent quand l’immeuble n’est pas encore construit.
Faits sur la propriété
| Superficie totale disponible | 2 738 pi² | Superficie commerciale brute | 78 622 pi² |
| Type de centre | Centre de voisinage | Superficie totale du terrain | 19,90 AC |
| Stationnement | 1369 places | Année de construction | 1970 |
| Magasins | 28 | Rues transversales | US 50 S & Crusader Rd |
| Propriétés du centre | 7 |
| Superficie totale disponible | 2 738 pi² |
| Type de centre | Centre de voisinage |
| Stationnement | 1369 places |
| Magasins | 28 |
| Propriétés du centre | 7 |
| Superficie commerciale brute | 78 622 pi² |
| Superficie totale du terrain | 19,90 AC |
| Année de construction | 1970 |
| Rues transversales | US 50 S & Crusader Rd |
À propos de la propriété
Positioned in the heart of Cambridge, Maryland, Cambridge Marketplace offers a dynamic retail environment with strong regional connectivity. The center is just two hours from Washington D.C. and Baltimore, and four hours from New York City, making it a strategic location for businesses seeking visibility and accessibility across the Mid-Atlantic corridor. The property benefits from proximity to the University of Maryland Shore Regional Health and other community institutions, enhancing its appeal for service-oriented and lifestyle tenants. The storefront is modern and well-maintained, with high visibility from Cambridge Marketplace Avenue and Crusader Road.
Principaux détaillants à proximité
Présenté par
Cambridge Marketplace | 712 Cambridge Plz
Hmm, il semble y avoir eu une erreur lors de l’envoi de votre message. Veuillez réessayer.
Merci! Votre message a été envoyé.




