Se Connecter/S’inscrire
Votre courriel a été envoyé.
Certaines informations ont été traduites automatiquement.
Faits saillants de l'investissement
- Central location, favorable zoning
Résumé de l'annonce
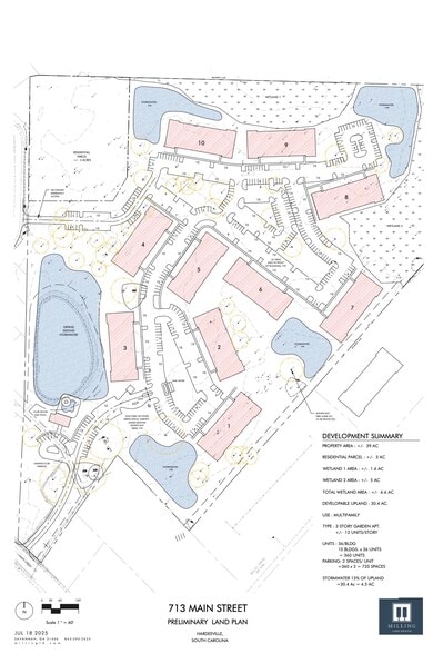
Superb multifamily location close to schools, jobs and new recreation center. Fully entitled and will be permitted for 360 units. Seller is handling the permitting process. Quick access to I-95 for Gulfstream, Hyundai, logistics and port jobs. 278 for office, hospitality and military jobs. Highway 17 for logistics & ocean terminal. Retiree demand from the two magnets of Del Webb and Margaritaville.
Faits sur la propriété
| Prix | 6 599 880 $ CAD | Sous-type de propriété | Terrain commercial |
| Type de vente | Investissement | Utilisation proposée | Unités d’appartements |
| Nombre de lots | 1 | Taille totale du lot | 36,00 AC |
| Type de propriété | Terrain | Zone de développement économique |
Oui
|
| Zonage | MF - MF approuvé pour 360 unités | ||
| Prix | 6 599 880 $ CAD |
| Type de vente | Investissement |
| Nombre de lots | 1 |
| Type de propriété | Terrain |
| Sous-type de propriété | Terrain commercial |
| Utilisation proposée | Unités d’appartements |
| Taille totale du lot | 36,00 AC |
| Zone de développement économique |
Oui |
| Zonage | MF - MF approuvé pour 360 unités |
1 Lot disponible
Lot
| Prix | 6 599 880 $ CAD | Taille du lot | 36,00 AC |
| Prix par AC | 183 330,01 $ CAD |
| Prix | 6 599 880 $ CAD |
| Prix par AC | 183 330,01 $ CAD |
| Taille du lot | 36,00 AC |
36 acres in prime downtown location, will be taken through site plan approval by 4/26 and permits by 8/26. 324 Units.
Description
Emplacement superbe au centre de Hardeeville avec un accès facile aux écoles et aux emplois.
1 1
Plutôt praticable à pied
30/100
Exceptionnellement facile d’accès en voiture
100/100
Assez praticable en vélo
20/100
1 de 2
Vidéos
Visite extérieure 3D Matterport
Visite 3D Matterport
Photos
Vue depuis la rue
Rue
Carte
1 de 1
Présenté par
713 Main St
Vous êtes déjà membre? Connectez-vous
Hmm, il semble y avoir eu une erreur lors de l’envoi de votre message. Veuillez réessayer.
Merci! Votre message a été envoyé.

