Se Connecter/S’inscrire
Votre courriel a été envoyé.
Certaines informations ont été traduites automatiquement.
Résumé de l'annonce
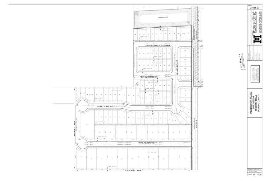
The approved subdivision layout includes 87 patio home lots measuring 36’ x 100’ and 20 four-plex building sites measuring 84’ x 125’, providing a balanced mix of housing options designed to meet the growing demand for attainable residential product. The development benefits from access to a shared 5-acre retention pond located on the north side of the property, which is already established and shared with an adjacent development, helping streamline infrastructure requirements.
With entitlement work completed and a defined development plan in place, this property presents an attractive opportunity to enter the market at an advanced stage while maintaining strong potential returns.
With entitlement work completed and a defined development plan in place, this property presents an attractive opportunity to enter the market at an advanced stage while maintaining strong potential returns.
Faits sur la propriété
1 Lot disponible
Lot
| Prix | 3 414 150 $ CAD | Taille du lot | 19,21 AC |
| Prix par AC | 177 727,74 $ CAD |
| Prix | 3 414 150 $ CAD |
| Prix par AC | 177 727,74 $ CAD |
| Taille du lot | 19,21 AC |
An exceptional opportunity to acquire a 19.21-acre undeveloped tract with an approved plat for 107 residential lots, offering investors and developers a clear path to construction and lot sales.
1 1
Assez praticable à pied
40/100
Exceptionnellement facile d’accès en voiture
100/100
Plutôt praticable en vélo
40/100
1 de 6
Vidéos
Visite extérieure 3D Matterport
Visite 3D Matterport
Photos
Vue depuis la rue
Rue
Carte
1 de 1
Présenté par
715 Walsh Ave
Vous êtes déjà membre? Connectez-vous
Hmm, il semble y avoir eu une erreur lors de l’envoi de votre message. Veuillez réessayer.
Merci! Votre message a été envoyé.



