Votre courriel a été envoyé.
716 E Hastings St 2 820–5 870 pi² d'espace disponible • Industriel • Vancouver, BC V6A 1R5



Certaines informations ont été traduites automatiquement.
FAITS SAILLANTS
- Commerce de détail à haute visibilité
- Deux niveaux d'espace industriel
- Espace de rangement au sous-sol
TOUS LES ESPACES DISPONIBLES(2)
Afficher les taux de location en
- ESPACE
- TAILLE
- TERME
- TAUX DE LOCATION
- UTILISATION DE L’ESPACE
- ÉTAT
- DISPONIBLE
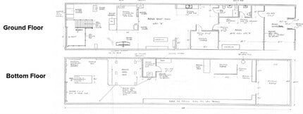
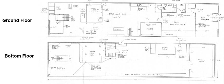
À proximité immédiate du centre-ville de Vancouver, ce bâtiment à haute visibilité est idéal pour tout utilisateur final, projet de développement ou investissement. Devenez propriétaire de cet immeuble industriel situé sur East Hastings Street à l'angle de Heatley Avenue à Vancouver. Ce bâtiment industriel à deux niveaux offre une façade commerciale très exposée le long de East Hastings Street. La porte de chargement arrière permet un accès au sous-sol ainsi qu'au rez-de-chaussée par un grand escalier intérieur.
- Le taux de location ne comprend pas les services publics, les services de bâtiment ou les dépenses immobilières.
- Entreposage sécurisé
- Deux niveaux d'espace industriel
- Commerce de détail à forte visibilité
- Peut être associé à un ou plusieurs espaces supplémentaires pour obtenir jusqu’à 5 870 pi² d’espace adjacent.
- Situé en ligne avec d’autres commerces de détail
- Espace pour stationner un véhicule à l'intérieur
- Espace de rangement au sous-sol
À proximité immédiate du centre-ville de Vancouver, ce bâtiment à haute visibilité est idéal pour tout utilisateur final, projet de développement ou investissement. Devenez propriétaire de cet immeuble industriel situé sur East Hastings Street à l'angle de Heatley Avenue à Vancouver. Ce bâtiment industriel à deux niveaux offre une façade commerciale très exposée le long de East Hastings Street. La porte de chargement arrière donne accès au sous-sol ainsi qu'au rez-de-chaussée par un grand escalier intérieur.
- Le taux de location ne comprend pas les services publics, les services de bâtiment ou les dépenses immobilières.
- Entreposage sécurisé
- Deux niveaux d'espace industriel
- Commerce de détail à haute visibilité
- Peut être associé à un ou plusieurs espaces supplémentaires pour obtenir jusqu’à 5 870 pi² d’espace adjacent.
- Situé en ligne avec d’autres commerces de détail
- Espace pour stationner un véhicule à l'intérieur
- Espace de rangement au sous-sol
| Espace | Taille | Terme | Taux de location | Utilisation de l’espace | État | Disponible |
| Sous-sol - 716 | 3 050 pi² | 1-10 ans | 15,00 $ CAD/pi²/an 1,25 $ CAD/pi²/mois 45 750 $ CAD/an 3 813 $ CAD/mois | Industriel | construction partielle | 30 jours |
| 1er étage - 716 | 2 820 pi² | 1-10 ans | 15,00 $ CAD/pi²/an 1,25 $ CAD/pi²/mois 42 300 $ CAD/an 3 525 $ CAD/mois | Industriel | construction partielle | 30 jours |
Sous-sol - 716
| Taille |
| 3 050 pi² |
| Terme |
| 1-10 ans |
| Taux de location |
| 15,00 $ CAD/pi²/an 1,25 $ CAD/pi²/mois 45 750 $ CAD/an 3 813 $ CAD/mois |
| Utilisation de l’espace |
| Industriel |
| État |
| construction partielle |
| Disponible |
| 30 jours |
1er étage - 716
| Taille |
| 2 820 pi² |
| Terme |
| 1-10 ans |
| Taux de location |
| 15,00 $ CAD/pi²/an 1,25 $ CAD/pi²/mois 42 300 $ CAD/an 3 525 $ CAD/mois |
| Utilisation de l’espace |
| Industriel |
| État |
| construction partielle |
| Disponible |
| 30 jours |
Sous-sol - 716
| Taille | 3 050 pi² |
| Terme | 1-10 ans |
| Taux de location | 15,00 $ CAD/pi²/an |
| Utilisation de l’espace | Industriel |
| État | construction partielle |
| Disponible | 30 jours |
À proximité immédiate du centre-ville de Vancouver, ce bâtiment à haute visibilité est idéal pour tout utilisateur final, projet de développement ou investissement. Devenez propriétaire de cet immeuble industriel situé sur East Hastings Street à l'angle de Heatley Avenue à Vancouver. Ce bâtiment industriel à deux niveaux offre une façade commerciale très exposée le long de East Hastings Street. La porte de chargement arrière permet un accès au sous-sol ainsi qu'au rez-de-chaussée par un grand escalier intérieur.
- Le taux de location ne comprend pas les services publics, les services de bâtiment ou les dépenses immobilières.
- Peut être associé à un ou plusieurs espaces supplémentaires pour obtenir jusqu’à 5 870 pi² d’espace adjacent.
- Entreposage sécurisé
- Situé en ligne avec d’autres commerces de détail
- Deux niveaux d'espace industriel
- Espace pour stationner un véhicule à l'intérieur
- Commerce de détail à forte visibilité
- Espace de rangement au sous-sol
1er étage - 716
| Taille | 2 820 pi² |
| Terme | 1-10 ans |
| Taux de location | 15,00 $ CAD/pi²/an |
| Utilisation de l’espace | Industriel |
| État | construction partielle |
| Disponible | 30 jours |
À proximité immédiate du centre-ville de Vancouver, ce bâtiment à haute visibilité est idéal pour tout utilisateur final, projet de développement ou investissement. Devenez propriétaire de cet immeuble industriel situé sur East Hastings Street à l'angle de Heatley Avenue à Vancouver. Ce bâtiment industriel à deux niveaux offre une façade commerciale très exposée le long de East Hastings Street. La porte de chargement arrière donne accès au sous-sol ainsi qu'au rez-de-chaussée par un grand escalier intérieur.
- Le taux de location ne comprend pas les services publics, les services de bâtiment ou les dépenses immobilières.
- Peut être associé à un ou plusieurs espaces supplémentaires pour obtenir jusqu’à 5 870 pi² d’espace adjacent.
- Entreposage sécurisé
- Situé en ligne avec d’autres commerces de détail
- Deux niveaux d'espace industriel
- Espace pour stationner un véhicule à l'intérieur
- Commerce de détail à haute visibilité
- Espace de rangement au sous-sol
APERÇU DE LA PROPRIÉTÉ
À proximité immédiate du centre-ville de Vancouver, ce bâtiment industriel à deux niveaux offre une façade commerciale très visible le long de la rue East Hastings.
FAITS SUR L’INSTALLATION ENTREPÔT
Présenté par
716 E Hastings St
Hmm, il semble y avoir eu une erreur lors de l’envoi de votre message. Veuillez réessayer.
Merci! Votre message a été envoyé.



