Votre courriel a été envoyé.
ALTO Building 718-720 3rd Ave 330 pi² d'espace disponible • Bureau • West Point, GA 31833


Certaines informations ont été traduites automatiquement.
Faits saillants
- Excellent emplacement au centre-ville, à proximité des restaurants, des banques, du bureau de poste et de l'hôtel de ville.
- Stationnement réservé à l'arrière de l'immeuble.
- Configurable pour les besoins des nouveaux locataires.
- Remarque : Cette annonce vient d'être publiée, et de nombreuses autres mises à jour et photos seront disponibles la semaine prochaine. - Jim
Tous les espaces disponibles(1)
Afficher les taux de location en
- Espace
- Taille
- Terme
- Taux de location
- Utilisation de l’espace
- Aménagement
- Disponible
This is a modern upstairs office suite located in downtown West Point. We have upstairs office spaces used by various businesses with easy access. We only solicit businesses who require quite spaces as these spaces are not for retail use. Visitors and customers are fine. Examples of many of our tenants or past tenants include Appraisal services, Sales offices, Lawyers, or remote office spaces for business's out of town, Office space when home space is not available or inconvenient. The upstairs space includes a Women's and Men's bathroom. Updates that might be required can be made with a 1-year commitment of the space. Basically, the lease is for $300 per month which includes utilities and light use Internet access. If a tenant requires a dedicated or high use Internet connection, it can be provided by a local ISP. Each office has its own dedicated breakers so that another office can't trip a breaker and affect your office space.
- Taux de location inscrit plus part proportionnelle des services publics
- Plafonds finis: 8’
- Air central et chauffage
- CVCA disponible après les heures de travail
- Planchers de bois franc
- $350/month
- Disposition intensive du bureau
- Espace en excellent état
- Plafond suspendu
- Éclairage d’urgence
- Détecteur de fumée
| Espace | Taille | Terme | Taux de location | Utilisation de l’espace | Aménagement | Disponible |
| 2e étage, ste 202 | 330 pi² | 1 an | 17,35 $ CAD/pi²/an 1,45 $ CAD/pi²/mois 5 724 $ CAD/an 477,01 $ CAD/mois | Bureau | construction complète | Maintenant |
2e étage, ste 202
| Taille |
| 330 pi² |
| Terme |
| 1 an |
| Taux de location |
| 17,35 $ CAD/pi²/an 1,45 $ CAD/pi²/mois 5 724 $ CAD/an 477,01 $ CAD/mois |
| Utilisation de l’espace |
| Bureau |
| Aménagement |
| construction complète |
| Disponible |
| Maintenant |
2e étage, ste 202
| Taille | 330 pi² |
| Terme | 1 an |
| Taux de location | 17,35 $ CAD/pi²/an |
| Utilisation de l’espace | Bureau |
| Aménagement | construction complète |
| Disponible | Maintenant |
This is a modern upstairs office suite located in downtown West Point. We have upstairs office spaces used by various businesses with easy access. We only solicit businesses who require quite spaces as these spaces are not for retail use. Visitors and customers are fine. Examples of many of our tenants or past tenants include Appraisal services, Sales offices, Lawyers, or remote office spaces for business's out of town, Office space when home space is not available or inconvenient. The upstairs space includes a Women's and Men's bathroom. Updates that might be required can be made with a 1-year commitment of the space. Basically, the lease is for $300 per month which includes utilities and light use Internet access. If a tenant requires a dedicated or high use Internet connection, it can be provided by a local ISP. Each office has its own dedicated breakers so that another office can't trip a breaker and affect your office space.
- Taux de location inscrit plus part proportionnelle des services publics
- Disposition intensive du bureau
- Plafonds finis: 8’
- Espace en excellent état
- Air central et chauffage
- Plafond suspendu
- CVCA disponible après les heures de travail
- Éclairage d’urgence
- Planchers de bois franc
- Détecteur de fumée
- $350/month
Aperçu de la propriété
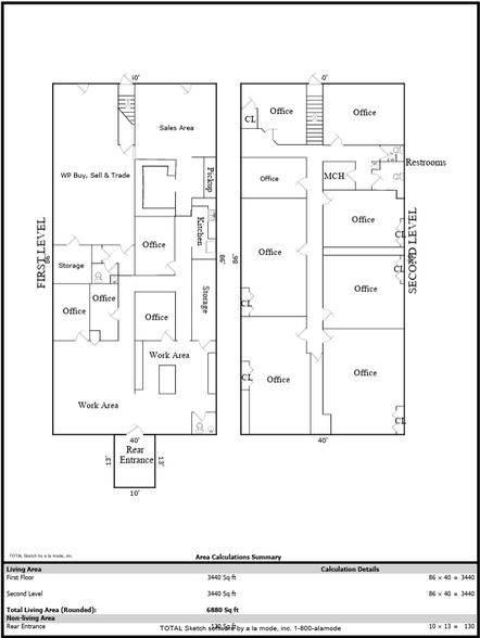
REMARQUE : Ce bâtiment vient d'être répertorié et beaucoup plus de détails et de photos seront ajoutés au cours de la semaine prochaine. Cet immeuble a été acheté par le propriétaire actuel en 1993 et a fait l'objet d'importantes mises à jour depuis lors. Il dispose actuellement de 2 suites au premier étage, la première se situant sur la façade de la rue du centre-ville de l'immeuble. Il est actuellement utilisé comme espace de vente au détail et a été modernisé en 2022. Elle mesure actuellement environ 1 400 pieds carrés. L'arrière de l'immeuble est utilisé par une entreprise de services avec un accès pratique et un stationnement à l'arrière. Elle est d'environ 2 000 pieds carrés. L'espace total était utilisé comme une suite jusqu'à il y a 3 ans et nous l'avons modifié à sa configuration actuelle à l'époque. Il a des espaces modernes à bascule en feuilles avec des plafonds suspendus et est entièrement conforme au code. Mes deux locataires actuels envisagent de déménager dans d'autres emplacements dans un avenir proche et, par conséquent, les options sont là pour aller de l'avant avec de nouvelles options ou configurations. J'ai également la possibilité de reconfigurer les 2 espaces pour qu'ils soient combinés, agrandissants ou contractuels pour répondre à un besoin potentiel pour un ou plusieurs nouveaux locataires. Cet immeuble est le meilleur emplacement de la ville car tout le monde sait où il se trouve, et il est pratique pour les restaurants, les banques, le bureau de poste, le magasin d'expédition et l'hôtel de ville. L'arrière a une porte de 4 pieds pour un accès facile et le stationnement est très pratique.
- Accès 24 heures
- Système de sécurité
- Affichage
- Accessible aux fauteuils roulants
- Réception
- Climatisation
- Détecteur de fumée
Faits sur la propriété
Présenté par
Duncan Properties
ALTO Building | 718-720 3rd Ave
Hmm, il semble y avoir eu une erreur lors de l’envoi de votre message. Veuillez réessayer.
Merci! Votre message a été envoyé.



