Se Connecter/S’inscrire
Votre courriel a été envoyé.
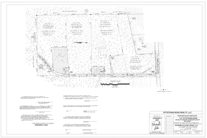
719 Pittstown Rd - 719 Pittstown Rd Lot • Terrain commercial • 8 Acres • 2 833 768 $ CAD • Frenchtown, NJ 08825



Certaines informations ont été traduites automatiquement.
Résumé de l'annonce
Cette parcelle fait partie d'une propriété de 38 acres avec un projet de lotissement de trois lots -- Bloc 49 proposé, lot 21.04, composé de 7 acres. Il s'agit d'un grand terrain d'angle avec façade sur la route 12 et le chemin Pittstown. L'une des rares parcelles à avoir un zonage commercial Sud. D'autres terrains pourraient être disponibles. Propriétaire en cours de lotissement. Grande exposition par la route 12. Adjoint le service de réparation automobile et de vente de voitures Wagner sur la route 12. Le propriétaire a une disposition conceptuelle pour un centre commercial Strip. Les utilisations comprennent : les magasins de détail et les magasins ; les mini-entrepôts ; les cabinets médicaux et les centres de garde d'enfants. Zonage joint aux documents.
Faits sur la propriété
| Prix | 2 833 768 $ CAD | Sous-type de propriété | Terrain commercial |
| Type de vente | Investissement | Utilisation proposée | Commercial |
| Nombre de lots | 1 | Taille totale du lot | 8,00 AC |
| Type de propriété | Terrain | ||
| Zonage | General Commercial - Voir les remarques | ||
| Prix | 2 833 768 $ CAD |
| Type de vente | Investissement |
| Nombre de lots | 1 |
| Type de propriété | Terrain |
| Sous-type de propriété | Terrain commercial |
| Utilisation proposée | Commercial |
| Taille totale du lot | 8,00 AC |
| Zonage | General Commercial - Voir les remarques |
1 Lot disponible
Lot 21.01-03
| Prix | 2 833 768 $ CAD | Taille du lot | 8,00 AC |
| Prix par AC | 354 221,02 $ CAD |
| Prix | 2 833 768 $ CAD |
| Prix par AC | 354 221,02 $ CAD |
| Taille du lot | 8,00 AC |
Parcel is part of a 38 acre subdivision: Lot 21.01, Block 49: Zoning: Agricultural; 8.02 Acres: $250,000 Lot 21.02, Block 49: Zoning: Agricultural; 10.06 Acres: $250,000 Lot 21.03, Block 49: Zoning: General Commercial; 19.01 Acres: $1,500,000
Description
Directions : NJ-31S jusqu'à Rt sur le boulevard Walter E. Foran ; à gauche sur la rue N. Main RT sur la rue Mine ; 1re sortie Circle vers NJ-12W ; RT sur Pittstown Road
1 1
Impraticable à pied
10/100
Exceptionnellement facile d’accès en voiture
100/100
Impraticable en vélo
10/100
1 de 4
Vidéos
Visite extérieure 3D Matterport
Visite 3D Matterport
Photos
Vue depuis la rue
Rue
Carte
1 de 1
Présenté par
719 Pittstown Rd - 719 Pittstown Rd
Vous êtes déjà membre? Connectez-vous
Hmm, il semble y avoir eu une erreur lors de l’envoi de votre message. Veuillez réessayer.
Merci! Votre message a été envoyé.
