Votre courriel a été envoyé.
72 Airport Dr Unités de condo • Flex • 2 329-2 825 pi² • À vendre 444 600 $ CAD par unité • Wappingers Falls, NY 12590



Certaines informations ont été traduites automatiquement.
Faits saillants de l'investissement
- Multi-Unit Industrial Park near Hudson Valley Regional Airport
- Units feature High-bay Warehouse w/ 14ft Drive-in Door, Office/Storage Rooms, Restroom
- Site features Municipal Water/Sewer, Natural Gas, Heavy Power
Résumé de l'annonce
72 Airport Drive Wappingers Falls is a multi-unit industrial condo complex located near Hudson Valley Airport in Dutchess County, N.Y. A two-building 12-unit complex, this site features municipal water/sewer, Natural Gas, heavy power, 14ft high drive-in doors, high-bay warehouses with at least two floors of offices and storage rooms. Airport Industrial zoning district allows for manufacturing, assembly and storage uses.
2 Unités disponibles
Unité 3
| Taille de l’unité | 2 329 pi² | Type de vente | Propriétaire utilisateur |
| Prix | 444 600 $ CAD | Nbre d’espaces de stationnement | 4 |
| Prix par pi² | 190,90 $ CAD | ID/Numéro de lot | 135689-6259-04-690453-0000 |
| Utilisation du condo | Flex |
| Taille de l’unité | 2 329 pi² |
| Prix | 444 600 $ CAD |
| Prix par pi² | 190,90 $ CAD |
| Utilisation du condo | Flex |
| Type de vente | Propriétaire utilisateur |
| Nbre d’espaces de stationnement | 4 |
| ID/Numéro de lot | 135689-6259-04-690453-0000 |
Description
Chaque unité a sa propre salle de bain
Notes sur la vente
Clean title; no liens. Owner willing to hold a note.
20260318_092710
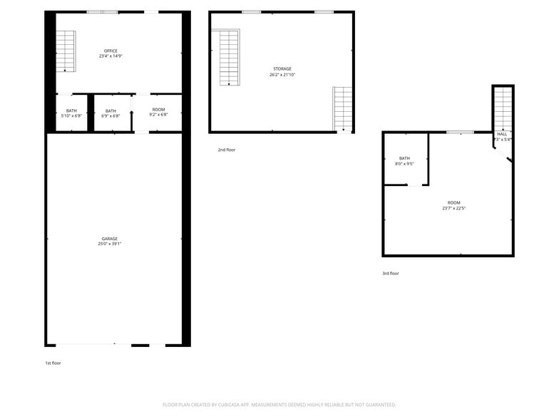
72 Airport Dr WF Unit 3 - FLOORPLANS
20260318_092721
20260318_092452
20260318_092434
20260318_092413
20260318_092403
20260318_092618
20260318_091732
Unité 4
| Taille de l’unité | 2 825 pi² | Type de vente | Propriétaire utilisateur |
| Prix | 444 600 $ CAD | Nbre d’espaces de stationnement | 4 |
| Prix par pi² | 157,38 $ CAD | ID/Numéro de lot | 135689-6259-04-689451-0000 |
| Utilisation du condo | Flex |
| Taille de l’unité | 2 825 pi² |
| Prix | 444 600 $ CAD |
| Prix par pi² | 157,38 $ CAD |
| Utilisation du condo | Flex |
| Type de vente | Propriétaire utilisateur |
| Nbre d’espaces de stationnement | 4 |
| ID/Numéro de lot | 135689-6259-04-689451-0000 |
Description
Chaque unité a sa propre salle de bain
Notes sur la vente
Clean title; no liens. Owner willing to hold a note.
20260318_091631
20260318_091640
72 Airport Drive WF Unit4 - FLOORPLANS
20260318_091532
20260318_091520
20260318_091458
20260318_091417
20260318_091434
20260318_091743
20260318_091712
Faits sur la propriété
Services publics
- Éclairage - Fluorescent
- Gaz - Naturel
- Eau - Comté
- Égout - Comté
- Chauffage - Gaz
Présenté par
72 Airport Dr
Hmm, il semble y avoir eu une erreur lors de l’envoi de votre message. Veuillez réessayer.
Merci! Votre message a été envoyé.


