Votre courriel a été envoyé.
720049 RR63 8 976 pi² Industriel Immeuble Clairmont, AB T0H 0W0 2 400 000 $ CAD (267,38 $ CAD/pi²)



Certaines informations ont été traduites automatiquement.
Faits saillants de l'investissement
- Terrain à exposition élevée — 3,16 acres avec une visibilité de premier choix près des principales autoroutes.
- Site extensible — Terrain entièrement clôturé, desservi et terrain supplémentaire disponible.
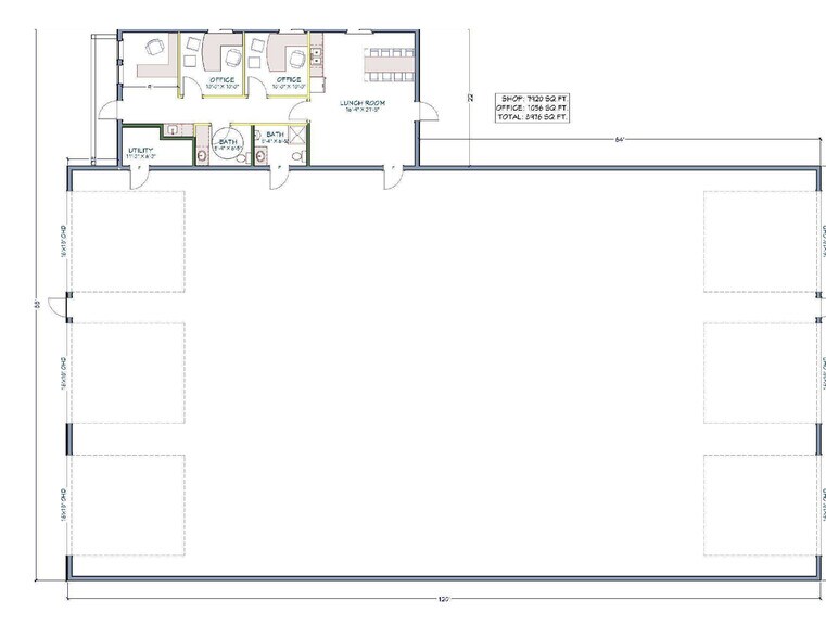
- Prêt pour l'emménagement — Nouvel atelier de 8 976 pieds carrés avec bureaux et 6 portes battantes.
Résumé de l'annonce
Faits sur la propriété
| Prix | 2 400 000 $ CAD | Taille du lot | 3,16 AC |
| Prix par pi² | 267,38 $ CAD | État de la construction | Proposé |
| Type de vente | Investissement ou propriétaire utilisateur | Aire du bâtiment louable | 8 976 pi² |
| Condition de vente | Option du bail | Nombre d’étages | 1 |
| Type de propriété | Industriel | Année de construction | 2026 |
| Sous-type de propriété | Entrepôt | Location | Unique |
| Classe d’immeuble | C | Nbre d’entrées dans les portes/au niveau du sol | 3 |
| Zonage | GC - Zone industrielle générale | ||
| Prix | 2 400 000 $ CAD |
| Prix par pi² | 267,38 $ CAD |
| Type de vente | Investissement ou propriétaire utilisateur |
| Condition de vente | Option du bail |
| Type de propriété | Industriel |
| Sous-type de propriété | Entrepôt |
| Classe d’immeuble | C |
| Taille du lot | 3,16 AC |
| État de la construction | Proposé |
| Aire du bâtiment louable | 8 976 pi² |
| Nombre d’étages | 1 |
| Année de construction | 2026 |
| Location | Unique |
| Nbre d’entrées dans les portes/au niveau du sol | 3 |
| Zonage | GC - Zone industrielle générale |
Commodités
- Cour
Disponibilité des espaces
- Espace
- Taille
- Utilisation de l’espace
- Aménagement
- Disponible
(3) BAIES DE SERVICE TRAVERSANTES DE 120' ET GRAND TERRAIN CLÔTURÉ, avec une façade de premier choix pour donner une excellente visibilité à votre entreprise sur cette route très achalandée. CONSTRUCTION TOUTE NEUVE avec 6 portes basculantes de 16' L x 18' H. Réception et 2 bureaux, plus salle de lunch / salle de réunion / vestiaire et salles de bain séparées pour l’atelier et les bureaux. Le terrain sera aménagé avec du gravier bien compacté et entièrement clôturé. Besoin de plus de terrain, d’un atelier plus grand ou de quelque chose sur mesure? Communiquez avec nous. Le terrain adjacent de 4,33 acres peut aussi être loué. Loyer de base de 16 456 $ par mois plus loyer additionnel de 3 740 $ = 20 196 $/mois plus TPS.
| Espace | Taille | Utilisation de l’espace | Aménagement | Disponible |
| 1er étage | 8 976 pi² | Industriel | construction complète | Maintenant |
1er étage
| Taille |
| 8 976 pi² |
| Utilisation de l’espace |
| Industriel |
| Aménagement |
| construction complète |
| Disponible |
| Maintenant |
1er étage
| Taille | 8 976 pi² |
| Utilisation de l’espace | Industriel |
| Aménagement | construction complète |
| Disponible | Maintenant |
(3) BAIES DE SERVICE TRAVERSANTES DE 120' ET GRAND TERRAIN CLÔTURÉ, avec une façade de premier choix pour donner une excellente visibilité à votre entreprise sur cette route très achalandée. CONSTRUCTION TOUTE NEUVE avec 6 portes basculantes de 16' L x 18' H. Réception et 2 bureaux, plus salle de lunch / salle de réunion / vestiaire et salles de bain séparées pour l’atelier et les bureaux. Le terrain sera aménagé avec du gravier bien compacté et entièrement clôturé. Besoin de plus de terrain, d’un atelier plus grand ou de quelque chose sur mesure? Communiquez avec nous. Le terrain adjacent de 4,33 acres peut aussi être loué. Loyer de base de 16 456 $ par mois plus loyer additionnel de 3 740 $ = 20 196 $/mois plus TPS.
Présenté par
720049 RR63
Hmm, il semble y avoir eu une erreur lors de l’envoi de votre message. Veuillez réessayer.
Merci! Votre message a été envoyé.
