Votre courriel a été envoyé.
Tuscan Village 7214 FM-1488 Rd 1 651–4 146 pi² d'espace disponible • Bureau/Commerce de détail • Magnolia, TX 77354



Certaines informations ont été traduites automatiquement.
Faits saillants
- FM 1488 Frontage
- Strong VPD’s Daily
- Close proximity to FM 2978
Disponibilité des espaces (2)
Afficher les taux de location en
- Espace
- Taille
- Terme
- Taux de location
- Type de loyer
| Espace | Taille | Terme | Taux de location | Type de loyer | ||
| 1er étage, ste 106 | 1 651 pi² | Négociable | 34,45 $ CAD/pi²/an 2,87 $ CAD/pi²/mois 56 883 $ CAD/an 4 740 $ CAD/mois | À déterminer | ||
| 1er étage, ste 108 | 2 495 pi² | Négociable | 34,45 $ CAD/pi²/an 2,87 $ CAD/pi²/mois 85 961 $ CAD/an 7 163 $ CAD/mois | À déterminer |
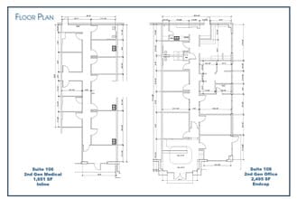
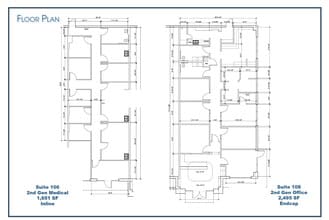
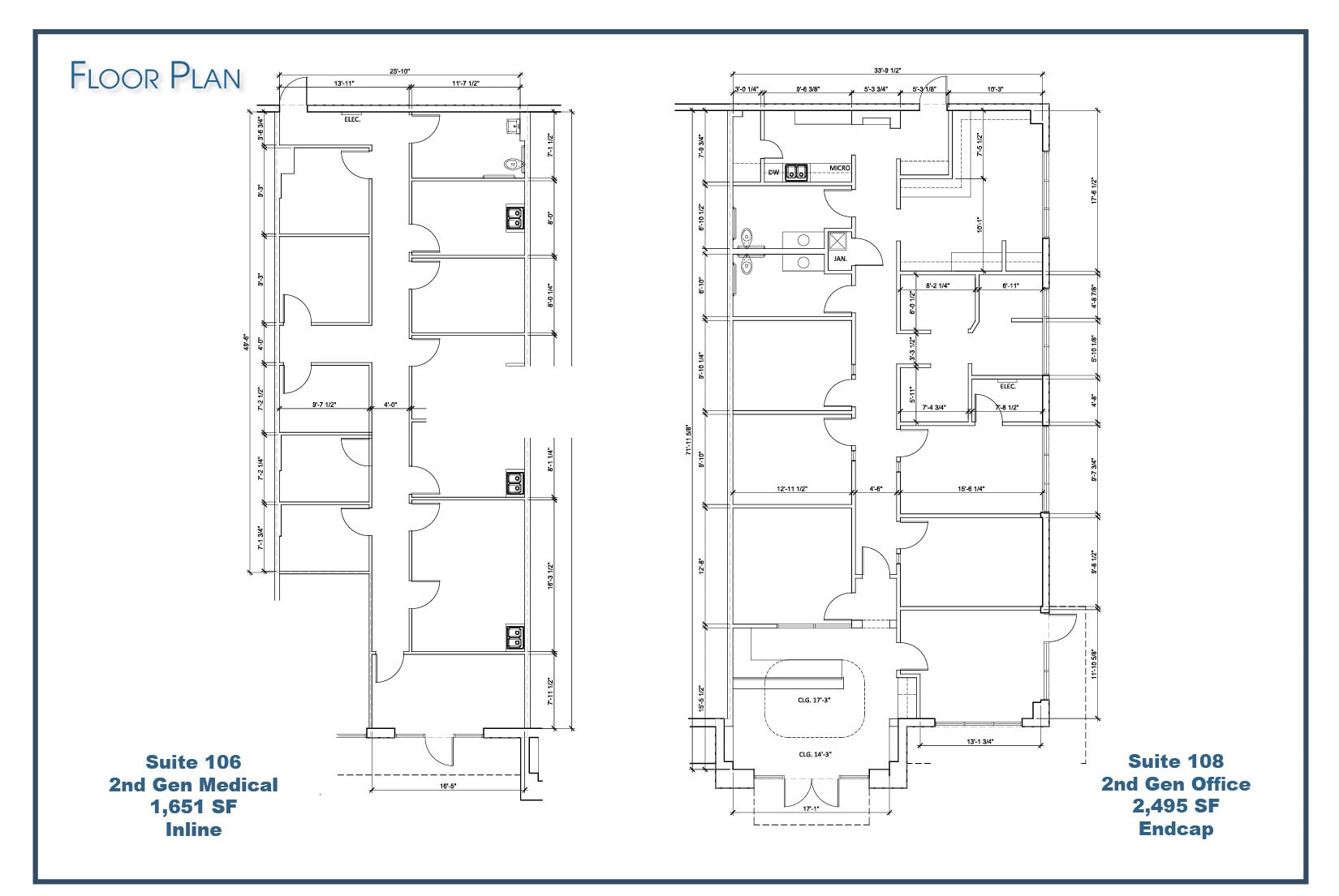
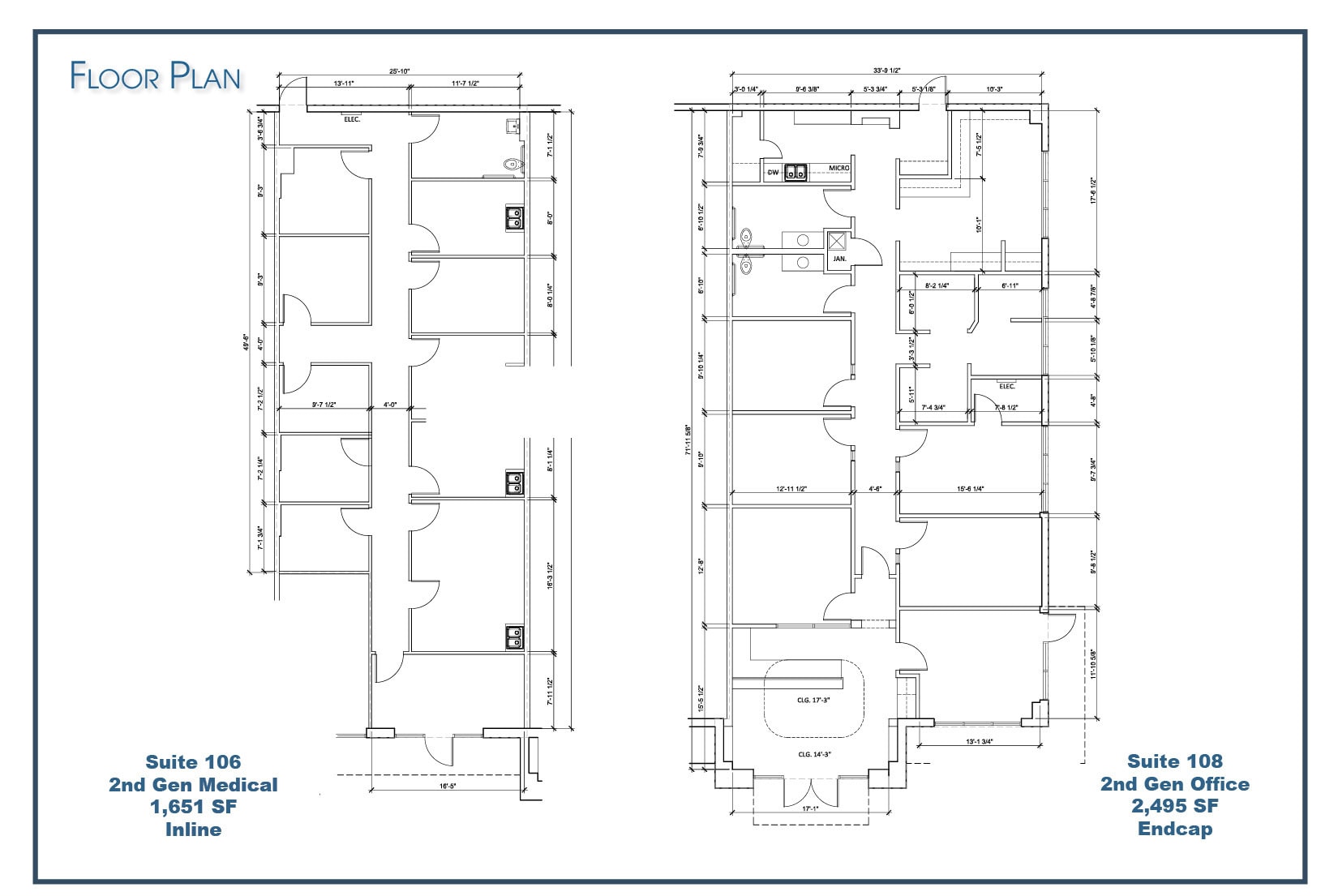
7214 FM-1488 Rd - 1er étage - ste 106
Former Medical / Diagnostics Location
- Partiellement construit comme Espace de commerce de détail standard
7214 FM-1488 Rd - 1er étage - ste 108
- Entièrement construit comme Bureau standard
Types de loyers
Le type et le montant du loyer que le locataire (preneur) est tenu de payer au propriétaire (bailleur) sur la durée du bail sont négociés avant la signature du bail par les deux parties. Le type de loyer varie selon les services fournis. Par exemple, le prix d’un loyer hypernet est habituellement inférieur à celui d’un bail à service complet puisque le locataire est tenu d’assumer des dépenses additionnelles par rapport au loyer de base. Contactez le courtier inscripteur pour tout connaître sur les frais connexes et additionnels associés à chaque type de loyer.
1. Service complet: Un taux de location qui comprend des services standards liés à l’immeuble fournis par le propriétaire dans le cadre d’une location annuelle de base.
2. Loyer supernet: Le locataire paie seulement deux des frais de l’immeuble. Le propriétaire et le locataire déterminent ces frais spécifiques avant la signature du bail.
3. Loyer hypernet: Un bail en vertu duquel le locataire est responsable de tous les frais liés à sa part proportionnelle d’occupation de l’immeuble.
4. Brut modifié: Le loyer brut modifié désigne un type général de taux de location dans lequel le locataire est habituellement responsable de sa part proportionnelle d’un ou de plusieurs frais. C’est le propriétaire qui paie les frais restants. Considérez les structures tarifaires courantes suivantes applicables aux loyers bruts modifiés: 4. Plus les services: Un type de bail brut modifié suivant lequel le locataire est responsable de sa part proportionnelle des coûts des services publics, en plus du loyer. 4. Plus le nettoyage: Un type de bail brut modifié suivant lequel le locataire est responsable de sa part proportionnelle des coûts de nettoyage, en plus du loyer. 4. Plus l'électricité: Un type de bail brut modifié suivant lequel le locataire est responsable de sa part proportionnelle des coûts d’électricité, en plus du loyer. 4. Plus l’électricité et le nettoyage: Un type de bail brut modifié dans lequel le locataire est responsable de sa part proportionnelle des coûts d’électricité et de nettoyage, en plus du loyer. 4. Plus les services publics et le nettoyage: Un type de bail brut modifié dans lequel le locataire est responsable de sa part proportionnelle des coûts des services publics et de nettoyage, en plus du loyer. 4. Bail industriel brut: Un type de bail brut modifié dans lequel le locataire paie un ou plusieurs des frais, en plus du loyer. Le propriétaire et le locataire déterminent ces frais spécifiques avant la signature du bail.
5. L’électricité est à la charge du locataire: Le propriétaire paie pour tous les services et le locataire est responsable de sa propre utilisation de l’éclairage et des prises électriques dans l’espace qu’il occupe.
6. Négociable ou sur demande: Cette option est utilisée lorsque le contact de location ne précise pas le type de loyer ou de service.
7. À déterminer: À déterminer ; utilisé pour les immeubles dont le type de services ou de loyer n’est pas connu, souvent quand l’immeuble n’est pas encore construit.
Plan de site
Sélectionner des locataires à Tuscan Village
- Locataire
- Description
- Emplacements US
- Portée
- Color Bar
- -
- 1
- -
- First American
- -
- 1
- -
- HearNow Hearing Aid Center
- Produits de santé et de beauté
- 3
- Local
- Planet Puff
- Détaillant
- 1
- -
- Red Flame Steakhouse
- Restaurant
- 1
- -
| Locataire | Description | Emplacements US | Portée |
| Color Bar | - | 1 | - |
| First American | - | 1 | - |
| HearNow Hearing Aid Center | Produits de santé et de beauté | 3 | Local |
| Planet Puff | Détaillant | 1 | - |
| Red Flame Steakhouse | Restaurant | 1 | - |
Faits sur la propriété
| Superficie totale disponible | 4 146 pi² | Propriétés du centre | 1 |
| Type de centre | Centre commercial à ciel ouvert | Superficie commerciale brute | 15 318 pi² |
| Stationnement | 40 places | Superficie totale du terrain | 1,61 AC |
| Magasins | 6 | Année de construction | 2007 |
| Superficie totale disponible | 4 146 pi² |
| Type de centre | Centre commercial à ciel ouvert |
| Stationnement | 40 places |
| Magasins | 6 |
| Propriétés du centre | 1 |
| Superficie commerciale brute | 15 318 pi² |
| Superficie totale du terrain | 1,61 AC |
| Année de construction | 2007 |
À propos de la propriété
± 4,146 SF Total Available For Lease FM 1488 Frontage End Cap Space 2nd Gen Retail Space Strong VPD’s Daily Close proximity to FM 2978
Principaux détaillants à proximité
Présenté par
Tuscan Village | 7214 FM-1488 Rd
Hmm, il semble y avoir eu une erreur lors de l’envoi de votre message. Veuillez réessayer.
Merci! Votre message a été envoyé.





