Se Connecter/S’inscrire
Votre courriel a été envoyé.
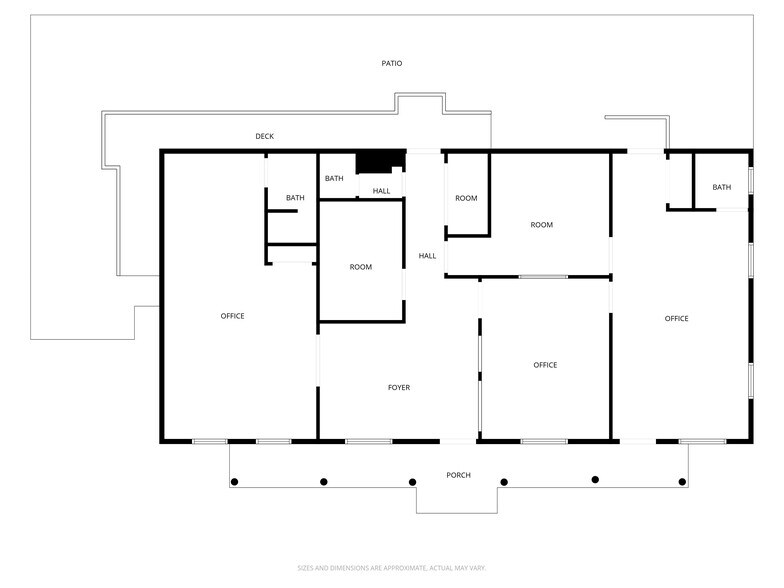
Hardy Street 723 Hardy St 1 953 pi² 100% Loué Bureau Immeuble Hattiesburg, MS 39401 320 117 $ CAD (163,91 $ CAD/pi²)



Certaines informations ont été traduites automatiquement.
Résumé de l'annonce
Well maintained commercial building currently set up for office use. Offering 5 offices spaces, a welcome lobby, 3 bathrooms, and 2 kitchenettes. The layout provides flexibility for a variety of business types, from professional services to small teams needing dedicated workspaces. For the past two years, the property has produced $2,500 per month in rental income, making it an appealing option for both investors and owner-operators. Buyer and buyers agent to verify all information.
Faits sur la propriété
Type de vente
Investissement ou propriétaire utilisateur
Type de propriété
Taille du bâtiment
1 953 pi²
Classe d’immeuble
C
Année de construction/rénovation
1985/2025
Prix
320 117 $ CAD
Prix par pi²
163,91 $ CAD
Pourcentage loué
100%
Hauteur du bâtiment
1 étage
Superficie de plancher typique
1 953 pi²
Coefficient d’occupation des sols de l’immeuble
0,26
Taille du lot
0,17 AC
Zonage
B2 - Quartier d'affaires de quartier
1 1
Impôts fonciers
| Numéro de lot | 2-029K-09-427.00 | Évaluation des bâtiments | 0 $ CAD |
| Évaluation du terrain | 0 $ CAD | Évaluation totale | 21 022 $ CAD |
Impôts fonciers
Numéro de lot
2-029K-09-427.00
Évaluation du terrain
0 $ CAD
Évaluation des bâtiments
0 $ CAD
Évaluation totale
21 022 $ CAD
1 de 18
Vidéos
Visite extérieure 3D Matterport
Visite 3D Matterport
Photos
Vue depuis la rue
Rue
Carte
1 de 1
Présenté par
Hardy Street | 723 Hardy St
Vous êtes déjà membre? Connectez-vous
Hmm, il semble y avoir eu une erreur lors de l’envoi de votre message. Veuillez réessayer.
Merci! Votre message a été envoyé.
Votre message a été envoyé !
Activez votre compte LoopNet dès maintenant pour suivre les propriétés, recevoir des alertes en temps réel, gagner du temps sur vos demandes futures et bien plus encore.
