Se Connecter/S’inscrire
Votre courriel a été envoyé.
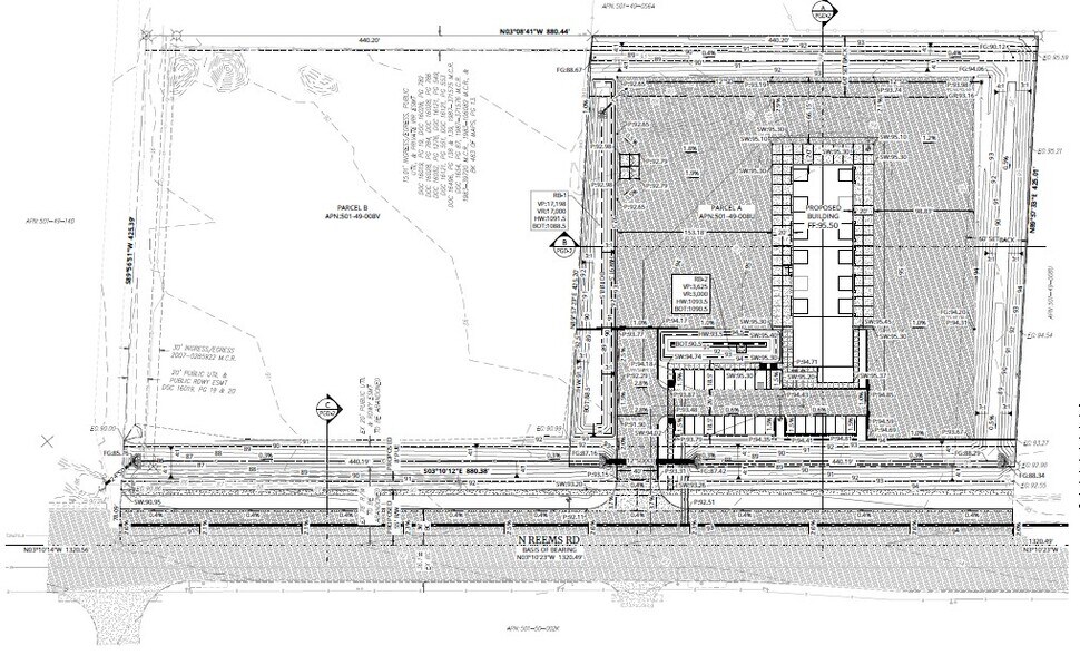
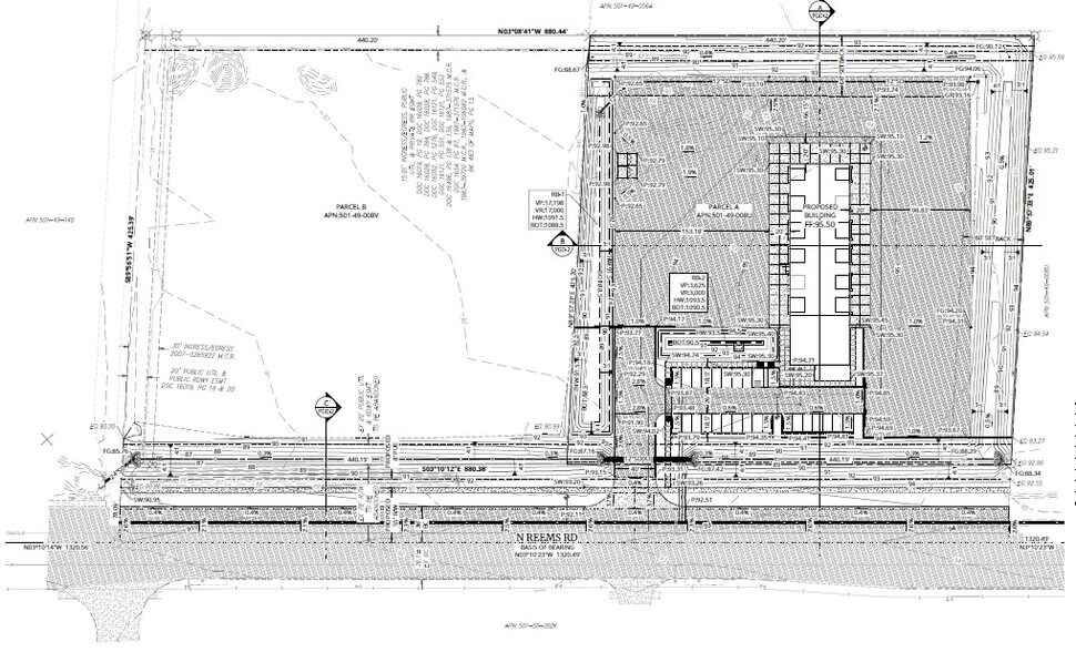
7250-7300 N Reems Rd - 4.3 or 8.6 Acres for BTS, Glendale, AZ Lot • Terrain industriel • 8,6 Acres • Litchfield Park, AZ 85340



Certaines informations ont été traduites automatiquement.
Résumé de l'annonce
Owner/Agent
Faits sur la propriété
1 Lot disponible
Lot
| Taille du lot | 8,60 AC |
| Taille du lot | 8,60 AC |
PAD, city of Glendale (Variable Industrial Outdoor Storage uses approved, comparable to M-1 zoning). Build to Suit opportunity, for lease only, not for sale. Owner will develop either a 4 or 8 acre site for an industrial user on a long term lease.
Description
PAD, city of Glendale (Variable Industrial Outdoor Storage uses approved, comparable to M-1 zoning). Build to Suit opportunity, for lease only, not for sale. Owner will develop either a 4 or 8 acre site for an industrial user on a long term lease. Owner/Agent.
1 1
Impraticable à pied
10/100
Exceptionnellement facile d’accès en voiture
100/100
Assez praticable en vélo
30/100
Impôts fonciers
| Numéros de lot | Évaluation des bâtiments | 0 $ CAD | |
| Évaluation du terrain | 41 699 $ CAD | Évaluation totale | 41 699 $ CAD |
Impôts fonciers
Numéros de lot
Évaluation du terrain
41 699 $ CAD
Évaluation des bâtiments
0 $ CAD
Évaluation totale
41 699 $ CAD
1 de 4
Vidéos
Visite extérieure 3D Matterport
Visite 3D Matterport
Photos
Vue depuis la rue
Rue
Carte
1 de 1
Présenté par
7250-7300 N Reems Rd - 4.3 or 8.6 Acres for BTS, Glendale, AZ
Vous êtes déjà membre? Connectez-vous
Hmm, il semble y avoir eu une erreur lors de l’envoi de votre message. Veuillez réessayer.
Merci! Votre message a été envoyé.
