Se Connecter/S’inscrire
Votre courriel a été envoyé.
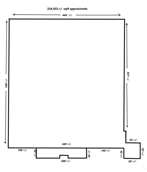
7301 Victory Blvd 234 832 pi² 100% Loué Industriel Immeuble Newport, AR 72112 6 397 528 $ CAD (27,24 $ CAD/pi²) 9,25% Taux de capitalisation



Certaines informations ont été traduites automatiquement.
Résumé de l'annonce
Property is leased to Bad Boy Mowers. Current lease started 11.1.25 and goes through 10.31.30 with one 5 year option for renewal at substantial increase. Tenant has invested around $1,000,000 in tenant improvements. Landlord has invested $1.5 million or so above acquisition price. This is an incredible value for the price.
Faits sur la propriété
| Prix | 6 397 528 $ CAD | Aire du bâtiment louable | 234 832 pi² |
| Prix par pi² | 27,24 $ CAD | Nombre d’étages | 1 |
| Type de vente | Investissement | Année de construction/rénovation | 1950/2021 |
| Taux de capitalisation | 9,25% | Effacer hauteur du plafond | 22’ |
| Condition de vente | Emphytéote (Frais de cession-bail) | Nbre de quais à portes élevées/de chargement | 11 |
| Type de propriété | Industriel | Nbre d’entrées dans les portes/au niveau du sol | 4 |
| Sous-type de propriété | Entrepôt | Zone de développement économique |
Oui
|
| Taille du lot | 23,50 AC | ||
| Zonage | Industrial - Industrielles | ||
| Prix | 6 397 528 $ CAD |
| Prix par pi² | 27,24 $ CAD |
| Type de vente | Investissement |
| Taux de capitalisation | 9,25% |
| Condition de vente | Emphytéote (Frais de cession-bail) |
| Type de propriété | Industriel |
| Sous-type de propriété | Entrepôt |
| Taille du lot | 23,50 AC |
| Aire du bâtiment louable | 234 832 pi² |
| Nombre d’étages | 1 |
| Année de construction/rénovation | 1950/2021 |
| Effacer hauteur du plafond | 22’ |
| Nbre de quais à portes élevées/de chargement | 11 |
| Nbre d’entrées dans les portes/au niveau du sol | 4 |
| Zone de développement économique |
Oui |
| Zonage | Industrial - Industrielles |
Commodités
- Terrain clôturé
- Espace d'entreposage
- Éclairage fluorescent
Services publics
- Éclairage - Fluorescent
- Gaz - Naturel
- Eau - Ville
- Égout - Ville
- Chauffage - Gaz
Principaux locataires Cliquez ici pour accéder à
- Locataire
- Secteur
- pi² Occupé
- Loyer/pi²
- Fin du bail
- Bad Boy Mowers
- Fabrication
- -
- -
-
Jan 0000
| Locataire | Secteur | pi² Occupé | Loyer/pi² | Fin du bail | ||
| Bad Boy Mowers | Fabrication | - | - | Jan 0000 |
1 1
Exceptionnellement facile d’accès en voiture
100/100
Assez praticable en vélo
30/100
Impôts fonciers
| Numéros de lot | Évaluation des bâtiments | 265 778 $ CAD | |
| Évaluation du terrain | 74 999 $ CAD | Évaluation totale | 340 777 $ CAD |
Impôts fonciers
Numéros de lot
Évaluation du terrain
74 999 $ CAD
Évaluation des bâtiments
265 778 $ CAD
Évaluation totale
340 777 $ CAD
1 de 19
Vidéos
Visite extérieure 3D Matterport
Visite 3D Matterport
Photos
Vue depuis la rue
Rue
Carte
1 de 1
Présenté par
7301 Victory Blvd
Vous êtes déjà membre? Connectez-vous
Hmm, il semble y avoir eu une erreur lors de l’envoi de votre message. Veuillez réessayer.
Merci! Votre message a été envoyé.
