Votre courriel a été envoyé.
7325 Douglas Rd 3 770–40 152 pi² d'espace disponible • Industriel • Lambertville, MI 48144



Certaines informations ont été traduites automatiquement.
Faits saillants
- Outside ramp available
- 4.65 miles to US 23
- Sterns Road has a weight limitation of 25 tons
- Located in Bedford Township
- The main truck route is Douglas Road to Alexis Road
Caractéristiques
Tous les espaces disponibles(1)
Afficher les taux de location en
- Espace
- Taille
- Terme
- Taux de location
- Utilisation de l’espace
- Aménagement
- Disponible
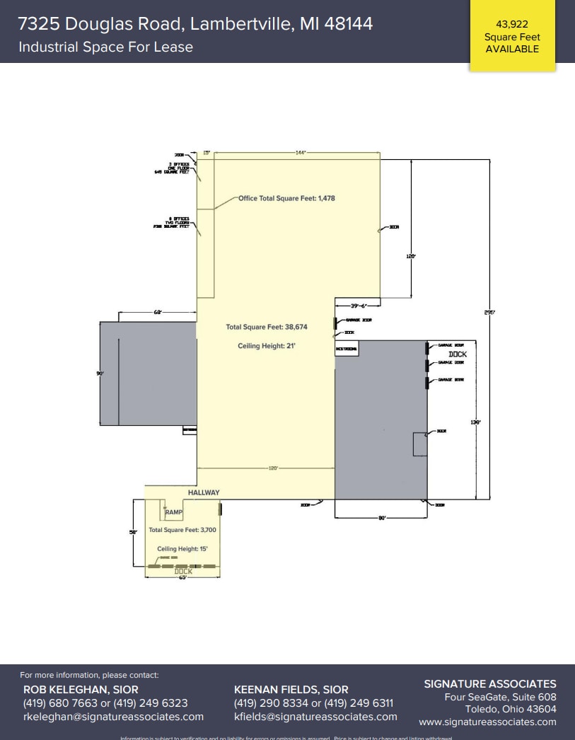
7325 Douglas Road in Lambertville, Michigan offers up to 40,152 SF of functional industrial space within a well-maintained 109,000 SF single-story facility. The property features a flexible layout with warehouse and office components, clear heights up to 21 feet, and robust 1200-amp, 480V, 3-phase power, making it well-suited for manufacturing, distribution, or light industrial users. The building is fully sprinklered, equipped with multiple dock positions and a drive-in door, and benefits from convenient access to US-23 via Sterns Road. Located in Bedford Township, the site provides efficient truck routing and ample on-site parking in a stable industrial corridor.
- Taux de location inscrit plus part proportionnelle des services publics
- 1 accès plain-pied
- Clear Heights up to 21’
- 4.65 miles to US-23 with established truck routes
- Comprend 1 478 pi² d’espace de bureau dédié
- 5 quais de chargement
- Heavy Power: 1200A / 480V / 3-Phase
- Outside ramp available
| Espace | Taille | Terme | Taux de location | Utilisation de l’espace | Aménagement | Disponible |
| 1er étage | 3 770 à 40 152 pi² | 3-5 ans | 8,22 $ CAD/pi²/an 0,68 $ CAD/pi²/mois 329 980 $ CAD/an 27 498 $ CAD/mois | Industriel | construction complète | 30 jours |
1er étage
| Taille |
| 3 770 à 40 152 pi² |
| Terme |
| 3-5 ans |
| Taux de location |
| 8,22 $ CAD/pi²/an 0,68 $ CAD/pi²/mois 329 980 $ CAD/an 27 498 $ CAD/mois |
| Utilisation de l’espace |
| Industriel |
| Aménagement |
| construction complète |
| Disponible |
| 30 jours |
1er étage
| Taille | 3 770 à 40 152 pi² |
| Terme | 3-5 ans |
| Taux de location | 8,22 $ CAD/pi²/an |
| Utilisation de l’espace | Industriel |
| Aménagement | construction complète |
| Disponible | 30 jours |
7325 Douglas Road in Lambertville, Michigan offers up to 40,152 SF of functional industrial space within a well-maintained 109,000 SF single-story facility. The property features a flexible layout with warehouse and office components, clear heights up to 21 feet, and robust 1200-amp, 480V, 3-phase power, making it well-suited for manufacturing, distribution, or light industrial users. The building is fully sprinklered, equipped with multiple dock positions and a drive-in door, and benefits from convenient access to US-23 via Sterns Road. Located in Bedford Township, the site provides efficient truck routing and ample on-site parking in a stable industrial corridor.
- Taux de location inscrit plus part proportionnelle des services publics
- Comprend 1 478 pi² d’espace de bureau dédié
- 1 accès plain-pied
- 5 quais de chargement
- Clear Heights up to 21’
- Heavy Power: 1200A / 480V / 3-Phase
- 4.65 miles to US-23 with established truck routes
- Outside ramp available
Aperçu de la propriété
The industrial facility at 7325 Douglas Road in Lambertville, Michigan is a 109,000-square-foot, single-story building situated on approximately 9.19 acres within Bedford Township’s I-3 General Industrial District. Constructed in 1962 and maintained in good condition, the property features block exterior walls, a steel joist structural system, and concrete floors throughout. The building offers a functional mix of warehouse and office space, with clear heights up to 21 feet in the main warehouse area and 15 feet in secondary space. It is fully sprinklered and equipped with heavy industrial power (1200-amp, 480V, three-phase), supporting a wide range of industrial operations. Loading capabilities include dock-high positions, a drive-in door, and an exterior ramp, complemented by 55 on-site parking spaces and two curb cuts for efficient circulation. The property benefits from established truck routes and convenient access to US-23 via Sterns Road, positioning it well within the regional industrial corridor.
Faits sur l’installation entrepôt
Sélectionner des locataires
- Étage
- Nom du locataire
- Secteur
- 1ᵉʳ
- Carrdan Corp
- Grossiste
- 1ᵉʳ
- Innovative Cargo Systems LLC
- Administration publique
- 1ᵉʳ
- K Tool Llc
- Détaillant
- 1ᵉʳ
- Riterug
- Détaillant
- 1ᵉʳ
- U.S. Specialty Gas And Supply, Llc
- Grossiste
- 1ᵉʳ
- Wheel Chair Carrier
- Grossiste
Présenté par
7325 Douglas Rd
Hmm, il semble y avoir eu une erreur lors de l’envoi de votre message. Veuillez réessayer.
Merci! Votre message a été envoyé.


