Votre courriel a été envoyé.
Certaines informations ont été traduites automatiquement.
Faits saillants du parc
- Pacific Guardian Center est une place conçue avec des espaces de cour ouverts, méticuleusement aménagés avec une caractéristique aquatique qui rehausse l'esthétique.
- Les locataires bénéficient de la gestion, de la planification et de la location sur place, de la sécurité 24 heures sur 24 et des professionnels de l'ingénierie, de l'entretien et de la conciergerie.
- Les affaires sont facilitées grâce aux services sur place, y compris un café assis, un dépanneur, un dépôt du courrier, des détails automobiles, des banques, des soins dentaires et des services optiques.
- Espaces de travail intégrés qui offrent aux locataires une variété d'options et de services pour les fournisseurs de télécommunications, ainsi que des salles de conférence et de réunion partagées.
- Faites l'expérience d'une technologie d'ascenseur efficace conçue pour transporter facilement les employés vers les bureaux en quelques secondes grâce à la répartition sophistiquée de destination.
- Accès pratique au quartier central des affaires d'Honolulu, aux bureaux du gouvernement fédéral, des États et des comtés et à tous les tribunaux.
Faits sur le parc
Afficher les taux de location en
- Espace
- Taille
- Terme
- Taux de location
- Utilisation de l’espace
- Aménagement
- Disponible
Ground floor space with courtyard frontage. 2 private office and open area.
- Entièrement construit comme Bureau standard
- 2 bureaux privés
- Convient pour 4 à 11 personnes
| Espace | Taille | Terme | Taux de location | Utilisation de l’espace | Aménagement | Disponible |
| 1er étage, ste 151 | 1 330 pi² | Négociable | Sur demande Sur demande Sur demande Sur demande | Bureau/Commerce de détail | construction complète | Maintenant |
733 Bishop St - 1er étage - ste 151
- Espace
- Taille
- Terme
- Taux de location
- Utilisation de l’espace
- Aménagement
- Disponible
Queen Street frontage with multiple private offices and kitchenette. High quality finishes
- Le taux de location n’inclut pas certaines dépenses immobilières
- Convient pour 7 à 22 personnes
- 1 salle de conférence
- Espace en excellent état
- Entreposage sécurisé
- Entrée du personnel du hall de la tour Mauka pour un accès facile
- Entièrement construit comme Bureau de services professionnels
- 4 bureaux privés
- 1 poste de travail
- Cuisine
- Façades de la rue Queen
Full floor availability with perimeter of offices, kitchen, reception area, conference room and open space
- Partiellement construit comme Bureau standard
- Convient pour 37 à 118 personnes
- Espace en excellent état
- Aire de réception
- Disposition du plan d’étage ouverte
- 1 salle de conférence
- Peut être associé à un ou plusieurs espaces supplémentaires pour obtenir jusqu’à 29 292 pi² d’espace adjacent.
- Cuisine
Full floor availability ready for space plan
- Partiellement construit comme Bureau standard
- Convient pour 37 à 117 personnes
- Disposition du plan d’étage ouverte
- Peut être associé à un ou plusieurs espaces supplémentaires pour obtenir jusqu’à 29 292 pi² d’espace adjacent.
Multiple offices with open area and available water
- Entièrement construit comme Bureau standard
- Convient pour 9 à 50 personnes
- Disposition intensive du bureau
- Peut être associé à un ou plusieurs espaces supplémentaires pour obtenir jusqu’à 15 059 pi² d’espace adjacent.
7 offices, reception area, conference room, and kitchen
- Entièrement construit comme Bureau standard
- 7 bureaux privés
- Aire de réception
- Convient pour 7 à 85 personnes
- Peut être associé à un ou plusieurs espaces supplémentaires pour obtenir jusqu’à 15 059 pi² d’espace adjacent.
- Cuisine
Open layout
- Entièrement construit comme Bureau standard
- Convient pour 7 à 50 personnes
- Plan ouvert
- Disposition du plan d’étage ouverte
- Peut être associé à un ou plusieurs espaces supplémentaires pour obtenir jusqu’à 15 059 pi² d’espace adjacent.
- Convient pour 14 à 43 personnes
Multiple private offices, conference room, kitchenette.
- Entièrement construit comme Bureau standard
- Convient pour 19 à 59 personnes
- Disposition intensive du bureau
1 private office, open space, and kitchen
- Entièrement construit comme Bureau standard
- 1 bureau privé
- Convient pour 7 à 23 personnes
- Cuisine
4 windowed private office.
- Entièrement construit comme Bureau standard
- Convient pour 4 à 10 personnes
- Disposition intensive du bureau
1 private office, open space and water
- Entièrement construit comme Bureau standard
- Convient pour 8 à 25 personnes
- Plan ouvert
- Disposition du plan d’étage ouverte en général
- 1 bureau privé
Open layout.
- Partiellement construit comme Bureau standard
- Convient pour 6 à 19 personnes
- Disposition du plan d’étage ouverte
- Plan ouvert
7 private offices
- Entièrement construit comme Bureau standard
- Convient pour 9 à 32 personnes
- 1 salle de conférence
- Clé en main
- Disposition du plan d’étage ouverte en général
- 7 bureaux privés
- 25 postes de travail
- Cuisine
Former law office with multiple private offices and conference rooms.
- Entièrement construit comme Bureau juridique
- Convient pour 14 à 43 personnes
- Disposition intensive du bureau
Shell space
- Disposition du plan d’étage ouverte
Former law office with dense window line office build out.
- Partiellement construit comme Bureau standard
- Convient pour 25 à 78 personnes
- Aire de réception
- Disposition du plan d’étage ouverte en général
- Salles de conférence
2 private window offices, interior conference room, and storage.
- Entièrement construit comme Bureau standard
- 2 bureaux privés
- Storage
- Convient pour 4 à 11 personnes
- Salles de conférence
| Espace | Taille | Terme | Taux de location | Utilisation de l’espace | Aménagement | Disponible |
| 1er étage, ste 116 | 2 725 pi² | Négociable | Sur demande Sur demande Sur demande Sur demande | Bureau | construction complète | Maintenant |
| 11e étage, ste 1100 | 14 719 pi² | Négociable | Sur demande Sur demande Sur demande Sur demande | Bureau | construction partielle | Maintenant |
| 12e étage, ste 1200 | 14 573 pi² | Négociable | Sur demande Sur demande Sur demande Sur demande | Bureau | construction partielle | Maintenant |
| 14e étage, ste 1400 | 3 479 à 6 149 pi² | Négociable | Sur demande Sur demande Sur demande Sur demande | Bureau | construction complète | Maintenant |
| 14e étage, ste 1430 | 2 761 pi² | Négociable | Sur demande Sur demande Sur demande Sur demande | Bureau | construction complète | Maintenant |
| 14e étage, ste 1480 | 2 670 à 6 149 pi² | Négociable | Sur demande Sur demande Sur demande Sur demande | Bureau | construction complète | Maintenant |
| 15e étage, ste 1550 | 5 324 pi² | Négociable | Sur demande Sur demande Sur demande Sur demande | Bureau | - | 2026-08-01 |
| 15e étage, ste 1590 | 7 345 pi² | Négociable | Sur demande Sur demande Sur demande Sur demande | Bureau | construction complète | 2026-06-01 |
| 16e étage, ste 1655 | 2 756 pi² | Négociable | Sur demande Sur demande Sur demande Sur demande | Bureau | construction complète | Maintenant |
| 18e étage, ste 1860 | 1 226 pi² | Négociable | Sur demande Sur demande Sur demande Sur demande | Bureau | construction complète | Maintenant |
| 18e étage, ste 1880 | 3 079 pi² | Négociable | Sur demande Sur demande Sur demande Sur demande | Bureau | construction complète | Maintenant |
| 19e étage, ste 1960 | 2 326 pi² | Négociable | Sur demande Sur demande Sur demande Sur demande | Bureau | construction partielle | Maintenant |
| 21e étage, ste 2115 | 3 924 pi² | Négociable | Sur demande Sur demande Sur demande Sur demande | Bureau | construction complète | Maintenant |
| 23e étage, ste 2340 | 5 271 pi² | Négociable | Sur demande Sur demande Sur demande Sur demande | Bureau | construction complète | Maintenant |
| 23e étage, ste 2390 | 5 159 pi² | Négociable | Sur demande Sur demande Sur demande Sur demande | Bureau | espace cloisonné | Maintenant |
| 24e étage, ste 2400 | 9 714 pi² | Négociable | Sur demande Sur demande Sur demande Sur demande | Bureau | construction partielle | Maintenant |
| 27e étage, ste 2790 | 1 285 pi² | Négociable | Sur demande Sur demande Sur demande Sur demande | Bureau | construction complète | Maintenant |
737 Bishop St - 1er étage - ste 116
737 Bishop St - 11e étage - ste 1100
737 Bishop St - 12e étage - ste 1200
737 Bishop St - 14e étage - ste 1400
737 Bishop St - 14e étage - ste 1430
737 Bishop St - 14e étage - ste 1480
737 Bishop St - 15e étage - ste 1550
737 Bishop St - 15e étage - ste 1590
737 Bishop St - 16e étage - ste 1655
737 Bishop St - 18e étage - ste 1860
737 Bishop St - 18e étage - ste 1880
737 Bishop St - 19e étage - ste 1960
737 Bishop St - 21e étage - ste 2115
737 Bishop St - 23e étage - ste 2340
737 Bishop St - 23e étage - ste 2390
737 Bishop St - 24e étage - ste 2400
737 Bishop St - 27e étage - ste 2790
- Espace
- Taille
- Terme
- Taux de location
- Utilisation de l’espace
- Aménagement
- Disponible
Ground floor space with courtyard frontage. 2 private office and open area.
- Entièrement construit comme Bureau standard
- 2 bureaux privés
- Convient pour 4 à 11 personnes
Nimitz/Alakea frontage. 1 private office and kitchenette
- Partiellement construit comme Bureau standard
- Convient pour 3 à 9 personnes
- Cuisine
- Disposition du plan d’étage ouverte en général
- 1 bureau privé
Courtyard entrance and includes water
- Partiellement construit comme Bureau standard
- Convient pour 3 à 9 personnes
- Plafonds finis: 9’6”
- Aire de réception
- Disposition du plan d’étage ouverte
- 1 salle de conférence
- Espace nécessitant des rénovations
3 private offices with a large conference room
- Entièrement construit comme Bureau standard
- 3 bureaux privés
- Convient pour 4 à 10 personnes
- 1 salle de conférence
3 private offices, 2 large conference rooms, kitchenette.
- Entièrement construit comme Bureau standard
- 3 bureaux privés
- Cuisine
- Convient pour 7 à 23 personnes
- 2 salles de conférence
3 large private offices and open area.
- Entièrement construit comme Bureau standard
- 3 bureaux privés
- Convient pour 4 à 10 personnes
3 private offices
- Entièrement construit comme Bureau standard
- 3 bureaux privés
- Convient pour 4 à 13 personnes
Open layout
- Entièrement construit comme Bureau standard
- Convient pour 3 à 7 personnes
- Disposition du plan d’étage ouverte
Open layout
- Entièrement construit comme Bureau standard
- Convient pour 10 à 46 personnes
- Disposition du plan d’étage ouverte
5 window line offices and 2 interior offices.
- Entièrement construit comme Bureau standard
- 7 bureaux privés
- Convient pour 6 à 46 personnes
- Lumière naturelle
3 window offices and 2 interior offices.
- Entièrement construit comme Bureau standard
- 5 bureaux privés
- Convient pour 4 à 12 personnes
- Lumière naturelle
Private offices, conference rooms, kitchenette with excellent views. Turn key opportunity with furniture included
- Entièrement construit comme Bureau standard
- Convient pour 15 à 47 personnes
- Disposition intensive du bureau
- Convient pour 12 à 37 personnes
3 private offices and kitchenette
- Entièrement construit comme Bureau standard
- 3 bureaux privés
- Convient pour 4 à 10 personnes
Upgraded suite with ocean front view, 2 private offices, new paint, carpet and LED lights, and kitchenette
- Disposition du plan d’étage ouverte en général
- 2 bureaux privés
- Cuisine
- Convient pour 4 à 12 personnes
- Espace en excellent état
Multiple private offices, conference room, and kitchenette with excellent views.
- Entièrement construit comme Bureau standard
- Convient pour 17 à 54 personnes
- Disposition intensive du bureau
6 private offices, conference room, and storage room.
- Entièrement construit comme Bureau standard
- 6 bureaux privés
- Convient pour 8 à 24 personnes
- 1 salle de conférence
5 private offices, kitchen, conference room, and open space
- Entièrement construit comme Bureau standard
- 5 bureaux privés
- Cuisine
- Convient pour 4 à 12 personnes
- Salles de conférence
3 offices and open area
- Entièrement construit comme Bureau standard
- 3 bureaux privés
- Convient pour 3 à 9 personnes
Open layout
- Entièrement construit comme Bureau standard
- Convient pour 4 à 11 personnes
- Plan ouvert
- Disposition du plan d’étage ouverte
- Espace en excellent état
1 private office and an open layout.
- Entièrement construit comme Bureau standard
- Convient pour 4 à 11 personnes
- Plan ouvert
- Disposition du plan d’étage ouverte en général
- 1 bureau privé
High floor, Corner unit, open area with new ceiling and lights
- Disposition du plan d’étage ouverte
- Espace en coin
- Espace nécessitant des rénovations
Full floor opportunity.
- Partiellement construit comme Bureau standard
- Convient pour 38 à 120 personnes
- Disposition du plan d’étage ouverte en général
| Espace | Taille | Terme | Taux de location | Utilisation de l’espace | Aménagement | Disponible |
| 1er étage, ste 151 | 1 330 pi² | Négociable | Sur demande Sur demande Sur demande Sur demande | Bureau/Commerce de détail | construction complète | Maintenant |
| 1er étage, ste 170 | 1 090 pi² | Négociable | Sur demande Sur demande Sur demande Sur demande | Bureau | construction partielle | Maintenant |
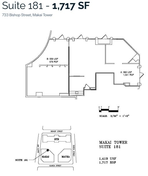
| 1er étage, ste 181 | 1 041 pi² | Négociable | Sur demande Sur demande Sur demande Sur demande | Bureau | construction partielle | Maintenant |
| 11e étage, ste 1170 | 1 244 pi² | Négociable | Sur demande Sur demande Sur demande Sur demande | Bureau | construction complète | Maintenant |
| 12e étage, ste 1270 | 2 800 pi² | Négociable | Sur demande Sur demande Sur demande Sur demande | Bureau | construction complète | Maintenant |
| 12e étage, ste 1290 | 1 220 pi² | Négociable | Sur demande Sur demande Sur demande Sur demande | Bureau | construction complète | Maintenant |
| 15e étage, ste 1520 | 1 549 pi² | Négociable | Sur demande Sur demande Sur demande Sur demande | Bureau | construction complète | Maintenant |
| 15e étage, ste 1565 | 863 pi² | Négociable | Sur demande Sur demande Sur demande Sur demande | Bureau | construction complète | Maintenant |
| 17e étage, ste 1750 | 3 695 à 5 706 pi² | Négociable | Sur demande Sur demande Sur demande Sur demande | Bureau | construction complète | Maintenant |
| 17e étage, ste 1770 | 2 011 à 5 706 pi² | Négociable | Sur demande Sur demande Sur demande Sur demande | Bureau | construction complète | Maintenant |
| 18e étage, ste 1872 | 1 432 pi² | Négociable | Sur demande Sur demande Sur demande Sur demande | Bureau | construction complète | Maintenant |
| 20e étage, ste 2000 | 5 767 pi² | Négociable | Sur demande Sur demande Sur demande Sur demande | Bureau | construction complète | 2026-08-01 |
| 21e étage, ste 2100/2120 | 4 565 pi² | Négociable | Sur demande Sur demande Sur demande Sur demande | Bureau | - | 2026-07-01 |
| 21e étage, ste 2160 | 1 223 pi² | Négociable | Sur demande Sur demande Sur demande Sur demande | Bureau | construction complète | Maintenant |
| 23e étage, ste 2300 | 1 496 pi² | Négociable | Sur demande Sur demande Sur demande Sur demande | Bureau | selon spécifications | Maintenant |
| 23e étage, ste 2301 | 6 724 pi² | Négociable | Sur demande Sur demande Sur demande Sur demande | Bureau | construction complète | Maintenant |
| 23e étage, ste 2357 | 2 882 pi² | Négociable | Sur demande Sur demande Sur demande Sur demande | Bureau | construction complète | Maintenant |
| 23e étage, ste 2390 | 1 464 pi² | Négociable | Sur demande Sur demande Sur demande Sur demande | Bureau | construction complète | Maintenant |
| 25e étage, ste 2555 | 1 042 pi² | Négociable | Sur demande Sur demande Sur demande Sur demande | Bureau | construction complète | Maintenant |
| 25e étage, ste 2560 | 1 342 pi² | Négociable | Sur demande Sur demande Sur demande Sur demande | Bureau | construction complète | Maintenant |
| 29e étage, ste 2945 | 1 346 pi² | Négociable | Sur demande Sur demande Sur demande Sur demande | Bureau | construction complète | Maintenant |
| 29e étage, ste 2950 | 3 597 pi² | Négociable | Sur demande Sur demande Sur demande Sur demande | Bureau | espace cloisonné | Maintenant |
| 30e étage, ste 3000 | 14 994 pi² | Négociable | Sur demande Sur demande Sur demande Sur demande | Bureau | construction partielle | 2027-01-01 |
733 Bishop St - 1er étage - ste 151
733 Bishop St - 1er étage - ste 170
733 Bishop St - 1er étage - ste 181
733 Bishop St - 11e étage - ste 1170
733 Bishop St - 12e étage - ste 1270
733 Bishop St - 12e étage - ste 1290
733 Bishop St - 15e étage - ste 1520
733 Bishop St - 15e étage - ste 1565
733 Bishop St - 17e étage - ste 1750
733 Bishop St - 17e étage - ste 1770
733 Bishop St - 18e étage - ste 1872
733 Bishop St - 20e étage - ste 2000
733 Bishop St - 21e étage - ste 2100/2120
733 Bishop St - 21e étage - ste 2160
733 Bishop St - 23e étage - ste 2300
733 Bishop St - 23e étage - ste 2301
733 Bishop St - 23e étage - ste 2357
733 Bishop St - 23e étage - ste 2390
733 Bishop St - 25e étage - ste 2555
733 Bishop St - 25e étage - ste 2560
733 Bishop St - 29e étage - ste 2945
733 Bishop St - 29e étage - ste 2950
733 Bishop St - 30e étage - ste 3000
- Espace
- Taille
- Terme
- Taux de location
- Utilisation de l’espace
- Aménagement
- Disponible
Open office
- Entièrement construit comme Bureau standard
- Convient pour 1 à 3 personnes
- Disposition du plan d’étage ouverte
- Plan ouvert
Open layout. Available May 1, 2025
- Entièrement construit comme Bureau standard
- Convient pour 2 à 5 personnes
- Disposition du plan d’étage ouverte
3 private offices, conference room, kitchenette, and open work area
- Entièrement construit comme Bureau standard
- 3 bureaux privés
- Cuisine
- Convient pour 8 à 26 personnes
- 1 salle de conférence
1 private office
- Entièrement construit comme Bureau standard
- 1 bureau privé
- Convient pour 2 à 4 personnes
Open layout
- Entièrement construit comme Bureau standard
- Convient pour 2 à 4 personnes
- Disposition du plan d’étage ouverte
1 private office with a sink
- Entièrement construit comme Bureau standard
- 1 bureau privé
- Convient pour 1 à 3 personnes
Conference room, open work areas, and kitchnette
- Convient pour 6 à 17 personnes
- 1 salle de conférence
- Aire de réception
- Entreposage sécurisé
- 3 bureaux privés
- 1 poste de travail
- Cuisine
- Lumière naturelle
Open layout
- Entièrement construit comme Bureau standard
- Convient pour 5 à 14 personnes
- Disposition du plan d’étage ouverte
1 private office
- Entièrement construit comme Bureau standard
- 1 bureau privé
- Aire de réception
- Convient pour 2 à 5 personnes
- Espace en excellent état
- Vues sur le jardin
- Convient pour 2 à 6 personnes
- Convient pour 3 à 7 personnes
Large open area and 1 private office.
- Entièrement construit comme Bureau standard
- Convient pour 1 à 3 personnes
- Disposition du plan d’étage ouverte en général
- 1 bureau privé
1 private office
- Entièrement construit comme Bureau standard
- Convient pour 2 à 6 personnes
- Disposition intensive du bureau
- Entièrement construit comme Bureau standard
- Convient pour 2 à 6 personnes
- Disposition intensive du bureau
Available 3/1/26
- Partiellement construit comme Bureau standard
- Convient pour 2 à 6 personnes
- Disposition intensive du bureau
| Espace | Taille | Terme | Taux de location | Utilisation de l’espace | Aménagement | Disponible |
| 2e étage, ste 215 | 314 pi² | Négociable | Sur demande Sur demande Sur demande Sur demande | Bureau | construction complète | Maintenant |
| 2e étage, ste 226 | 532 pi² | Négociable | Sur demande Sur demande Sur demande Sur demande | Bureau | construction complète | Maintenant |
| 2e étage, ste 230 | 3 170 pi² | Négociable | Sur demande Sur demande Sur demande Sur demande | Bureau | construction complète | Maintenant |
| 2e étage, ste 233 | 499 pi² | Négociable | Sur demande Sur demande Sur demande Sur demande | Bureau | construction complète | Maintenant |
| 3e étage, ste 314 | 402 pi² | Négociable | Sur demande Sur demande Sur demande Sur demande | Bureau | construction complète | Maintenant |
| 3e étage, ste 315 | 317 pi² | Négociable | Sur demande Sur demande Sur demande Sur demande | Bureau | construction complète | Maintenant |
| 3e étage, ste 330 | 2 092 pi² | Négociable | Sur demande Sur demande Sur demande Sur demande | Bureau | selon spécifications | Maintenant |
| 3e étage, ste 333 | 1 669 pi² | Négociable | Sur demande Sur demande Sur demande Sur demande | Bureau | construction complète | Maintenant |
| 3e étage, ste 336 | 533 pi² | Négociable | Sur demande Sur demande Sur demande Sur demande | Bureau | construction complète | Maintenant |
| 3e étage, ste 337 | 710 pi² | Négociable | Sur demande Sur demande Sur demande Sur demande | Bureau | - | 2026-06-01 |
| 4e étage, ste 400 | 841 pi² | Négociable | Sur demande Sur demande Sur demande Sur demande | Bureau | - | Maintenant |
| 4e étage, ste 415 | 316 pi² | Négociable | Sur demande Sur demande Sur demande Sur demande | Bureau | construction complète | Maintenant |
| 4e étage, ste 432 | 632 pi² | Négociable | Sur demande Sur demande Sur demande Sur demande | Bureau | construction complète | Maintenant |
| 4e étage, ste 437 | 716 pi² | Négociable | Sur demande Sur demande Sur demande Sur demande | Bureau | construction complète | Maintenant |
| 4e étage, ste 437 | 716 pi² | Négociable | Sur demande Sur demande Sur demande Sur demande | Bureau | construction partielle | Maintenant |
735 Bishop St - 2e étage - ste 215
735 Bishop St - 2e étage - ste 226
735 Bishop St - 2e étage - ste 230
735 Bishop St - 2e étage - ste 233
735 Bishop St - 3e étage - ste 314
735 Bishop St - 3e étage - ste 315
735 Bishop St - 3e étage - ste 330
735 Bishop St - 3e étage - ste 333
735 Bishop St - 3e étage - ste 336
735 Bishop St - 3e étage - ste 337
735 Bishop St - 4e étage - ste 400
735 Bishop St - 4e étage - ste 415
735 Bishop St - 4e étage - ste 432
735 Bishop St - 4e étage - ste 437
735 Bishop St - 4e étage - ste 437
737 Bishop St - 1er étage - ste 116
| Taille | 2 725 pi² |
| Terme | Négociable |
| Taux de location | Sur demande |
| Utilisation de l’espace | Bureau |
| Aménagement | construction complète |
| Disponible | Maintenant |
Queen Street frontage with multiple private offices and kitchenette. High quality finishes
- Le taux de location n’inclut pas certaines dépenses immobilières
- Entièrement construit comme Bureau de services professionnels
- Convient pour 7 à 22 personnes
- 4 bureaux privés
- 1 salle de conférence
- 1 poste de travail
- Espace en excellent état
- Cuisine
- Entreposage sécurisé
- Façades de la rue Queen
- Entrée du personnel du hall de la tour Mauka pour un accès facile
737 Bishop St - 11e étage - ste 1100
| Taille | 14 719 pi² |
| Terme | Négociable |
| Taux de location | Sur demande |
| Utilisation de l’espace | Bureau |
| Aménagement | construction partielle |
| Disponible | Maintenant |
Full floor availability with perimeter of offices, kitchen, reception area, conference room and open space
- Partiellement construit comme Bureau standard
- Disposition du plan d’étage ouverte
- Convient pour 37 à 118 personnes
- 1 salle de conférence
- Espace en excellent état
- Peut être associé à un ou plusieurs espaces supplémentaires pour obtenir jusqu’à 29 292 pi² d’espace adjacent.
- Aire de réception
- Cuisine
737 Bishop St - 12e étage - ste 1200
| Taille | 14 573 pi² |
| Terme | Négociable |
| Taux de location | Sur demande |
| Utilisation de l’espace | Bureau |
| Aménagement | construction partielle |
| Disponible | Maintenant |
Full floor availability ready for space plan
- Partiellement construit comme Bureau standard
- Disposition du plan d’étage ouverte
- Convient pour 37 à 117 personnes
- Peut être associé à un ou plusieurs espaces supplémentaires pour obtenir jusqu’à 29 292 pi² d’espace adjacent.
737 Bishop St - 14e étage - ste 1400
| Taille | 3 479 à 6 149 pi² |
| Terme | Négociable |
| Taux de location | Sur demande |
| Utilisation de l’espace | Bureau |
| Aménagement | construction complète |
| Disponible | Maintenant |
Multiple offices with open area and available water
- Entièrement construit comme Bureau standard
- Disposition intensive du bureau
- Convient pour 9 à 50 personnes
- Peut être associé à un ou plusieurs espaces supplémentaires pour obtenir jusqu’à 15 059 pi² d’espace adjacent.
737 Bishop St - 14e étage - ste 1430
| Taille | 2 761 pi² |
| Terme | Négociable |
| Taux de location | Sur demande |
| Utilisation de l’espace | Bureau |
| Aménagement | construction complète |
| Disponible | Maintenant |
7 offices, reception area, conference room, and kitchen
- Entièrement construit comme Bureau standard
- Convient pour 7 à 85 personnes
- 7 bureaux privés
- Peut être associé à un ou plusieurs espaces supplémentaires pour obtenir jusqu’à 15 059 pi² d’espace adjacent.
- Aire de réception
- Cuisine
737 Bishop St - 14e étage - ste 1480
| Taille | 2 670 à 6 149 pi² |
| Terme | Négociable |
| Taux de location | Sur demande |
| Utilisation de l’espace | Bureau |
| Aménagement | construction complète |
| Disponible | Maintenant |
Open layout
- Entièrement construit comme Bureau standard
- Disposition du plan d’étage ouverte
- Convient pour 7 à 50 personnes
- Peut être associé à un ou plusieurs espaces supplémentaires pour obtenir jusqu’à 15 059 pi² d’espace adjacent.
- Plan ouvert
737 Bishop St - 15e étage - ste 1550
| Taille | 5 324 pi² |
| Terme | Négociable |
| Taux de location | Sur demande |
| Utilisation de l’espace | Bureau |
| Aménagement | - |
| Disponible | 2026-08-01 |
- Convient pour 14 à 43 personnes
737 Bishop St - 15e étage - ste 1590
| Taille | 7 345 pi² |
| Terme | Négociable |
| Taux de location | Sur demande |
| Utilisation de l’espace | Bureau |
| Aménagement | construction complète |
| Disponible | 2026-06-01 |
Multiple private offices, conference room, kitchenette.
- Entièrement construit comme Bureau standard
- Disposition intensive du bureau
- Convient pour 19 à 59 personnes
737 Bishop St - 16e étage - ste 1655
| Taille | 2 756 pi² |
| Terme | Négociable |
| Taux de location | Sur demande |
| Utilisation de l’espace | Bureau |
| Aménagement | construction complète |
| Disponible | Maintenant |
1 private office, open space, and kitchen
- Entièrement construit comme Bureau standard
- Convient pour 7 à 23 personnes
- 1 bureau privé
- Cuisine
737 Bishop St - 18e étage - ste 1860
| Taille | 1 226 pi² |
| Terme | Négociable |
| Taux de location | Sur demande |
| Utilisation de l’espace | Bureau |
| Aménagement | construction complète |
| Disponible | Maintenant |
4 windowed private office.
- Entièrement construit comme Bureau standard
- Disposition intensive du bureau
- Convient pour 4 à 10 personnes
737 Bishop St - 18e étage - ste 1880
| Taille | 3 079 pi² |
| Terme | Négociable |
| Taux de location | Sur demande |
| Utilisation de l’espace | Bureau |
| Aménagement | construction complète |
| Disponible | Maintenant |
1 private office, open space and water
- Entièrement construit comme Bureau standard
- Disposition du plan d’étage ouverte en général
- Convient pour 8 à 25 personnes
- 1 bureau privé
- Plan ouvert
737 Bishop St - 19e étage - ste 1960
| Taille | 2 326 pi² |
| Terme | Négociable |
| Taux de location | Sur demande |
| Utilisation de l’espace | Bureau |
| Aménagement | construction partielle |
| Disponible | Maintenant |
Open layout.
- Partiellement construit comme Bureau standard
- Disposition du plan d’étage ouverte
- Convient pour 6 à 19 personnes
- Plan ouvert
737 Bishop St - 21e étage - ste 2115
| Taille | 3 924 pi² |
| Terme | Négociable |
| Taux de location | Sur demande |
| Utilisation de l’espace | Bureau |
| Aménagement | construction complète |
| Disponible | Maintenant |
7 private offices
- Entièrement construit comme Bureau standard
- Disposition du plan d’étage ouverte en général
- Convient pour 9 à 32 personnes
- 7 bureaux privés
- 1 salle de conférence
- 25 postes de travail
- Clé en main
- Cuisine
737 Bishop St - 23e étage - ste 2340
| Taille | 5 271 pi² |
| Terme | Négociable |
| Taux de location | Sur demande |
| Utilisation de l’espace | Bureau |
| Aménagement | construction complète |
| Disponible | Maintenant |
Former law office with multiple private offices and conference rooms.
- Entièrement construit comme Bureau juridique
- Disposition intensive du bureau
- Convient pour 14 à 43 personnes
737 Bishop St - 23e étage - ste 2390
| Taille | 5 159 pi² |
| Terme | Négociable |
| Taux de location | Sur demande |
| Utilisation de l’espace | Bureau |
| Aménagement | espace cloisonné |
| Disponible | Maintenant |
Shell space
- Disposition du plan d’étage ouverte
737 Bishop St - 24e étage - ste 2400
| Taille | 9 714 pi² |
| Terme | Négociable |
| Taux de location | Sur demande |
| Utilisation de l’espace | Bureau |
| Aménagement | construction partielle |
| Disponible | Maintenant |
Former law office with dense window line office build out.
- Partiellement construit comme Bureau standard
- Disposition du plan d’étage ouverte en général
- Convient pour 25 à 78 personnes
- Salles de conférence
- Aire de réception
737 Bishop St - 27e étage - ste 2790
| Taille | 1 285 pi² |
| Terme | Négociable |
| Taux de location | Sur demande |
| Utilisation de l’espace | Bureau |
| Aménagement | construction complète |
| Disponible | Maintenant |
2 private window offices, interior conference room, and storage.
- Entièrement construit comme Bureau standard
- Convient pour 4 à 11 personnes
- 2 bureaux privés
- Salles de conférence
- Storage
733 Bishop St - 1er étage - ste 151
| Taille | 1 330 pi² |
| Terme | Négociable |
| Taux de location | Sur demande |
| Utilisation de l’espace | Bureau/Commerce de détail |
| Aménagement | construction complète |
| Disponible | Maintenant |
Ground floor space with courtyard frontage. 2 private office and open area.
- Entièrement construit comme Bureau standard
- Convient pour 4 à 11 personnes
- 2 bureaux privés
733 Bishop St - 1er étage - ste 170
| Taille | 1 090 pi² |
| Terme | Négociable |
| Taux de location | Sur demande |
| Utilisation de l’espace | Bureau |
| Aménagement | construction partielle |
| Disponible | Maintenant |
Nimitz/Alakea frontage. 1 private office and kitchenette
- Partiellement construit comme Bureau standard
- Disposition du plan d’étage ouverte en général
- Convient pour 3 à 9 personnes
- 1 bureau privé
- Cuisine
733 Bishop St - 1er étage - ste 181
| Taille | 1 041 pi² |
| Terme | Négociable |
| Taux de location | Sur demande |
| Utilisation de l’espace | Bureau |
| Aménagement | construction partielle |
| Disponible | Maintenant |
Courtyard entrance and includes water
- Partiellement construit comme Bureau standard
- Disposition du plan d’étage ouverte
- Convient pour 3 à 9 personnes
- 1 salle de conférence
- Plafonds finis: 9’6”
- Espace nécessitant des rénovations
- Aire de réception
733 Bishop St - 11e étage - ste 1170
| Taille | 1 244 pi² |
| Terme | Négociable |
| Taux de location | Sur demande |
| Utilisation de l’espace | Bureau |
| Aménagement | construction complète |
| Disponible | Maintenant |
3 private offices with a large conference room
- Entièrement construit comme Bureau standard
- Convient pour 4 à 10 personnes
- 3 bureaux privés
- 1 salle de conférence
733 Bishop St - 12e étage - ste 1270
| Taille | 2 800 pi² |
| Terme | Négociable |
| Taux de location | Sur demande |
| Utilisation de l’espace | Bureau |
| Aménagement | construction complète |
| Disponible | Maintenant |
3 private offices, 2 large conference rooms, kitchenette.
- Entièrement construit comme Bureau standard
- Convient pour 7 à 23 personnes
- 3 bureaux privés
- 2 salles de conférence
- Cuisine
733 Bishop St - 12e étage - ste 1290
| Taille | 1 220 pi² |
| Terme | Négociable |
| Taux de location | Sur demande |
| Utilisation de l’espace | Bureau |
| Aménagement | construction complète |
| Disponible | Maintenant |
3 large private offices and open area.
- Entièrement construit comme Bureau standard
- Convient pour 4 à 10 personnes
- 3 bureaux privés
733 Bishop St - 15e étage - ste 1520
| Taille | 1 549 pi² |
| Terme | Négociable |
| Taux de location | Sur demande |
| Utilisation de l’espace | Bureau |
| Aménagement | construction complète |
| Disponible | Maintenant |
3 private offices
- Entièrement construit comme Bureau standard
- Convient pour 4 à 13 personnes
- 3 bureaux privés
733 Bishop St - 15e étage - ste 1565
| Taille | 863 pi² |
| Terme | Négociable |
| Taux de location | Sur demande |
| Utilisation de l’espace | Bureau |
| Aménagement | construction complète |
| Disponible | Maintenant |
Open layout
- Entièrement construit comme Bureau standard
- Disposition du plan d’étage ouverte
- Convient pour 3 à 7 personnes
733 Bishop St - 17e étage - ste 1750
| Taille | 3 695 à 5 706 pi² |
| Terme | Négociable |
| Taux de location | Sur demande |
| Utilisation de l’espace | Bureau |
| Aménagement | construction complète |
| Disponible | Maintenant |
Open layout
- Entièrement construit comme Bureau standard
- Disposition du plan d’étage ouverte
- Convient pour 10 à 46 personnes
733 Bishop St - 17e étage - ste 1770
| Taille | 2 011 à 5 706 pi² |
| Terme | Négociable |
| Taux de location | Sur demande |
| Utilisation de l’espace | Bureau |
| Aménagement | construction complète |
| Disponible | Maintenant |
5 window line offices and 2 interior offices.
- Entièrement construit comme Bureau standard
- Convient pour 6 à 46 personnes
- 7 bureaux privés
- Lumière naturelle
733 Bishop St - 18e étage - ste 1872
| Taille | 1 432 pi² |
| Terme | Négociable |
| Taux de location | Sur demande |
| Utilisation de l’espace | Bureau |
| Aménagement | construction complète |
| Disponible | Maintenant |
3 window offices and 2 interior offices.
- Entièrement construit comme Bureau standard
- Convient pour 4 à 12 personnes
- 5 bureaux privés
- Lumière naturelle
733 Bishop St - 20e étage - ste 2000
| Taille | 5 767 pi² |
| Terme | Négociable |
| Taux de location | Sur demande |
| Utilisation de l’espace | Bureau |
| Aménagement | construction complète |
| Disponible | 2026-08-01 |
Private offices, conference rooms, kitchenette with excellent views. Turn key opportunity with furniture included
- Entièrement construit comme Bureau standard
- Disposition intensive du bureau
- Convient pour 15 à 47 personnes
733 Bishop St - 21e étage - ste 2100/2120
| Taille | 4 565 pi² |
| Terme | Négociable |
| Taux de location | Sur demande |
| Utilisation de l’espace | Bureau |
| Aménagement | - |
| Disponible | 2026-07-01 |
- Convient pour 12 à 37 personnes
733 Bishop St - 21e étage - ste 2160
| Taille | 1 223 pi² |
| Terme | Négociable |
| Taux de location | Sur demande |
| Utilisation de l’espace | Bureau |
| Aménagement | construction complète |
| Disponible | Maintenant |
3 private offices and kitchenette
- Entièrement construit comme Bureau standard
- Convient pour 4 à 10 personnes
- 3 bureaux privés
733 Bishop St - 23e étage - ste 2300
| Taille | 1 496 pi² |
| Terme | Négociable |
| Taux de location | Sur demande |
| Utilisation de l’espace | Bureau |
| Aménagement | selon spécifications |
| Disponible | Maintenant |
Upgraded suite with ocean front view, 2 private offices, new paint, carpet and LED lights, and kitchenette
- Disposition du plan d’étage ouverte en général
- Convient pour 4 à 12 personnes
- 2 bureaux privés
- Espace en excellent état
- Cuisine
733 Bishop St - 23e étage - ste 2301
| Taille | 6 724 pi² |
| Terme | Négociable |
| Taux de location | Sur demande |
| Utilisation de l’espace | Bureau |
| Aménagement | construction complète |
| Disponible | Maintenant |
Multiple private offices, conference room, and kitchenette with excellent views.
- Entièrement construit comme Bureau standard
- Disposition intensive du bureau
- Convient pour 17 à 54 personnes
733 Bishop St - 23e étage - ste 2357
| Taille | 2 882 pi² |
| Terme | Négociable |
| Taux de location | Sur demande |
| Utilisation de l’espace | Bureau |
| Aménagement | construction complète |
| Disponible | Maintenant |
6 private offices, conference room, and storage room.
- Entièrement construit comme Bureau standard
- Convient pour 8 à 24 personnes
- 6 bureaux privés
- 1 salle de conférence
733 Bishop St - 23e étage - ste 2390
| Taille | 1 464 pi² |
| Terme | Négociable |
| Taux de location | Sur demande |
| Utilisation de l’espace | Bureau |
| Aménagement | construction complète |
| Disponible | Maintenant |
5 private offices, kitchen, conference room, and open space
- Entièrement construit comme Bureau standard
- Convient pour 4 à 12 personnes
- 5 bureaux privés
- Salles de conférence
- Cuisine
733 Bishop St - 25e étage - ste 2555
| Taille | 1 042 pi² |
| Terme | Négociable |
| Taux de location | Sur demande |
| Utilisation de l’espace | Bureau |
| Aménagement | construction complète |
| Disponible | Maintenant |
3 offices and open area
- Entièrement construit comme Bureau standard
- Convient pour 3 à 9 personnes
- 3 bureaux privés
733 Bishop St - 25e étage - ste 2560
| Taille | 1 342 pi² |
| Terme | Négociable |
| Taux de location | Sur demande |
| Utilisation de l’espace | Bureau |
| Aménagement | construction complète |
| Disponible | Maintenant |
Open layout
- Entièrement construit comme Bureau standard
- Disposition du plan d’étage ouverte
- Convient pour 4 à 11 personnes
- Espace en excellent état
- Plan ouvert
733 Bishop St - 29e étage - ste 2945
| Taille | 1 346 pi² |
| Terme | Négociable |
| Taux de location | Sur demande |
| Utilisation de l’espace | Bureau |
| Aménagement | construction complète |
| Disponible | Maintenant |
1 private office and an open layout.
- Entièrement construit comme Bureau standard
- Disposition du plan d’étage ouverte en général
- Convient pour 4 à 11 personnes
- 1 bureau privé
- Plan ouvert
733 Bishop St - 29e étage - ste 2950
| Taille | 3 597 pi² |
| Terme | Négociable |
| Taux de location | Sur demande |
| Utilisation de l’espace | Bureau |
| Aménagement | espace cloisonné |
| Disponible | Maintenant |
High floor, Corner unit, open area with new ceiling and lights
- Disposition du plan d’étage ouverte
- Espace nécessitant des rénovations
- Espace en coin
733 Bishop St - 30e étage - ste 3000
| Taille | 14 994 pi² |
| Terme | Négociable |
| Taux de location | Sur demande |
| Utilisation de l’espace | Bureau |
| Aménagement | construction partielle |
| Disponible | 2027-01-01 |
Full floor opportunity.
- Partiellement construit comme Bureau standard
- Disposition du plan d’étage ouverte en général
- Convient pour 38 à 120 personnes
735 Bishop St - 2e étage - ste 215
| Taille | 314 pi² |
| Terme | Négociable |
| Taux de location | Sur demande |
| Utilisation de l’espace | Bureau |
| Aménagement | construction complète |
| Disponible | Maintenant |
Open office
- Entièrement construit comme Bureau standard
- Disposition du plan d’étage ouverte
- Convient pour 1 à 3 personnes
- Plan ouvert
735 Bishop St - 2e étage - ste 226
| Taille | 532 pi² |
| Terme | Négociable |
| Taux de location | Sur demande |
| Utilisation de l’espace | Bureau |
| Aménagement | construction complète |
| Disponible | Maintenant |
Open layout. Available May 1, 2025
- Entièrement construit comme Bureau standard
- Disposition du plan d’étage ouverte
- Convient pour 2 à 5 personnes
735 Bishop St - 2e étage - ste 230
| Taille | 3 170 pi² |
| Terme | Négociable |
| Taux de location | Sur demande |
| Utilisation de l’espace | Bureau |
| Aménagement | construction complète |
| Disponible | Maintenant |
3 private offices, conference room, kitchenette, and open work area
- Entièrement construit comme Bureau standard
- Convient pour 8 à 26 personnes
- 3 bureaux privés
- 1 salle de conférence
- Cuisine
735 Bishop St - 2e étage - ste 233
| Taille | 499 pi² |
| Terme | Négociable |
| Taux de location | Sur demande |
| Utilisation de l’espace | Bureau |
| Aménagement | construction complète |
| Disponible | Maintenant |
1 private office
- Entièrement construit comme Bureau standard
- Convient pour 2 à 4 personnes
- 1 bureau privé
735 Bishop St - 3e étage - ste 314
| Taille | 402 pi² |
| Terme | Négociable |
| Taux de location | Sur demande |
| Utilisation de l’espace | Bureau |
| Aménagement | construction complète |
| Disponible | Maintenant |
Open layout
- Entièrement construit comme Bureau standard
- Disposition du plan d’étage ouverte
- Convient pour 2 à 4 personnes
735 Bishop St - 3e étage - ste 315
| Taille | 317 pi² |
| Terme | Négociable |
| Taux de location | Sur demande |
| Utilisation de l’espace | Bureau |
| Aménagement | construction complète |
| Disponible | Maintenant |
1 private office with a sink
- Entièrement construit comme Bureau standard
- Convient pour 1 à 3 personnes
- 1 bureau privé
735 Bishop St - 3e étage - ste 330
| Taille | 2 092 pi² |
| Terme | Négociable |
| Taux de location | Sur demande |
| Utilisation de l’espace | Bureau |
| Aménagement | selon spécifications |
| Disponible | Maintenant |
Conference room, open work areas, and kitchnette
- Convient pour 6 à 17 personnes
- 3 bureaux privés
- 1 salle de conférence
- 1 poste de travail
- Aire de réception
- Cuisine
- Entreposage sécurisé
- Lumière naturelle
735 Bishop St - 3e étage - ste 333
| Taille | 1 669 pi² |
| Terme | Négociable |
| Taux de location | Sur demande |
| Utilisation de l’espace | Bureau |
| Aménagement | construction complète |
| Disponible | Maintenant |
Open layout
- Entièrement construit comme Bureau standard
- Disposition du plan d’étage ouverte
- Convient pour 5 à 14 personnes
735 Bishop St - 3e étage - ste 336
| Taille | 533 pi² |
| Terme | Négociable |
| Taux de location | Sur demande |
| Utilisation de l’espace | Bureau |
| Aménagement | construction complète |
| Disponible | Maintenant |
1 private office
- Entièrement construit comme Bureau standard
- Convient pour 2 à 5 personnes
- 1 bureau privé
- Espace en excellent état
- Aire de réception
- Vues sur le jardin
735 Bishop St - 3e étage - ste 337
| Taille | 710 pi² |
| Terme | Négociable |
| Taux de location | Sur demande |
| Utilisation de l’espace | Bureau |
| Aménagement | - |
| Disponible | 2026-06-01 |
- Convient pour 2 à 6 personnes
735 Bishop St - 4e étage - ste 400
| Taille | 841 pi² |
| Terme | Négociable |
| Taux de location | Sur demande |
| Utilisation de l’espace | Bureau |
| Aménagement | - |
| Disponible | Maintenant |
- Convient pour 3 à 7 personnes
735 Bishop St - 4e étage - ste 415
| Taille | 316 pi² |
| Terme | Négociable |
| Taux de location | Sur demande |
| Utilisation de l’espace | Bureau |
| Aménagement | construction complète |
| Disponible | Maintenant |
Large open area and 1 private office.
- Entièrement construit comme Bureau standard
- Disposition du plan d’étage ouverte en général
- Convient pour 1 à 3 personnes
- 1 bureau privé
735 Bishop St - 4e étage - ste 432
| Taille | 632 pi² |
| Terme | Négociable |
| Taux de location | Sur demande |
| Utilisation de l’espace | Bureau |
| Aménagement | construction complète |
| Disponible | Maintenant |
1 private office
- Entièrement construit comme Bureau standard
- Disposition intensive du bureau
- Convient pour 2 à 6 personnes
735 Bishop St - 4e étage - ste 437
| Taille | 716 pi² |
| Terme | Négociable |
| Taux de location | Sur demande |
| Utilisation de l’espace | Bureau |
| Aménagement | construction complète |
| Disponible | Maintenant |
- Entièrement construit comme Bureau standard
- Disposition intensive du bureau
- Convient pour 2 à 6 personnes
735 Bishop St - 4e étage - ste 437
| Taille | 716 pi² |
| Terme | Négociable |
| Taux de location | Sur demande |
| Utilisation de l’espace | Bureau |
| Aménagement | construction partielle |
| Disponible | Maintenant |
Available 3/1/26
- Partiellement construit comme Bureau standard
- Disposition intensive du bureau
- Convient pour 2 à 6 personnes
Visites 3D Matterport
Sélectionner des locataires à cette propriété
- Étage
- Nom du locataire
- Secteur
- 31ᵉ
- Architects Hawaii Ltd
- Services professionnels, scientifiques et techniques
- 26ᵉ
- Case Lombardi & Pettit A Law Corporation
- Services
- Multiple
- Morgan Stanley
- Finance et assurances
- 19ᵉ
- Spirent Communications
- Information
- 19ᵉ
- Starn O’Toole Marcus & Fisher Law
- Services
- 16ᵉ
- UBS Financial Services
- Finance et assurances
Aperçu du parc
Pacific Guardian Center, un complexe de bureaux primé de 682 000 pieds carrés composé de trois immeubles, offre aux entreprises d'Honolulu une adresse commerciale distinctive. La tour Makai et la tour Mauka sont des tours de bureaux jumelles de 30 étages en verre miroir qui soulignent l'importance en tant qu'emplacement stratégique dans le quartier financier du centre-ville d'Honolulu. En même temps, l'édifice historique voisin de Dillingham Transportation témoigne de son endurance et de sa stabilité. Pacific Guardian Center offre un environnement professionnel de haute qualité, avec une place magnifiquement aménagée et des espaces de cour ouverts, un parking de 786 places, un système de CVC avancé, des systèmes d'automatisation des bâtiments, des systèmes de sécurité des personnes et un personnel important sur place pour assurer le bon déroulement des choses. De plus, le bâtiment est certifié Energy Star et LEED Gold pour son efficacité énergétique. Le Pacific Guardian Center est idéalement situé dans le quartier central des affaires avec un accès facile aux bureaux du gouvernement fédéral, des États et des comtés et aux tribunaux, ce qui en fait l'endroit idéal pour faire des affaires à Honolulu.
- Banque
- Ligne d'autobus
- Installations de conférences
- Lot de coin
- Cour
- Gestionnaire d'immeuble sur place
- Restaurant
- Espace d'entreposage
- Station de recharge de voiture
- Climatisation
Durabilité
Durabilité
Certification LEED Établi par le U.S. Green Building Council (USGBC, Conseil américain du bâtiment durable), le programme de certification LEED (Leadership in Energy and Environmental Design) est axé sur la conception, la construction, l’exploitation et l’entretien de bâtiments, de maisons et de quartiers écologiques. Sa vocation est d’aider les propriétaires et les exploitants à adopter des pratiques écoresponsables et à utiliser les ressources de façon efficace. La certification LEED est un symbole mondialement reconnu de réussite et de leadership en matière de développement durable. Pour obtenir la certification LEED, un projet doit obtenir des points en respectant des conditions préalables et un barème de crédits qui tiennent compte des émissions de carbone, de l’énergie, de l’eau, des déchets, du transport, des matériaux, de la santé et de la qualité de l’environnement intérieur. Les projets passent par un processus de vérification et d’évaluation et reçoivent un pointage correspondant à un niveau de certification LEED: Platine (80 points et plus) Or (60 à 79 points) Silver (50-59 points) Certifié (40 à 49 points)
Présenté par
Pacific Guardian Center | Honolulu, HI 96813
Hmm, il semble y avoir eu une erreur lors de l’envoi de votre message. Veuillez réessayer.
Merci! Votre message a été envoyé.

















































































