Votre courriel a été envoyé.
Retail Spaces For Lease 734-744 Lincoln Rd 1 797–6 462 pi² d'espace disponible • Commerce de détail • 4 étoiles • Miami Beach, FL 33139



Certaines informations ont été traduites automatiquement.
Faits saillants
- Bâtiment historique entièrement restauré, hauts plafonds et ± 250 pieds de façade
- CENTRE-VILLE - L'avenue Meridian est une liaison principale nord-sud qui traverse Miami Beach
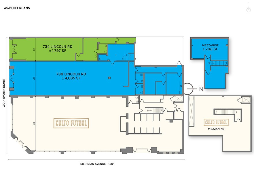
- Frontage: ±100 FT on Lincoln Road / ±150 FT on Meridian Ave
- Intersection principale sur le chemin Lincoln
- 16 nouveaux locataires sur le marché, dont Mila, Salt & Straw, Tacombi, Hoka, Mango, Andres Carne de Res et The Cheese Cake Factory
Disponibilité des espaces (2)
Afficher les taux de location en
- Espace
- Taille
- Terme
- Taux de location
- Type de loyer
| Espace | Taille | Terme | Taux de location | Type de loyer | ||
| 1er étage, ste 734 | 1 797 pi² | Négociable | Sur demande Sur demande Sur demande Sur demande | À déterminer | ||
| 1er étage, ste 738 | 4 665 pi² | Négociable | Sur demande Sur demande Sur demande Sur demande | À déterminer |
1er étage, ste 734
- Entièrement construit comme Espace de commerce de détail standard
- Situé en ligne avec d’autres commerces de détail
- Possession: Arranged
- Rent: Upon Request
1er étage, ste 738
- Entièrement construit comme Espace de commerce de détail standard
- Situé en ligne avec d’autres commerces de détail
- Mezzanine: ±702 SF
Types de loyers
Le type et le montant du loyer que le locataire (preneur) est tenu de payer au propriétaire (bailleur) sur la durée du bail sont négociés avant la signature du bail par les deux parties. Le type de loyer varie selon les services fournis. Par exemple, le prix d’un loyer hypernet est habituellement inférieur à celui d’un bail à service complet puisque le locataire est tenu d’assumer des dépenses additionnelles par rapport au loyer de base. Contactez le courtier inscripteur pour tout connaître sur les frais connexes et additionnels associés à chaque type de loyer.
1. Service complet: Un taux de location qui comprend des services standards liés à l’immeuble fournis par le propriétaire dans le cadre d’une location annuelle de base.
2. Loyer supernet: Le locataire paie seulement deux des frais de l’immeuble. Le propriétaire et le locataire déterminent ces frais spécifiques avant la signature du bail.
3. Loyer hypernet: Un bail en vertu duquel le locataire est responsable de tous les frais liés à sa part proportionnelle d’occupation de l’immeuble.
4. Brut modifié: Le loyer brut modifié désigne un type général de taux de location dans lequel le locataire est habituellement responsable de sa part proportionnelle d’un ou de plusieurs frais. C’est le propriétaire qui paie les frais restants. Considérez les structures tarifaires courantes suivantes applicables aux loyers bruts modifiés: 4. Plus les services: Un type de bail brut modifié suivant lequel le locataire est responsable de sa part proportionnelle des coûts des services publics, en plus du loyer. 4. Plus le nettoyage: Un type de bail brut modifié suivant lequel le locataire est responsable de sa part proportionnelle des coûts de nettoyage, en plus du loyer. 4. Plus l'électricité: Un type de bail brut modifié suivant lequel le locataire est responsable de sa part proportionnelle des coûts d’électricité, en plus du loyer. 4. Plus l’électricité et le nettoyage: Un type de bail brut modifié dans lequel le locataire est responsable de sa part proportionnelle des coûts d’électricité et de nettoyage, en plus du loyer. 4. Plus les services publics et le nettoyage: Un type de bail brut modifié dans lequel le locataire est responsable de sa part proportionnelle des coûts des services publics et de nettoyage, en plus du loyer. 4. Bail industriel brut: Un type de bail brut modifié dans lequel le locataire paie un ou plusieurs des frais, en plus du loyer. Le propriétaire et le locataire déterminent ces frais spécifiques avant la signature du bail.
5. L’électricité est à la charge du locataire: Le propriétaire paie pour tous les services et le locataire est responsable de sa propre utilisation de l’éclairage et des prises électriques dans l’espace qu’il occupe.
6. Négociable ou sur demande: Cette option est utilisée lorsque le contact de location ne précise pas le type de loyer ou de service.
7. À déterminer: À déterminer ; utilisé pour les immeubles dont le type de services ou de loyer n’est pas connu, souvent quand l’immeuble n’est pas encore construit.
Faits sur la propriété
| Superficie totale disponible | 6 462 pi² | Superficie commerciale brute | 14 596 pi² |
| Type de propriété | Commerce de détail | Année de construction | 1934 |
| Sous-type de propriété | Boutique | Ratio de stationnement | 0,41/1 000 pi² |
| Superficie totale disponible | 6 462 pi² |
| Type de propriété | Commerce de détail |
| Sous-type de propriété | Boutique |
| Superficie commerciale brute | 14 596 pi² |
| Année de construction | 1934 |
| Ratio de stationnement | 0,41/1 000 pi² |
À propos de la propriété
Locaux commerciaux à louer Lincoln Road est l'endroit où Miami se réunit — pour faire du magasinage, pour dîner et pour célébrer. Avec plus de 200 boutiques de créateurs, des commerçants locaux, des magasins de détail nationaux et une sélection exceptionnelle de restaurants et de bars raffinés, il y en a pour tous les goûts.
Principaux détaillants à proximité
Présenté par
Retail Spaces For Lease | 734-744 Lincoln Rd
Hmm, il semble y avoir eu une erreur lors de l’envoi de votre message. Veuillez réessayer.
Merci! Votre message a été envoyé.

