Se Connecter/S’inscrire
Votre courriel a été envoyé.
7373 W Jefferson Ave - Academy Park Professional Bldg Unité de condo • Bureau/Médical • 900 pi² • À vendre 220 502 $ CAD • Lakewood, CO 80235



Certaines informations ont été traduites automatiquement.
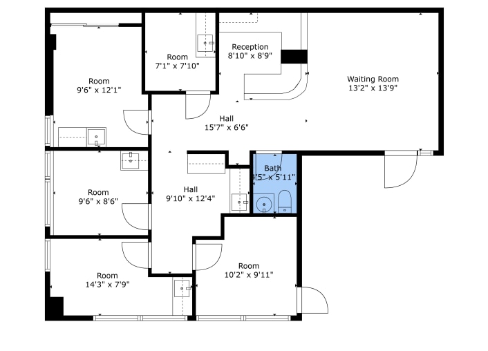
Faits saillants de l'investissement
- Private bathroom in suite
- Large waiting room and reception area
- Breakroom with sink
- 4 offices - 3 of them have sinks in office
- Elevator in building
1 Unité disponible
- Unité
- Taille de l’unité
- Utilisation du condo
- Prix
- Revenu net d’exploitation
| Type de vente | Propriétaire utilisateur |
| Type de vente | Propriétaire utilisateur |
Description
This 900 SF office condominium offers a highly functional layout ideal
for medical, wellness, or traditional office users. The space features four
private offices, three of which are equipped with sinks, well-suited for
treatment or clinical use, along with an additional communal sink in the
hallway and a sink in the breakroom. A spacious reception and waiting area creates a welcoming first impression, while the in-suite private restroom adds convenience for both staff and clients. The thoughtful design allows for efficient workflow and flexibility to accommodate a variety of business types.
Shawna Soffa
Madison Commercial Properties
720-739-5235
for medical, wellness, or traditional office users. The space features four
private offices, three of which are equipped with sinks, well-suited for
treatment or clinical use, along with an additional communal sink in the
hallway and a sink in the breakroom. A spacious reception and waiting area creates a welcoming first impression, while the in-suite private restroom adds convenience for both staff and clients. The thoughtful design allows for efficient workflow and flexibility to accommodate a variety of business types.
Shawna Soffa
Madison Commercial Properties
720-739-5235
Notes sur la vente
900 SF office condominium
Four private offices
Three offices with sinks (ideal for medical or wellness use)
Additional communal sink in hallway and a sink in the breakroom
In-suite private restroom
Large reception and waiting area
HOA - $640 +/- Monthly - includes utilities
Taxes - $5,497 Yearly
Four private offices
Three offices with sinks (ideal for medical or wellness use)
Additional communal sink in hallway and a sink in the breakroom
In-suite private restroom
Large reception and waiting area
HOA - $640 +/- Monthly - includes utilities
Taxes - $5,497 Yearly
| Unité | Taille de l’unité | Utilisation du condo | Prix | Revenu net d’exploitation |
| Unité 301 | 900 pi² | Bureau/Médical | 220 502 $ CAD (245,00 $ CAD/pi²) | - |
Unité 301
| Taille de l’unité |
| 900 pi² |
| Utilisation du condo |
| Bureau/Médical |
| Prix |
| 220 502 $ CAD (245,00 $ CAD/pi²) |
| Revenu net d’exploitation |
| - |
1 de 14
Vidéos
Visite extérieure 3D Matterport
Visite 3D Matterport
Photos
Vue depuis la rue
Rue
Carte
Unité 301
| Taille de l’unité | 900 pi² |
| Utilisation du condo | Bureau/Médical |
| Prix | 220 502 $ CAD (245,00 $ CAD/pi²) |
| Revenu net d’exploitation | - |
| Type de vente | Propriétaire utilisateur |
| Description | |
| This 900 SF office condominium offers a highly functional layout ideal<br> for medical, wellness, or traditional office users. The space features four<br> private offices, three of which are equipped with sinks, well-suited for<br> treatment or clinical use, along with an additional communal sink in the<br> hallway and a sink in the breakroom. A spacious reception and waiting area creates a welcoming first impression, while the in-suite private restroom adds convenience for both staff and clients. The thoughtful design allows for efficient workflow and flexibility to accommodate a variety of business types.<br> <br> Shawna Soffa<br> Madison Commercial Properties<br> 720-739-5235</li></ul> | |
| Notes sur la vente | |
| 900 SF office condominium<br> Four private offices<br> Three offices with sinks (ideal for medical or wellness use)<br> Additional communal sink in hallway and a sink in the breakroom<br> In-suite private restroom<br> Large reception and waiting area<br> HOA - $640 +/- Monthly - includes utilities<br> Taxes - $5,497 Yearly</li></ul> |
Faits sur la propriété
Les caractéristiques et les équipements suivants s'appliquent à l'ensemble du bâtiment. Les détails relatifs aux unités de copropriété individuelles peuvent varier et figurent dans les informations concernant les unités ci-dessus.
| Taille totale du bâtiment | 32 299 pi² | Superficie de plancher typique | 8 075 pi² |
| Type de propriété | Bureau (Condo) | Année de construction | 1984 |
| Sous-type de propriété | Médical | Taille du lot | 2,90 AC |
| Classe d’immeuble | B | Ratio de stationnement | 3,47/1 000 pi² |
| Planchers | 4 | ||
| Zonage | PUD, Lakewood - Développement prévu de l'unité | ||
| Taille totale du bâtiment | 32 299 pi² |
| Type de propriété | Bureau (Condo) |
| Sous-type de propriété | Médical |
| Classe d’immeuble | B |
| Planchers | 4 |
| Superficie de plancher typique | 8 075 pi² |
| Année de construction | 1984 |
| Taille du lot | 2,90 AC |
| Ratio de stationnement | 3,47/1 000 pi² |
| Zonage | PUD, Lakewood - Développement prévu de l'unité |
Commodités
- Gestionnaire d'immeuble sur place
Assez practicable à pied
50/100
Exceptionnellement facile d'accès en voiture
100/100
Transports en commun limités
30/100
Plutôt praticable en vélo
50/100
Renseignements importants sur le locataire Cliquez ici pour accéder à
| LOCATAIRE | pi² Occupé | DATE DE FIN DE BAIL |
|---|---|---|
| Ching Eastern Wellness Accupuncture |
-
|
Jan 0000
|
1 de 12
Vidéos
Visite extérieure 3D Matterport
Visite 3D Matterport
Photos
Vue depuis la rue
Rue
Carte
Présenté par
7373 W Jefferson Ave - Academy Park Professional Bldg
Vous êtes déjà membre? Connectez-vous
Hmm, il semble y avoir eu une erreur lors de l’envoi de votre message. Veuillez réessayer.
Merci! Votre message a été envoyé.



