Se Connecter/S’inscrire
Votre courriel a été envoyé.
7399 Assateague Dr 2 284 pi² Commerce de détail Immeuble Jessup, MD 20794 2 705 750 $ CAD (1 184,65 $ CAD/pi²)



Certaines informations ont été traduites automatiquement.
Résumé de l'annonce
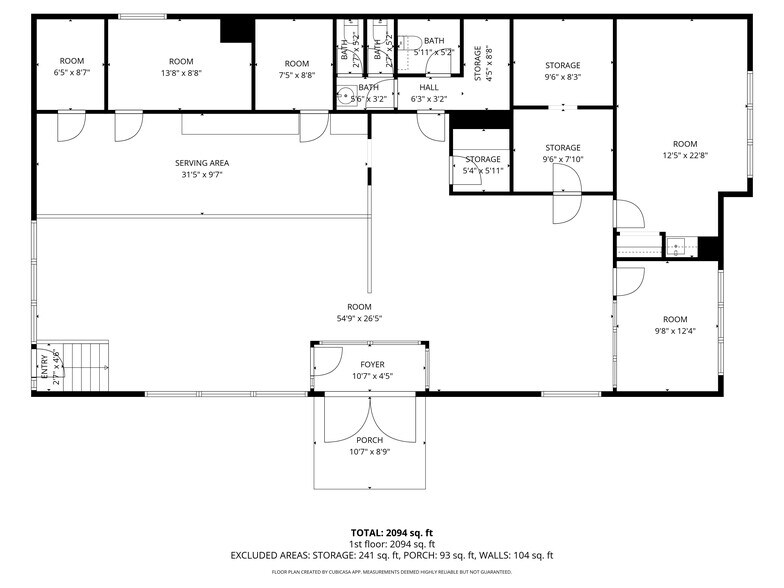
Prime Commercial Opportunity in Jessup, MD – 2,094 SF Standalone Building
Position your business for success with this versatile 2,094 sq. ft. commercial building located in a highly accessible area of Jessup. This well-laid-out property features a spacious open floor plan, multiple private rooms, storage areas, and existing infrastructure that can accommodate a variety of business uses.
Previously configured for financial services, the layout lends itself perfectly to a bank, coffee shop, professional office, or boutique retail concept. With strong visibility and convenient access, the property also presents an exciting opportunity for many other possible uses.
Property Highlights:
2,094 sq. ft. single-story commercial building
Flexible layout with large open area + multiple private rooms
Existing service areas, storage, and restrooms
Welcoming entry with foyer and porch
Ample on-site parking
High adaptability for multiple business types
Whether you're an owner-user or investor, this property offers the flexibility and location to bring your vision to life.
Zoning allows for a variety of uses – buyer to verify with local authorities.
?? Contact today for more information or to schedule a tour!
Position your business for success with this versatile 2,094 sq. ft. commercial building located in a highly accessible area of Jessup. This well-laid-out property features a spacious open floor plan, multiple private rooms, storage areas, and existing infrastructure that can accommodate a variety of business uses.
Previously configured for financial services, the layout lends itself perfectly to a bank, coffee shop, professional office, or boutique retail concept. With strong visibility and convenient access, the property also presents an exciting opportunity for many other possible uses.
Property Highlights:
2,094 sq. ft. single-story commercial building
Flexible layout with large open area + multiple private rooms
Existing service areas, storage, and restrooms
Welcoming entry with foyer and porch
Ample on-site parking
High adaptability for multiple business types
Whether you're an owner-user or investor, this property offers the flexibility and location to bring your vision to life.
Zoning allows for a variety of uses – buyer to verify with local authorities.
?? Contact today for more information or to schedule a tour!
Faits sur la propriété
Type de vente
Propriétaire utilisateur
Type de propriété
Commerce de détail
Sous-type de propriété
Banque
Taille du bâtiment
2 284 pi²
Classe d’immeuble
B
Année de construction
1973
Prix
2 705 750 $ CAD
Prix par pi²
1 184,65 $ CAD
Location
Unique
Hauteur du bâtiment
1 étage
Coefficient d’occupation des sols de l’immeuble
0,07
Taille du lot
0,79 AC
Zonage
M2 - Le zonage M2 est une désignation de zonage pour les zones industrielles lourdes utilisées pour la fabrication, la transformation et l'assemblage.
Stationnement
25 places (10,95 places par 1 000 pi² loué)
Façade
45’ sur Assateague Dr
Commodités
- Banque
- Enseigne sur pylône
- Affichage
- Service au volant
Assez praticable à pied
50/100
Exceptionnellement facile d’accès en voiture
100/100
Transports en commun limités
30/100
Assez praticable en vélo
30/100
Principaux détaillants à proximité
Impôts fonciers
| Numéro de lot | 06-400469 | Évaluation des bâtiments | 548 274 $ CAD |
| Évaluation du terrain | 1 087 917 $ CAD | Évaluation totale | 1 636 191 $ CAD |
Impôts fonciers
Numéro de lot
06-400469
Évaluation du terrain
1 087 917 $ CAD
Évaluation des bâtiments
548 274 $ CAD
Évaluation totale
1 636 191 $ CAD
1 de 5
Vidéos
Visite extérieure 3D Matterport
Visite 3D Matterport
Photos
Vue depuis la rue
Rue
Carte
Présenté par
7399 Assateague Dr
Vous êtes déjà membre? Connectez-vous
Hmm, il semble y avoir eu une erreur lors de l’envoi de votre message. Veuillez réessayer.
Merci! Votre message a été envoyé.
