Votre courriel a été envoyé.
The Kelsey 740 Washington Ave 1 092–2 645 pi² d'espace disponible • Commerce de détail • Belleville, NJ 07109



Certaines informations ont été traduites automatiquement.
Faits saillants
- Busy intersection of Nutley/Belleville
- Rooftop option
- Two story corner unit
Tous les espaces disponibles(1)
Afficher les taux de location en
- Espace
- Taille
- Terme
- Taux de location
- Utilisation de l’espace
- Aménagement
- Disponible
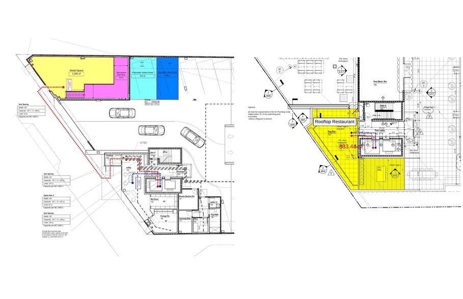
Newly developed retail space with 1092 sq. ft. to 2645 sq. ft with 22 ft ceiling allowing for possible mezzanine located on the ground floor of 104 residential units. Located on busy Washington Avenue on the Nutley border. Restaurant/bar use with liquor license available and additional 800 sq. ft of rooftop space available with city views, pool and gazebos. Many possibilities to expand business. Lease does not include utilities. New space and build out option available with creative mezzanine.
- Le taux de location ne comprend pas les services publics, les services de bâtiment ou les dépenses immobilières.
- Situé en ligne avec d’autres commerces de détail
- Espace en coin
- Plafonds finis: 12’ - 22’
- Partiellement construit comme Espace de commerce de détail standard
- Espace en excellent état
- Hauts plafonds
- Corner unit, Mezzanine, rooftop
| Espace | Taille | Terme | Taux de location | Utilisation de l’espace | Aménagement | Disponible |
| 1er étage, ste 1C | 1 092 à 2 645 pi² | Négociable | 41,04 $ CAD/pi²/an 3,42 $ CAD/pi²/mois 108 551 $ CAD/an 9 046 $ CAD/mois | Commerce de détail | construction partielle | Maintenant |
1er étage, ste 1C
| Taille |
| 1 092 à 2 645 pi² |
| Terme |
| Négociable |
| Taux de location |
| 41,04 $ CAD/pi²/an 3,42 $ CAD/pi²/mois 108 551 $ CAD/an 9 046 $ CAD/mois |
| Utilisation de l’espace |
| Commerce de détail |
| Aménagement |
| construction partielle |
| Disponible |
| Maintenant |
1er étage, ste 1C
| Taille | 1 092 à 2 645 pi² |
| Terme | Négociable |
| Taux de location | 41,04 $ CAD/pi²/an |
| Utilisation de l’espace | Commerce de détail |
| Aménagement | construction partielle |
| Disponible | Maintenant |
Newly developed retail space with 1092 sq. ft. to 2645 sq. ft with 22 ft ceiling allowing for possible mezzanine located on the ground floor of 104 residential units. Located on busy Washington Avenue on the Nutley border. Restaurant/bar use with liquor license available and additional 800 sq. ft of rooftop space available with city views, pool and gazebos. Many possibilities to expand business. Lease does not include utilities. New space and build out option available with creative mezzanine.
- Le taux de location ne comprend pas les services publics, les services de bâtiment ou les dépenses immobilières.
- Partiellement construit comme Espace de commerce de détail standard
- Situé en ligne avec d’autres commerces de détail
- Espace en excellent état
- Espace en coin
- Hauts plafonds
- Plafonds finis: 12’ - 22’
- Corner unit, Mezzanine, rooftop
Faits sur la propriété
| Superficie totale disponible | 2 645 pi² | Sous-type de propriété | Appartement |
| Nombre d’unités | 114 | Style d’appartement | De hauteur moyenne |
| Min. divisible | 1 092 pi² | Taille du bâtiment | 226 854 pi² |
| Type de propriété | Immeuble residentiel | Année de construction | 2025 |
| Superficie totale disponible | 2 645 pi² |
| Nombre d’unités | 114 |
| Min. divisible | 1 092 pi² |
| Type de propriété | Immeuble residentiel |
| Sous-type de propriété | Appartement |
| Style d’appartement | De hauteur moyenne |
| Taille du bâtiment | 226 854 pi² |
| Année de construction | 2025 |
À propos de la propriété
Newly developed retail space with 1092 sq. ft. to 2645 sq. ft with 22 ft ceiling allowing for possible mezzanine located on the ground floor of 104 residential units. Located on busy Washington Avenue on the Nutley border. Restaurant/bar use with liquor license available and additional 800 sq. ft of rooftop space available with city views, pool and gazebos. Many possibilities to expand business. Lease does not include utilities. New space and build out option available with creative mezzanine.
Principaux détaillants à proximité
Présenté par
The Kelsey | 740 Washington Ave
Hmm, il semble y avoir eu une erreur lors de l’envoi de votre message. Veuillez réessayer.
Merci! Votre message a été envoyé.

